1/11
59㎡
・2K/DK/LDK
・品川駅徒歩11分
リノベあり
・ペット不可
ウルカモ掲載中の物件は売却を検討中の住まいです
🔰 ️はじめてメッセージを送る方へ
まだ本格的に物件探しをしていなくても大丈夫です。気になった住まいのオーナーさまに気軽に質問してみましょう!
- かしこまりすぎないで大丈夫
- ビジネスメールのようにかしこまり過ぎないで大丈夫。気軽にメッセージを送ってみましょう。まだ本格的に物件を探していなくてもオーナーさまに直接質問をすることで、検討が前に進むことがあります。
- 率直に聞いてみましょう
- ウルカモに掲載されていないことや実際住んでいるオーナーさまにしか分からないことを質問してみましょう。
質問例
- 日当たりや風通しは良いですか?
- 近くの通りの交通量は多いですか?
- 24時間ゴミは出せますか?
- マンションの修繕やメンテナンスの状況はいかがですか?
- 売却の状況や予定はいかがですか?
投稿日
最終更新
住まいの概要
周辺地図
- 最寄り駅
- JR東海道本線(東京~熱海)・JR山手線・JR横須賀線・JR成田エクスプレス・JR京浜東北線・京急本線 「品川」駅 徒歩11分JR山手線・JR埼京線・JR湘南新宿ライン高海・JR湘南新宿ライン宇須・相鉄・JR直通線・りんかい線 「大崎」駅 徒歩13分京急本線 「北品川」駅 徒歩15分
- 築年数
- 56年
- 地上階数
- 6階
- 地下階数
- なし
- 広さ
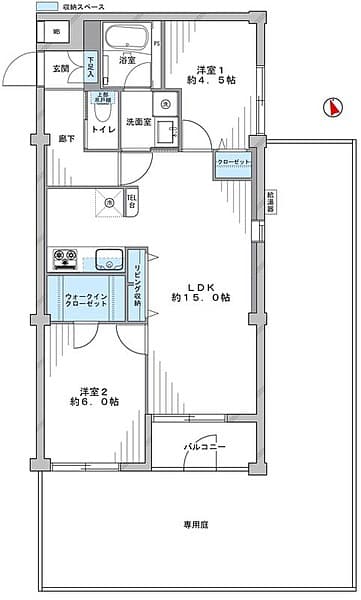
- 59㎡
- 間取り
- 2K/2DK/2LDK
- 所在階
- 低層階
- ペット飼育
- 不可
- 方位
- 南
- 角部屋
- YES
- リノベ
- YES
- 現況
- 居住中
メッセージ

まずは住まいに関する質問や
内見の希望を伝えてみましょう
💬 送信後の流れを確認しましょう
1メッセージのやり取りをする
住まいのことや売却意向について質問をしたり内見の希望を伝えましょう

2「内見がしたい」ボタンを押す
あなたとオーナーさまの間で内見実施の意向が高まったら「内見がしたい」ボタンを押してください。

3ウルカモサポートが内見を調整
ウルカモサポートが日程調整や内見実施をサポートします

スキ118人








































































- +82User like.
気になる住まいに「スキ」をするとその物件をいつでも見直すことができ、住まいの更新時や販売を開始した際にお知らせが届きます。
- 将来売りに出されるかもしれない物件を掲載しております。今後、掲載物件が必ず売り出されることをお約束するものではありません。
- 物件の表示価格は、現時点での掲載者の売却希望価格です。実際に表示価格で売出されることをお約束するものではありません。
- 写真及び物件に関する各種情報と現状に差異がある場合は、現状優先となります。実際に売出されたときは、必ず現場又は付帯設備表等で物件の設備状態の詳細をご確認ください。
こちらもおすすめです

KHR
5,348万円〜
80㎡・3K/3DK/3LDK
鷺沼駅徒歩11分

hinata
6,566万円〜
67㎡・2K/2DK/2LDK
本八幡駅徒歩7分

msy
6,221万円〜
72㎡・3K/3DK/3LDK
たまプラーザ駅徒歩7分

Sop_hia32
4,983万円〜
48㎡・2K/2DK/2LDK
方南町駅徒歩10分
「この家いいな」と思った住まいをお持ちの方へ
持ち家のある方は“今の家をどうするか”も大切なテーマです。手残り額や相場チェックなど、買い替えや住み替えに役立つ売却サポートサービスをご用意しています。ぜひご活用ください。
「あなたの家基準」で市場動向を読み替え、いまの現在地と変化の兆しを、手早く正確に把握して共有します。

進学や老後など節目を見越し「手放すなら?」を試算。家計影響と取り得る選択肢を、整理してご提示します。

残債・自己資金・ライフプランを総合診断。「売り先行/買い先行」の適性を、丁寧に見極めてご提案します。

査定額からローン・諸費用を差し引き、売却後に手元へ残る金額を、見やすく丁寧に可視化して、そのままご提示。

まずは相談から。不安を一緒に整理し、状況に合わせた次の一手と進め方を、丁寧に具体的に描いていきます。

