
リノベーションで手にする自分たち”らしさ”
リノベーションは、自分たちのライフスタイルを反映させる絶好の機会です。そのスタイルは人それぞれ異なり、まさに多様です。今回はふたり暮らしに焦点を当て、それぞれこだわりや工夫をご紹介していきます。
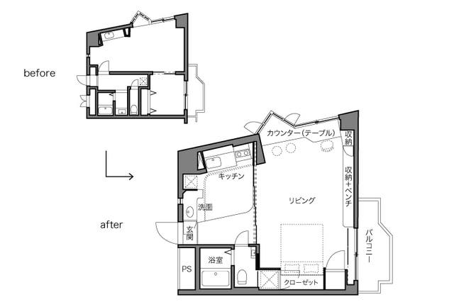
インスピレーションはホテルから!変幻自在なワンルーム
インスピレーションの元は「ホテル」。今回の設計にあたって、ご夫婦はさまざまなホテルを見学し、そこで得たアイデアを住まいに取り入れました。

例えば、リビングには全面的にカーペットを敷き、生活空間の高さを抑えることで、視覚的に広がりを感じさせる工夫が施されています。このリノベーションにより、限られた面積でも快適でゆとりのある生活空間を実現しています。
物件選びのポイントは、「人を招きやすく、また自分たちもアクティブに出かけやすい立地」であること。築地にあるこちらのマンションは専有面積42.12㎡で、限られた空間を最大限に活用した設計が特徴です。

最上階の古民家、和を感じる暮らし
世田谷区「祖師ヶ谷大蔵」に建つ築37年(取材時)のマンションは、「古民家和リノベ」をテーマに、伝統的な和の雰囲気を大切にしながら、モダンな要素も取り入れたデザインが特徴です。

仕事や趣味に集中できるデスクスペースや、広々としたルーフバルコニー、大スクリーンでスポーツ観戦を楽しめる工夫も施されています。
また、この物件を選んだ理由の一つは、広大な「砧公園」に近いこと。アクティブな生活を楽しみながら、リノベーションにより快適で充実したふたりのライフスタイルを実現した住まいです。

ホームパーティーのためにフルリノベ
こちらは、友人や家族を招いてホームパーティを楽しむことを考慮したリノベーション事例です。リビングを中心に、開放感のあるレイアウトで、夫婦ふたりだけでなくゲストも一緒に過ごせる設計が特徴です。

広いキッチンは、ふたりで料理を楽しんだり、ゲストと一緒に調理ができる仕様になっており、夫婦のライフスタイルにぴったりな空間が広がります。
また、この住まいのアイコン的存在として、電動スクリーンを備えたホームシアターも導入されており、パーティーや映画鑑賞をさらに楽しめる環境が整っています。

本棚に囲まれたスペースで在宅ワーク
角部屋で二面に大きな窓がある特性を活かし、明るく開放的なLDKが特徴です。当初は新築マンションも検討していましたが、せっかく家を購入するなら自分たちの好きな空間にしたいという思いから、中古マンションを選び、フルリノベーションに挑みました。

元々は4LDKだった住戸の壁をすべて取り壊し、回遊できる動線を持つ2LDK+WICへと大胆に変更。南側のLDKと和室を広々としたワンルームのLDKにまとめ、ゆとりある空間が生まれました。
また、フリースペースの一角にはワークデスクを設置し、ご主人はそこで、奥さまはダイニングテーブルを使って、それぞれ適度な距離感を保ちながら快適に仕事を進めています。

中古マンション×リノベーションで、ふたりの理想を叶える
今回ご紹介したご夫婦たちは、リノベーションを通じて、自分たちに合った理想の空間を実現しました。
限られたスペースでも、工夫次第で広がりを感じさせ、ふたりの時間をより豊かに楽しめる住まいへと変えることができます。コストを抑えつつも、個性やこだわりをしっかりと反映できるのは、リノベーションならではの大きな魅力ともいえるでしょう。


中古・リノベーションマンションの流通プラットフォームに関する知識をわかりやすく提供するため、カウカモ(cowcamo)で日々勉強中。築古マンションの魅力とリノベーションのメリット・デメリットについて深く学び、読者の皆様が最適な選択をできるようサポートしたいと考えています。最新の住宅トレンドや資産価値の維持に関する情報も発信していくので、ご期待ください。

中古・リノベーション住宅の専門エージェントチームとして顧客の理想の暮らしを実現するため、物件選びからリノベーション、インテリアまで幅広く提案。ITツールを活用しつつ、一人ひとりに寄り添ったコンサルティングで、住まい探しから購入後までを一貫してサポートします。顧客志向と専門性を重視し、理想の住まいとの出会いをプロデュースします。











