下町のやさしい空気に包まれる、ゆったりとした1LDK。木と白の心地よい空間にたっぷりの収納も完備。街歩きも、家での時間も、どちらも楽しめる住まいです。
品川区二葉(中延駅徒歩5分)
1LDK
/ 52.33㎡
/ 5,180万円
企画担当

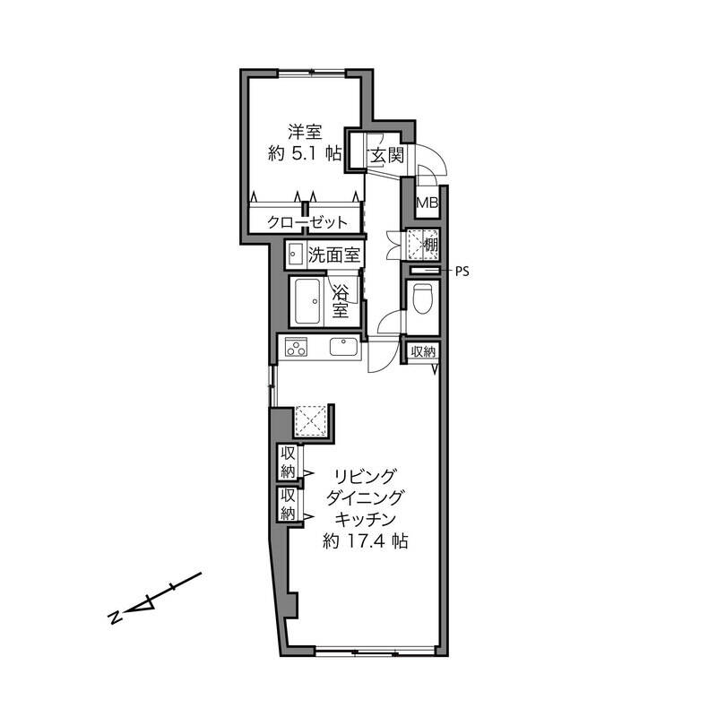
専有面積約52㎡を1LDKにした間取り。収納は、LDK・廊下・洋室の3箇所にしっかり確保されていて、暮らしやすさにも配慮されています。
cowcamo
現在はリノベーション工事中のため、完成イメージをCGでご紹介します。それでは、LDKのこだわりを中心に見ていきましょう!
シェアしたくなる 心地よさ

LDKの広さは約17.4帖。内装は木と白の温かみある空間に。トールサイズの収納が3つもあるので、急な来客でもすっきり片付きますね。

左手の壁は木の腰壁であしらわれ、間接照明がほのかに灯るつくり。アートや写真を飾れば、そっと引き立ててくれます。
販売担当
床は木の質感が楽しめる突板を使用し、内装は木と白を基調とすることで、明るくやさしい印象に仕上げます。
cowcamo
バルコニーのない住戸ですが、そのぶん室内で見どころをつくる楽しみがあります。アートや写真が映える壁を活かして、自分だけの景色を育てていくのも素敵ですね。
北西向き 窓からのビュー

住戸は1階所在。隣接する建物とはフェンスで仕切られているため、視線は気にならなさそうです。
広々LDを叶える 壁付けキッチン

キッチンは、3口ガスコンロ・浄水器を完備。食洗機は付属していませんが、後から設置可能です。
企画担当
洋室(約5.1帖)と水まわりは廊下からアクセスします。ユニットバス(1216サイズ)は、浴室乾燥機付きですので、洗濯物は浴室で乾かすことができます。
マンションのご紹介

総戸数31戸、1996年竣工の新耐震基準適合マンションです。宅配ボックス・オートロック・防犯カメラを完備。エントランスまでは、階段を数段降りる必要があります。
cowcamo
2025年11月現在、駐車場(月額25,000円)・駐輪場(無償)ともに空きがあります。駐車場は先着順で1台のみ空いているので、空き状況やサイズなどの詳細はエージェントまでお問い合わせください。
下町風情ある 街並み

上・東急池上線「荏原中延」駅から東急大井町線・都営浅草線「中延」駅に伸びる約330メートルの商店街「なかのぶスキップロード」は活気ある商店がズラリ。(徒歩9分)/左下・商店街の入口にある地元住民に愛されるお肉屋さん「肉の伊吾田 」。(徒歩9分)/右下・「隣町珈琲」は、ミニマルな書店・ギャラリーを併設したカフェで、魅力的なイベントが数多く企画されています。(徒歩11分)
cowcamo
最寄りの都営浅草線「中延」駅(徒歩5分)から「五反田」駅までは約4分、「渋谷」駅までは約20分の乗車時間です。
また、東急大井町線「中延」駅(徒歩8分)やJR湘南新宿ラインほか2路線使える「西大井」 駅(徒歩10分)も利用でき、通勤もお出かけもしやすい立地ですよ◎
カウカモ編集部より
今回の物件はカウカモプロデュース。“余白がある贅沢を愉しむ暮らし” をテーマに、LDKを広く確保し、たっぷりの収納を備えた住まいです。
バルコニーがない分、アートや写真が映える壁で見どころを作れたり、木や白を基調とすることで、明るい印象の室内に仕上げたりと、暮らしを愉しむ工夫が散りばめられています。
リノベーションは2026年1月に完成予定ですが、工事中でもご案内は可能です。実際のスケール感や光の入り方などは、現地だからこそ確かめられるポイント。記事では伝えきれなかったLDK以外の仕様もご紹介できますので、ぜひお問合せください。
まだ出会えていないだけで、もっといい出会いがあるカモ?
記事の物件も素敵ですが、実はカウカモでは、未掲載物件を含む約1万件*の中から物件のご紹介が可能です。「もっと自分好みにリノベーションしたい」というご相談も、もちろん大歓迎。一歩踏み込んで、私たちと一緒に住まい探しを始めてみませんか?
*2024年における、東京都23区、首都圏都市部における、35平米・2500万円以上の物件のご紹介可能な平均総数
都営浅草線「中延」駅から徒歩5分の一室をカウカモがプロデュースしました。LDKをゆったりと設けたつくりで、思わず友人を招きたくなるような、心地よい1LDKの住まいです。