
カウカモ編集部より
間取り
概要
- 販売価格
-
7,380 万円
- ローンの目安
-
208,327 円/月
- 管理費
-
7,988 円/月
- 修繕積立金
-
23,195 円/月
- その他費用
-
トランクルーム使用料 200 円/月
- ペット
- 相談 (細則あり※要承認)
-
東急田園都市線・東急大井町線「溝の口」駅 徒歩10分
-
JR南武線「武蔵溝ノ口」駅 徒歩10分
-
東急田園都市線・東急大井町線「高津」駅 徒歩9分
- 建物
-
パークシティ溝口E棟
- 間取り
-
3LDK
- 広さ
-
76.80㎡
- バルコニー
-
16.64㎡
- 構造
-
鉄骨鉄筋コンクリート造
- 階層
-
地上15階建て10階部分
- 総戸数
-
180戸(全体:1103戸)
- 築年月
-
1982年3月
- 改装年月
-
2026年3月
- 現況
-
空室
- 引渡
-
即可
- 管理形態
-
全部委託
- 管理員
-
日勤
- 管理会社
-
レーベンコミュニティ
- 土地権利
-
所有権
- 事務所利用
-
不可
- その他
-
家具・小物は物件に付帯しておりません
- 取引態様
-
媒介(仲介・株式会社ツクルバ、他)
- 情報更新日
-
2026/04/20
- 更新予定日
-
2026/05/04
物件の設備状態や改修状況の詳細は、必ずご契約前に現場又は付帯設備表等で改めてご確認ください。
※物件に関する各種情報及び物件周辺状況に関する記載と現状に差異がある場合は、現状優先となります。
※販売状況は都度更新しておりますが、日々変動しており、お問い合わせ時点で実際の状況と異なる場合がございます。あらかじめご了承ください。
マンション情報
パークシティ溝の口(D・E棟)
- 溝の口駅 徒歩10分
物件の販売状況
販売中
- 東急田園都市線・東急大井町線「溝の口」駅から徒歩10分、広大な敷地に複数棟が並ぶビッグコミュニティのご紹介です。敷地内は豊かな緑に彩られ、気持ちよさそう♪ スーパーもあり、お買い物環境も◎です。
- 1982年竣工の建物で、直近の大規模修繕工事は2022年に実施されています。共用部にはオートロックと宅配ボックスを完備していますよ。スケールメリットで共益費は抑えられており、管理費よりも修繕積立金に重きを置いた徴収バランスも好印象です。
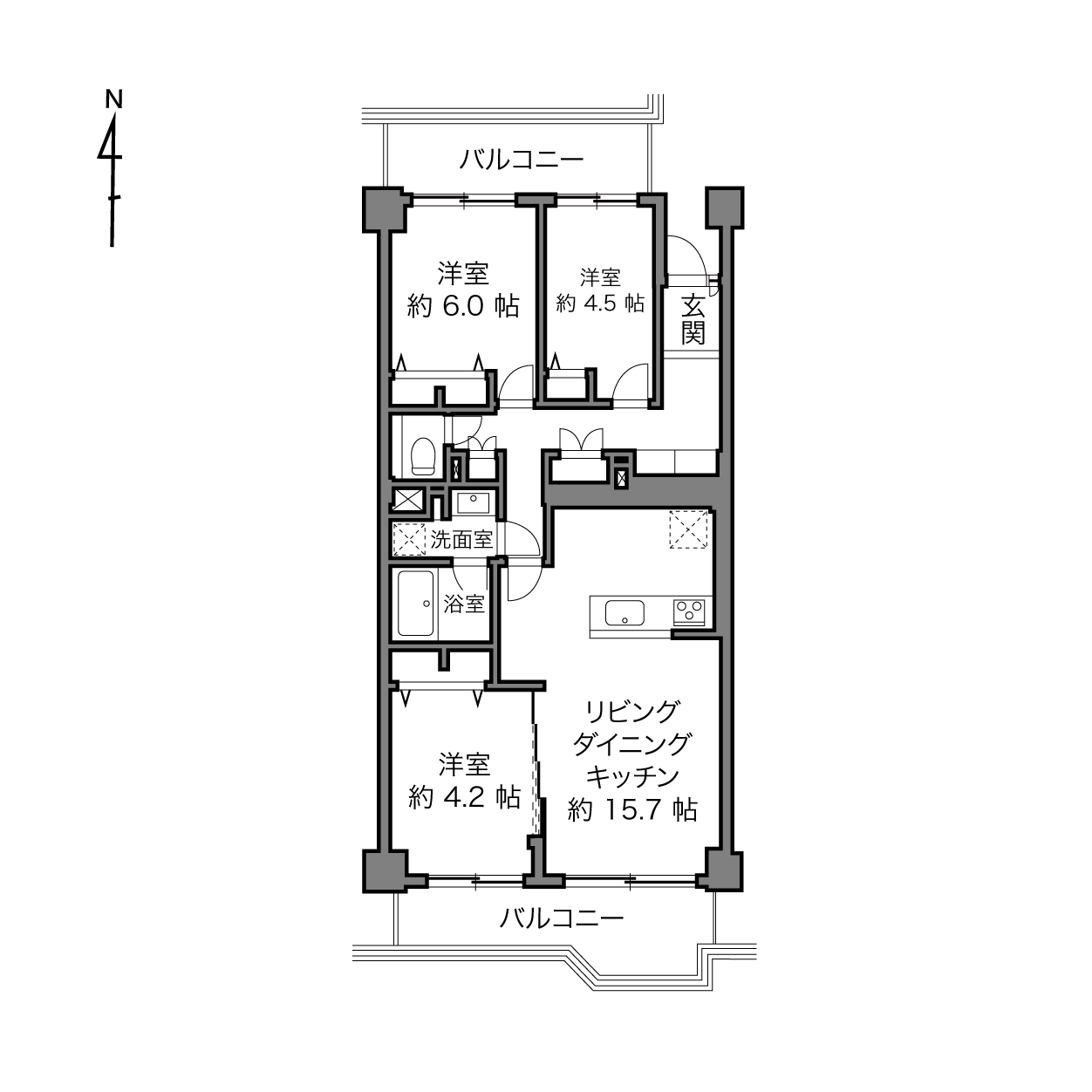
- 10階に所在する住戸で、専有面積約76㎡を3LDKにした間取り。LDKは約15.7帖とゆとりのある広さを確保しています。廊下に収納が設けられており、なにかと便利そうですね。バルコニーからの眺望には抜けがあり、南向きで日当たりもよさそうですよ。