川崎市麻生区岡上(鶴川駅)
白藍の蜃気楼
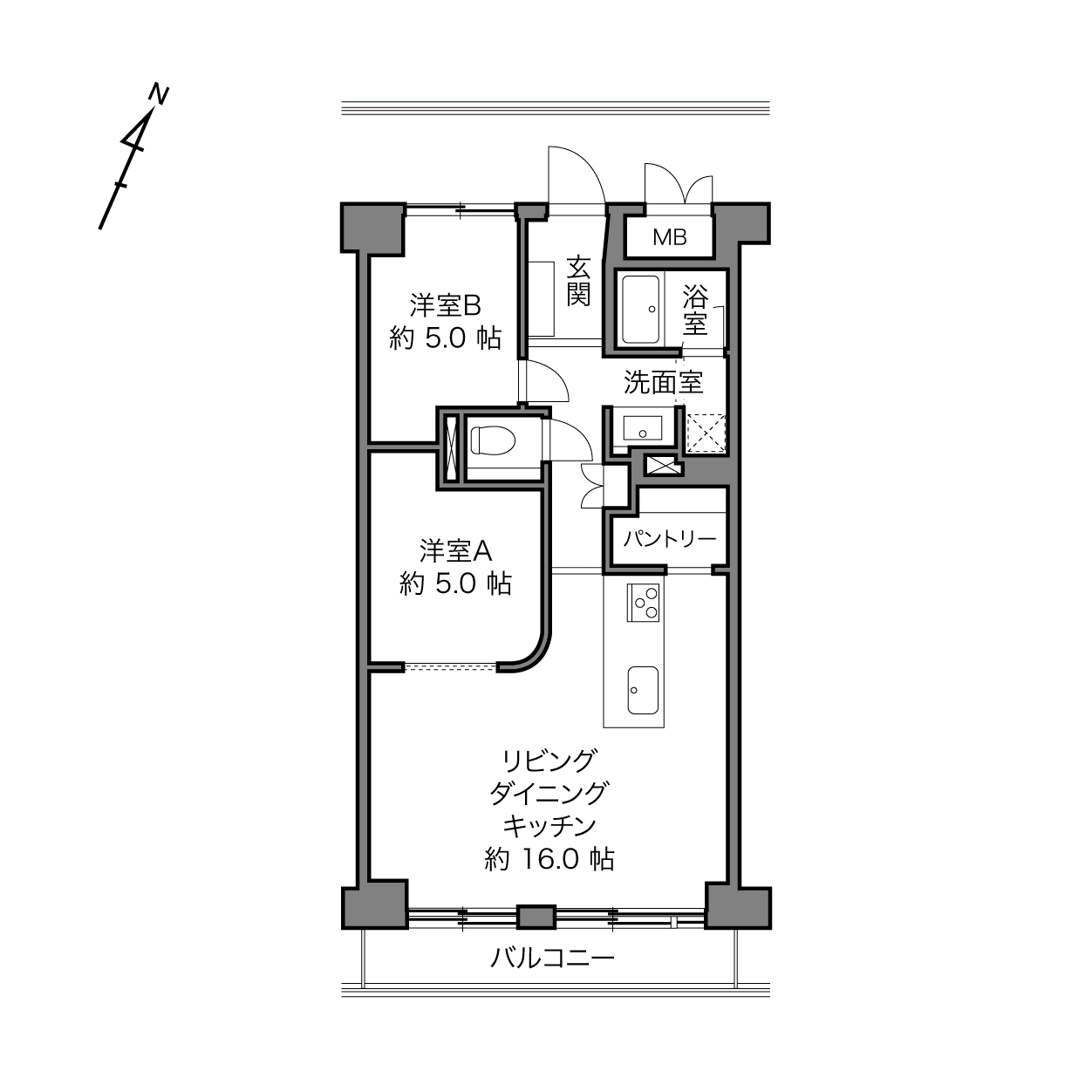
岡上住宅(1号棟・2号棟)
ほのかに青を含んだモノトーンの空間。淡い色調は海辺で蜃気楼を見るような幻想的な風景を浮かび上がらせ、暗めの色調はぼやけた輪郭を際立たせる。一級建築士の理想を詰め込んだ一邸を、余すことなくご覧ください。
現在ご紹介可能な物件は、中古・リノベーション住宅のオンラインマーケット「cowcamo(カウカモ) 」よりご覧いただけます。
売主さまのご紹介
Kさま
一級建築士であるKさま。自身の理想と向き合い、2024年にフルリノベーションを実施されました。この度は、ライフスタイルの変化により住み替えすることに。
海辺で蜃気楼を 見るような

ほんのりと青みがかった白と黒の濃淡。絶妙な色調の使い分けで、空間が凛々しい雰囲気を纏っています。今回は、「生活感のない凛としたインテリア」をテーマにリノベーションされたこちらの住まいをご紹介します。
売主さま
玄関から ルームツアースタート

ベンチが設置できるほどのゆとりがある玄関スペース。大きな姿見があって身だしなみの最終確認もしっかり出来そうです。
売主さま
現在はベンチを置いていますが、代わりに自転車やベビーカーなども置くこともできます。
奥に進むと

住戸の突き当たりにLDKが。南東側いっぱいに開口した窓からは日差しがたっぷりと取り込まれ、室内に光が満ちています。
売主さま
床材にはリノリウム素材を使っています。天然由来の成分で出来ているので環境にやさしく、抗菌・脱臭効果までありますよ。

天井は躯体現しを白く塗装。高さも確保しているので、空間にゆとりを感じられます。

振り返って、ダイニングとキッチンをパシャリ。スリムなタイル、風合いのある塗装壁、キッチンの框組ドア……異なる材質が散りばめられていますが、色調が統一されていることにより、それぞれが空間に馴染みまとまっています。
売主さま
キッチン背面の壁にはオーストラリアの塗料「へイムスペイント」を、上部の垂れ壁にはイギリスの塗料「ファロー&ボール」を使用しています。さまざまなメーカーのサンプル帳から内装の雰囲気にあう塗料を探して、厳選しました。
cowcamo
改めてリビングとダイニングキッチンを見比べてみると、濃淡の違いがわかりますね。一方は淡く幻想的、一方は濃く凛々しい。空間全体が単調にならない工夫が詰め込まれています。
スマートで 機能的なキッチン

見た目が洗練されているだけでなく、機能面も充実したシステムキッチン。タッチレス水栓、洗剤自動投入型食洗機付きで、前面の框組ドア内は収納になっています。

キッチンの奥にあるカーテンの先は、パントリースペース。食料ストックや調理家電、冷蔵庫などはこちらに収まるので、生活感をグッと抑えられます。
改めてLDKの全貌を

洋室の開口と間仕切り壁についているアールが印象的。南東から差し込む光が柔らかく反射するように考えられて設計されたそう。
売主さま
アールで個性を出したかったのと、リビング側の壁にプロジェクターを写した時にキッチン側からの死角を無くしたかった意図もありますね。
生活の出発点と 終着点

約5帖の洋室A。床はフローリングに切り替わり、壁の一部がコンクリート現しに。
売主さま
LDKが生活感を抑えていたので、寝室には温かみを出したいと思い、フローリングに切り替えました。躯体のコンクリート壁は現しとして、リノベーションらしいラフな部分をあえて残すことで、凛々しさの中にもどこか “隙” のあるような人間的な魅力を表現しています。

居室の仕切りとして使われているカーテンは、スイスのファブリックメーカー「クリエーションバウマン」のもの。LDKからの光をやさしく取り込みます。
売主さま
寝室は日々の終着点であり、出発点でもあると考え、一筆書きで描いた生活動線の終わりに配置しました。
バルコニーへ

6階に所在する住戸からの眺め。高い建物がなく、遠くまで視線が抜けています。これは気持ちいい。
売主さま
前方に道路を挟んで公園があり、その先も用途地域の関係で高い建物が建たないことがわかっていたので、室内の日当たりのよさが確約されていました。これが物件購入の決め手のひとつにもなっています。

バルコニーには、吊り金具が備わっています。
売主さま
反対側に線路が走っていますが、リノベーションでインナーサッシ設置工事も行っているので、電車による騒音はほとんど気になりません。全ての居室にエアコンを設置していますが、断熱改修も行っているため、リビングのエアコン一台でも十分快適に過ごせますよ。
室内に戻って

左・LDKを背に廊下を見たカット。/右・途中にニッチ収納が設けられています。スポットライトが灯り、展示スペースのよう。下部は両開きの収納スペースになっています。
約5帖の洋室B

共用廊下に面した居室。窪んだスペースにハンガーパイプが配されているので、洋服を掛けても収まりがいい◎
売主さま
ここは将来子ども部屋にすることも考え、設計段階からベッドが入る寸法でつくりました。
水まわりも 美しい

落ち着いたトーンで統一された洗面室。一面の鏡、ボーダーのタイルなど、ラインが整っていると美しいですね。カーテンを閉じることで脱衣スペースと分けることも可能。

左・白を基調としたミニマルなバスルーム。/右・トイレはタンクレスですっきりとしたフォルム。さりげなくカウンターが用意されているのがうれしい。
マンションのご紹介

1号棟と2号棟を合わせて計121戸にもなる大規模マンション。竣工は1978年。月額8,000円で利用できる平置きの駐車場は、2025年12月時点で空きがあります。
cowcamo
2025年3月末時点で修繕積立金の総額は、約1.8億円超あります。
利便施設が揃う 周辺環境

上・最寄りの「鶴川」駅前に建つ大型スーパー「Odakyu OX 鶴川店」。23時まで営業しており、日常の心強い味方になってくれそう。(徒歩10分)/左下・サードプレイスにあると便利な「スターバックス コーヒー 鶴川店」。売主さまもよく訪れるそう。/右下・パティスリー&ベーカリー「こがさかベイク 鶴川店」は売主さまのおすすめスポット。ここで買ったケーキやパンをお供に自宅で作業する、なんていうのも素敵。
売主さま
最寄りの小田急線「鶴川」駅へは歩道橋を渡って10分ほど歩く必要がありますが、2年後の再開発で南口のアクセス改善が予定されているので、今後はより駅まで行きやすくなると思います。駅前には家電量販店もあるので、日常生活に不便はありませんでした。
cowcamo
「新宿」や「渋谷」へは、電車でアクセスして40分前後の距離感。商業施設の多い「町田」や映画館のある「新百合ヶ丘」へは乗車時間5分程度で行くことができますよ。
カウカモ編集部より
花やアートが自然と映えるよう、住戸全体の色彩はあえてコントラストを抑え、 “住まい手自身の色” がアクセントになるように設計されたのだそう。売主さまのバックボーンとともに、このリノベーションに込められた思想や美意識が、空間の隅々にまで行き渡っています。
設計の背景にある想いごと受け継ぎながら、次の暮らしへと紡いでいってほしい。そんなふうに思わせてくれる一邸でした。
writer/ editor:秋月 胤斗
リビングは全体的に青を含んだ明るい色調で統一し、海辺で蜃気楼を見るような幻想的な空間としました。一方で、ダイニングキッチンは対照的に青を含んだ暗めの色調で統一することで、コントラストに緩急を持たせた凛々しい空間にしています。