「学芸大学」の街を背景に、特別な日(ハレ)と日常(ケ)が心地よく交差する一室。誰かを迎える賑やかなひとときも、ふたりで過ごす静かな日常も。住まいが関係の深まりにそっと寄り添います。
目黒区中央町(学芸大学駅徒歩9分)
2SLDK
/ 74.99㎡
/ 12,290万円
企画担当
cowcamo
現在リノベーション工事中のため、LDKのこだわりを中心に、完成イメージをCGでご紹介します。

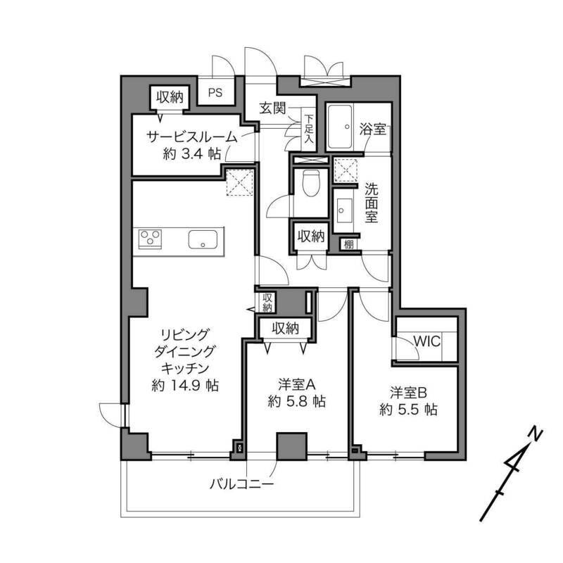
専有面積約75㎡を2SLDKにした間取り。しっかりと広さを割り振ったふたつの洋室のほかにも、ライフスタイルにあわせて自由度高く使えるサービスルームを設けます。
住宅街のカドに 建つマンション

1989年に竣工した、新耐震基準適合の建物。エントランスはオートロック・宅配ボックス付きです。
企画担当
直近の大規模修繕工事は2022年に実施済みです。
cowcamo
敷地内の自転車置き場は、1台目は無償で利用いただけます(1台目は屋根付き区画、2台目以降は屋根無し区画&有償の可能性あり)。自転車があると、行動範囲がさらに広がりそうな楽しいエリアですよ!
CGイメージで ご紹介します

LDKの広さは約14.9帖。南東向きのバルコニーと南西向きの窓に面した、二面採光の空間です。

窓を背にしたカット。リビングダイニングにはスリムな収納があり、こまごまとしたアイテムを整理整頓しやすい設計です。
企画担当
クロスなどはウォームグレーで統一し、安らぎを感じる内装にデザインします。さらに、間接照明を仕込んだ折り上げ天井を採用し、ダウンライトとあわせて落ち着きある照明計画にしました。照明の明るさを調整することで、友人を招いた際には空間を演出することも可能です。
cowcamo
ダイニングテーブルはラウンド型を選ぶと、動線がすっきりと収まりそうですね。
会話が弾む 対面キッチン

キッチンは3口コンロタイプで食洗機付き。天板は調理や配膳のしやすさに配慮したフラットタイプを採用します。
企画担当
背面には、冷蔵庫と並べて棚を配置できる余白がありますよ。
バルコニーへ

正面には、隣接するマンションの共用廊下が見えます。
cowcamo
距離感や視線の感じ方については、現地でご確認いただきたいポイント。目隠しのカーテンは必須になりそうなので、そのあたりを含めてご検討くださいね。
楽しい周辺環境

レストラン「INDIGO(インディゴ)」は、自家菜園や日本各地の生産者から届く旬なお料理をいただけるお店。こだわりのカリフォルニアワインが揃っていますよ。日曜はお子さま連れもOKです!(徒歩4分)

「Factory&Labo(ファクトリーアンドラボ)神乃珈琲」は、“日本人のためのコーヒー” を追求するカフェ。開放感と陽の光が溢れる店内で、忙しさから離れてサードプレイスとして通いたいお店です。(徒歩5分)

「巴裡 小川軒 目黒店(パリ オガワケン)」の名物は、元祖レイズン・ウィッチ。手土産やホームパーティのお菓子の購入におすすめ。(徒歩5分)
cowcamo
最寄りの「学芸大学」駅(徒歩9分)のほかにも、「祐天寺」(徒歩14分)の駅周辺もアクセスしやすい距離。さらに商店街が楽しい「武蔵小山」(徒歩22分)など、近隣エリアの開拓も楽しそうですよ!
カウカモ編集部より
“学芸大学エリア” を暮らしの舞台に、利便性と落ち着いた住環境が叶う住まい。駅周辺の賑わいから少しだけ距離を置いた立地が、暮らしにほどよい余白をもたらしてくれます。
専有面積約75㎡を2SLDKにした間取りで、ふたり暮らしからファミリーまで、さらにはライフステージの変化を見据えた検討もしやすそう。周辺散策の時間もスケジュールに入れていただきつつ、ぜひ現地にお越しくださいね!
「学芸大学」を舞台に、カウカモがプロデュースした物件です。「ふたりの時間を深め、人との時間を愉しむ住まい」をコンセプトに、温かみのある空間に仕上げます。