目黒区下目黒(目黒駅)
自然体で、凛として
マイキャッスル目黒2
賑わう「目黒」の真ん中の、穏やかな空気感と都会の洗練がバランスよく調和する住まいです。将来の変化さえも楽しみになる、余白を残した「今の自分たち」にちょうどいい居場所。自然体な家族での暮らしを、ここから始めてみませんか?
現在ご紹介可能な物件は、中古・リノベーション住宅のオンラインマーケット「cowcamo(カウカモ) 」よりご覧いただけます。
東横線・目黒線
現在販売中のおすすめ中古マンション
舞台は「目黒」

こちらの物件は、最寄り駅の「目黒」(徒歩8分)を便利に使った都内のお出かけや、ご近所散策を存分に楽しめる立地が大きな魅力。東急目黒線「不動前」駅も徒歩12分の距離ですよ。
企画担当
あら、明るい♡

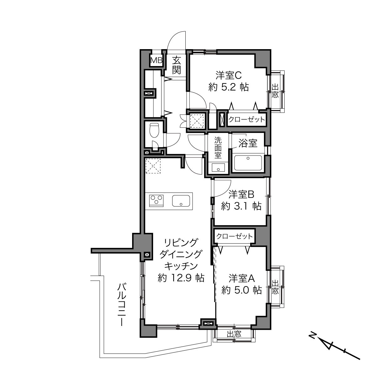
LDKの広さは約12.9帖。南西向きのバルコニーに面した、二面採光の空間です。

床はチーク調の色味のフローリング。深みのある色合いで、インテリアにしっくりと馴染みそうです。
cowcamo
こんなふうに隣接する洋室Aの引き戸を開放すれば、さらに奥行きのある空間へと姿を変えます。家族が心地いい距離感を保てそうなリビングダイニングですね!
企画担当
洋室Bを除くすべての窓にインナーサッシが付いています。外気の影響を受けにくく、音の伝わりも抑えてくれますよ。
空間を引き締める キッチン

リビングダイニングを眺める、対面式のシステムキッチン。3口コンロタイプで食洗機付きです。
企画担当
既存の温かみある内装を生かしつつ、キッチンにはエッジの効いたダークグレーの石目調の素材をセレクトしました。
cowcamo
きれいめなインダストリアルデザインが、空間全体をキリッと引き締めていますね!
バルコニーへ

バルコニーは住戸の南西角を覆うワイドなサイズ。手すりのデザインが可愛い!

眺望はこんな感じ。正面に見える建物との距離感は、現地でご確認いただきたいポイントです。
cowcamo
建物が密集しているエリアのため、囲われ感があります。バルコニーには物干し金具がありますが、気になる場合は、浴室乾燥機の併用や乾燥機能付きの洗濯機の導入をご検討いただくといいかもしれません。
室内に戻って 約5帖の洋室A

LDKに隣接する洋室Aは、南東・南西の二面採光。窓は出窓タイプです。

収納として、折れ戸2枚分のクローゼット付き。
続いて 約3.1帖の洋室B

洋室BもLDKと隣り合う間取り。室内窓がアクセントになっており、採光を確保しています。
cowcamo
洋室Bは、まるでコンパクトな「基地」のような空間。お子さまの遊び場や、趣味に没頭するアトリエ……はたまた大型の衣装部屋のように贅沢に使うのも一案カモ!
廊下を経由して 約5.2帖の洋室Cへ

洋室Cは、共用廊下に面する北東と南東の二面に窓があります。
cowcamo
採光はちょっと控えめなので、ベッドルームとして割り切った使い方がおすすめです。クローゼットのほかにも扉付きの棚を設置済みなので、衣類と身のまわりのアイテムを分けた整理がしやすそう!
清潔感ある 水まわり

左・三面鏡付きの洗面台。/中央・1317サイズのユニットバス。浴室乾燥機と追焚き機能を完備しています。/右・トイレには廊下からアクセスします。
整理整頓が叶う 玄関まわり

廊下には、靴以外にアウトドア用品なども収まりそうな大型収納を確保しています。
cowcamo
収納が豊富にあることで、住まい全体を整った印象に保てそうですね!
平成築の きれいなマンション

1997年に竣工した、オートロック・宅配ボックス付きのマンション。大通りからは奥まった場所に位置しています。

左上・メイン道路からやや奥まったエントランスアプローチ。/右上・エントランスには窓口が。こちらのマンションでは管理人さんは不在で、清掃員さんのみ勤務されている体制です。/左下・重厚感ある共用ロビー。/右下・ご紹介した住戸は2階に所在する角部屋です。
ご近所に楽しみ 集まってます!

左上・春は桜を眺めながら、夏は新緑の木陰を、秋には紅葉に包まれて……目黒川沿いは季節を感じられるお散歩コース。(徒歩2分)/右上・目黒通り沿いにあるカレー屋の名店「LAND(ランド)」。たくさんのスパイスがバランスよく混ざり合った絶品カレーはぜひご賞味を!(徒歩4分)/左下・こちらは「Pizza Giardino Savoy(ピッツア ジャルディーノ サヴォイ)」。高温の窯の中で短時間で焼き上げたピザは、外はサクッと生地はもちっとの絶品です。(徒歩1分)/右下・クラフトビールを週替わりで楽しめる「Craft Beer&Wine THE DODO HOUSE(ザ ドードーハウス)」。仕事帰りには、カウンターで黄金色のビールに癒されて。(徒歩3分)
カウカモ編集部より
今回のカウカモによるリノベーションでは、持つ落ち着いた雰囲気に、モダンな素材を掛け合わせることで、単なる「新しさ」だけではない、深みのある空間に仕上げました。
間取りの自由度の高さは、これから暮らしのかたちを変える可能性を残すファミリーにとって、心地いい余白となるはず。この住まいから、新しい日常を始めてみませんか?
まだ出会えていないだけで、もっといい出会いがあるカモ?
記事の物件も素敵ですが、実はカウカモでは、未掲載物件を含む約1万件*の中から物件のご紹介が可能です。「もっと自分好みにリノベーションしたい」というご相談も、もちろん大歓迎。一歩踏み込んで、私たちと一緒に住まい探しを始めてみませんか?
*2025年における、東京都23区、首都圏都市部における、35平米・2500万円以上の物件のご紹介可能な平均総数
writer:軽部 優海/editor:小田切 咲樹
この物件の建物情報
マイキャッスル目黒2
こちらの物件はカウカモがプロデュースしました。2021年にリノベーションされており、もともとの内装や設備がきれいな状態でしたので、一部既存を利用したリノベーションを実施しています。全体的な使用感は現地でご確認くださいね。