港区赤坂(乃木坂駅)
AKASAKA CALM
赤坂グランドハウス
港区赤坂8丁目に佇む、最上階角住戸。専有面積約144㎡、L型ルーフバルコニー付きのゆとりある住空間です。洗練された内装と静けさが調和する、都心の穏やかな日常を叶えます。
現在ご紹介可能な物件は、中古・リノベーション住宅のオンラインマーケット「cowcamo(カウカモ) 」よりご覧いただけます。
表参道・青山
現在販売中のおすすめ中古マンション
“港区赤坂アドレス” です

左上・最寄り駅のひとつ東京メトロ千代田線「乃木坂」。「乃木神社」が隣接しており、緑豊かな環境です。(徒歩7分)/右上・都営大江戸線・東京メトロ銀座線・半蔵門線が通る「青山一丁目」駅。新宿、渋谷、新橋、大手町といった都内の主要駅に乗り換えなしでアクセスできます。(徒歩7分)/左下・「東京ミッドタウン」裏の「ミッドタウン・ガーデン」はこのエリアのオアシス。高層ビルを眺めながら緑に癒される、贅沢なスポットです。(徒歩10分)/右下・緑豊かな「高橋是正翁記念公園」。四季の移ろいを楽しめそうです。(徒歩6分)
売主さま
cowcamo
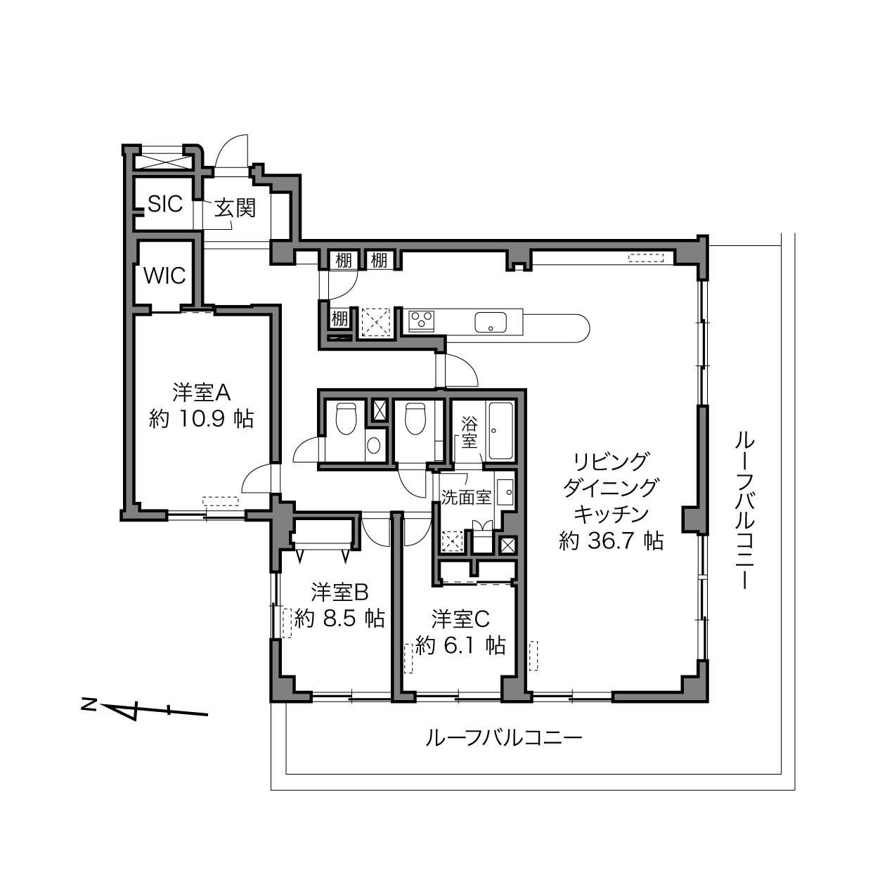
今回ご紹介する住戸は、最上階角住戸で専有面積約144㎡の3LDK+ルーフバルコニー付き!
LDKから拝見していきましょう!

約36.7帖のLDK。南と西向きの窓があり明るい空間です。
cowcamo
全ての窓が、L型のルーフバルコニーに面していますよ。

折り上げ天井には間接照明が入っており、空間に広がりを感じます。
cowcamo
床はタイル貼り。インテリアを邪魔しない色味が素敵です。

壁はグレージュの色味で統一され、巾木もグレーでまとまっています。細かい部分の気遣いがうれしい!
主役のキッチン

アールのリブ材で彩られたキッチンカウンター。背面のカウンターも便利そう!
cowcamo
スツールを並べれば、キッチンに集って、会話をしながらお料理や食事を楽しむこともできますよ。

左・キッチン本体には、フロントオープンタイプの食洗機と3口コンロが備わっています。/右・キッチン奥のRの開口の中にパントリーが。たっぷりの可動式の収納棚と、冷蔵庫を置くスペースがあります。
cowcamo
写真奥の扉は、玄関前の廊下へとアクセスしています。お買い物して帰った後、スムーズにキッチンへと行けます。
南向きルーフバルコニー

正面からの眺望。向かいには道路を挟んで、建物があります。しっかり距離は取れている印象ですよ。中央には六本木ヒルズがチラリ!

取材日はあいにくの雨模様でしたが、南向きのバルコニーなので、写真のように観葉植物を置けば元気に育ってくれそうです。
cowcamo
テーブルと椅子を出してセカンドリビングのような使い方もいいですね♪
約10.9帖の洋室A

大きなベッドを配置できる広さ。一人掛けソファやフロアスタンドなども置ける余裕がありインテリアも楽しめそうです。
cowcamo
床はヘリンボーン。扉の中は広々としたウォークインクローゼット(WIC)です。

腰窓は西向き。窓の下の箱状のものは、セントラルヒーティングの機械です。
洋室Bと洋室C

上・約8.5帖の洋室B。北と西向きに窓があります。折れ戸タイプの収納付き。/下・約6.1帖の洋室C。こちらには引き戸タイプの収納が備わっています。
cowcamo
洋室B・Cはいずれも、ルーフバルコニーにアクセス可能です。

L型のルーフバルコニーはリビング側へと続いています。角部分はスペースにゆとりがあり、少し大きめのアウトドアチェアを置けそうです。
ゆったりした造りの水まわり

左・造作の洗面台。アクセントのタイルが既視感がなく素敵です。/右・浴室換気乾燥機が備わった1616サイズのユニットバス。

左・トイレは横並びで2つあります。こちらは洗面室に近い側。手洗器付きです。/右・こちらは、広めの洗面台が付いています。ゲスト用にぴったり。
cowcamo
マンションですと、トイレが2つある物件はかなり限られているので、うれしいポイントです! ゲスト用と使い分けることもできるので、来客が多い方には特におすすめ。
廊下と玄関

左・タイル貼りの廊下。正面のカウンターには象徴的なインテリアを飾りたいですね。/中央・ゆったりした玄関。左手にはベンチがありますよ。右手の扉を開けると……。/右・大きなシューズインクローゼット(SIC)が。
堂々たる風貌

“港区赤坂アドレス” のヴィンテージマンション。赤煉瓦が時を経て、景色に馴染んでいます。1979年竣工、総戸数48戸です。

左上・アプローチにも、レンガ風タイルが貼られシックな印象。/右上・エントランスにはオートロック付き。/左下・エントランス奥には、ソファセットが設えられたラウンジスペースがあります。/右下・内廊下タイプの共用廊下。
cowcamo
管理人さんは毎日9時から20時までご勤務されています。
美味しい立地

左上・マンションの正面にある「ホテル アジア会館」。館内に入っている「Restaurant & Bar四季」では、季節を感じる食事を楽しめますよ。(徒歩1分)/右上・住宅街に佇む一軒家レストラン「青山エリュシオンハウス」。ガラス張りの店内からは中庭の緑を望むことができ、寛ぎながらお食事を楽しめます。ゆったりとした個室も魅力。(徒歩3分)/左下・“パークライフスタイル” がコンセプトの「SHARE GREEN MINAMI AOYAMA(シェアグリーン南青山)」。カフェでは、自家焙煎のコーヒーやハンバーガーを提供しています。(徒歩7分)/右下・フランスの伝統的な料理から独創的な料理まで楽しめるフレンチレストラン「Lyla(ライラ)」。(徒歩4分)
cowcamo
周辺には、名店も多くありレストラン開拓も楽しそうですね。
カウカモ編集部より
専有面積約144㎡にL型のワイドなルーフバルコニーが付いた住まい。バルコニーはぜひセカンドリビングとして活用していただきたいです。各所にゆとりを感じられ、この築年数だからこそ感じる豊かさがあるかと思います。内装はグレージュを基調に細部までこだわって設計されており、友人と集シーンにもぴったりなキッチンが印象的。玄関を入ってすぐに、パントリーにアクセスできる家事動線や、2か所に設けられたトイレも、日々の暮らしを快適にしてくれるポイントです。
事前にご留意いただきたい点としては、セントラルヒーティングが導入されており、各居室に専用の機器が設置されています。冷暖房・給湯基本料、維持費、ヒーツ利用料が毎月かかります。
立地と広さ、内装の完成度まで含めて、丁寧に住まいを選びたい方に届いてほしい一室です。
まだ出会えていないだけで、もっといい出会いがあるカモ?
記事の物件も素敵ですが、実はカウカモでは、未掲載物件を含む約1万件*の中から物件のご紹介が可能です。「もっと自分好みにリノベーションしたい」というご相談も、もちろん大歓迎。一歩踏み込んで、私たちと一緒に住まい探しを始めてみませんか?
*2024年における、東京都23区、首都圏都市部における、35平米・2500万円以上の物件のご紹介可能な平均総数
writer/editor:小田切 咲樹
この物件の建物情報
赤坂グランドハウス
他にも東京メトロ千代田線「赤坂」駅(徒歩12分)、都営大江戸線・日比谷線「六本木」駅(徒歩13分)も利用できるので、行き先によって沿線を使い分けることができる立地です。