どーん!

ふふふ、この広さなら「どーん」の擬音を使っても問題ないでしょう!LDKは約25.4帖。南西向側のほぼ一面が窓になっていて、開放感たっぷりです。リビングダイニング(LD)には床暖房も完備しています。

ふふふ、この広さなら「どーん」の擬音を使っても問題ないでしょう!LDKは約25.4帖。南西向側のほぼ一面が窓になっていて、開放感たっぷりです。リビングダイニング(LD)には床暖房も完備しています。

cowcamo

こちらの住まいは2020年にフルリノベーションされたもので、今回はクリーニングのみでの販売となります。取材していて、個人的には劣化や使用感がほとんどないキレイな状態だと感じましたよ。ぜひ現地にてご自身の感じ方をお確かめください。

凝ってるんです

奥の壁面にはワイドなオープンシェルフが造作されています。さらに手前の柱部分は凹凸を持たせたタイル貼りで仕上げられており、凝った印象。写真ではわかりづらいですが、よく見ると窓辺の足元も石貼りになっているんですよ。

奥の壁面にはワイドなオープンシェルフが造作されています。さらに手前の柱部分は凹凸を持たせたタイル貼りで仕上げられており、凝った印象。写真ではわかりづらいですが、よく見ると窓辺の足元も石貼りになっているんですよ。

ワイドスパンの向こうには

高台に建つマンションの6階に所在する住戸。近隣の豊かな緑と、大きな空を楽しめる気持ちのいい眺め。右手奥には、お隣の二子玉川の高層ビル群が見えています。

高台に建つマンションの6階に所在する住戸。近隣の豊かな緑と、大きな空を楽しめる気持ちのいい眺め。右手奥には、お隣の二子玉川の高層ビル群が見えています。

売主さま

こちらのバルコニーから、多摩川花火大会を観覧することができますよ。

cowcamo

た〜まや〜!

LDKの横幅いっぱいに延びるバルコニーは奥行きにもたっぷり。ご覧の通り、二人掛けのベンチを置いてもまだ余裕です。

LDKの横幅いっぱいに延びるバルコニーは奥行きにもたっぷり。ご覧の通り、二人掛けのベンチを置いてもまだ余裕です。

cowcamo

2025年秋現在、眼下で低層集合住宅の建設工事が行われています。しばらくは工事音に目をつぶる必要があるカモ……ちなみに取材時には、窓を閉めていれば特に気になりませんでしたよ。

LDKに戻って

窓を背に眺めると、キッチンエリアが軽く一段下がっていて、モルタル風クロスで雰囲気を変えて仕上げられてることが分かります。そして写真中央のドアを開けてみると……?

窓を背に眺めると、キッチンエリアが軽く一段下がっていて、モルタル風クロスで雰囲気を変えて仕上げられてることが分かります。そして写真中央のドアを開けてみると……?

WICあります

書斎(DEN)だと間違えてしまいそうな、広いウォークインクローゼット(WIC)。ハンガーパイプも可動棚も備わっていて、収納力花マル!……いや、本当にここでなら快適に仕事できるかもしれません。<br>

書斎(DEN)だと間違えてしまいそうな、広いウォークインクローゼット(WIC)。ハンガーパイプも可動棚も備わっていて、収納力花マル!……いや、本当にここでなら快適に仕事できるかもしれません。

高級感漂うキッチン

<b>左・</b>スタイリッシュなオープンキッチンにはMiele社の食洗機が備わっています。熱源は3口コンロで、とてもキレイな状態です。/<b>右・</b>さらに奥にはお揃いのキッチンボード、可動棚収納、ゴミ箱などを置けるスペースが用意されています。まさに至れり尽くせり、お料理好きならば感涙必至です。

左・スタイリッシュなオープンキッチンにはMiele社の食洗機が備わっています。熱源は3口コンロで、とてもキレイな状態です。/右・さらに奥にはお揃いのキッチンボード、可動棚収納、ゴミ箱などを置けるスペースが用意されています。まさに至れり尽くせり、お料理好きならば感涙必至です。

廊下に出ましょう

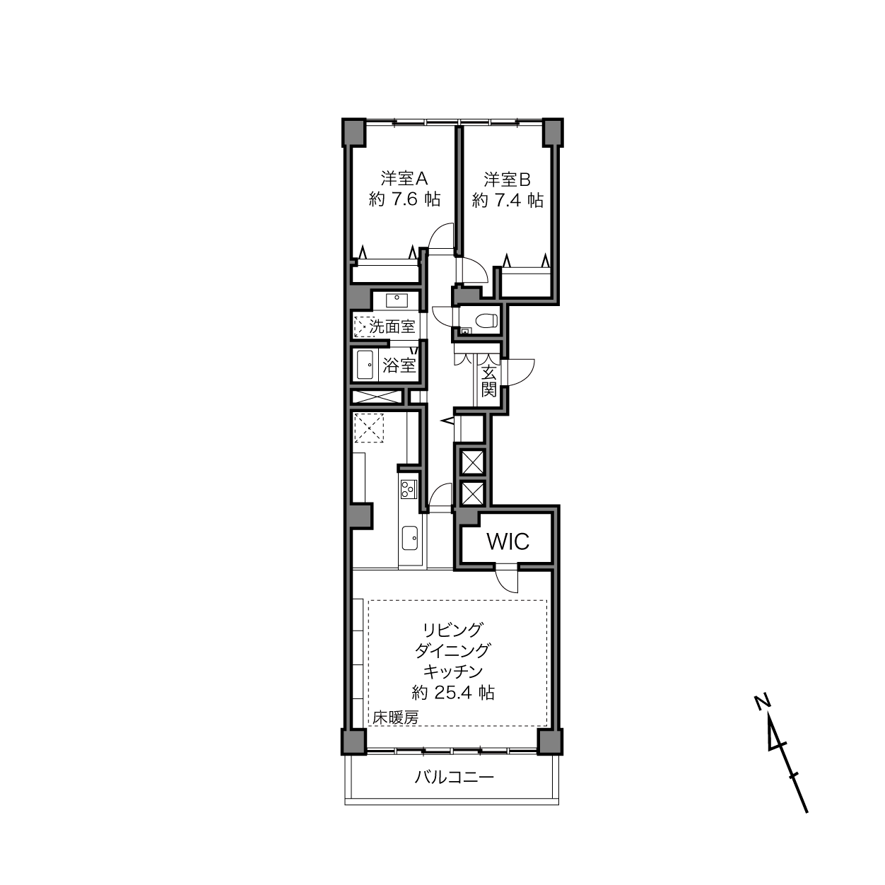
<b>左・</b>廊下の中ほどにある玄関から、今見てきたLDK方向を向いたカット。間にある白い戸を開けると、これまた奥行きたっぷりの収納棚があります。/<b>右・</b>こちらは反対側。水まわり、トイレ、そしてふたつの洋室が並んでいます。

左・廊下の中ほどにある玄関から、今見てきたLDK方向を向いたカット。間にある白い戸を開けると、これまた奥行きたっぷりの収納棚があります。/右・こちらは反対側。水まわり、トイレ、そしてふたつの洋室が並んでいます。

広めの個室で みんなニッコリ

<b>上・</b>約7.6帖の洋室A。/<b>下・</b>約7.4帖の洋室B。いずれも北東向きの窓があり、入った瞬間にゆとりを感じる広さです。どちらも背の高いクローゼットが備わっているので、収納面にも不安ナシ◎

上・約7.6帖の洋室A。/下・約7.4帖の洋室B。いずれも北東向きの窓があり、入った瞬間にゆとりを感じる広さです。どちらも背の高いクローゼットが備わっているので、収納面にも不安ナシ◎

cowcamo

窓の向こうに敷地内のグリーンが見えていい雰囲気♡ ただ、エアコンは窓付けタイプのものを採用することになりそうですので、その点はご留意ください。

細部のこだわりが 止まらない

<b>左・</b>洗面化粧台にあしらわれたタイルが可愛いので、こちらは後ほど! カウンターの横幅が広く、可動式の棚もあって使いやすそうです。/<b>右・</b>ちょっと惜しいことに、バスルームだけは1218サイズとコンパクトです。小さいお子さまと一緒に入る場合は大変かも。

左・洗面化粧台にあしらわれたタイルが可愛いので、こちらは後ほど! カウンターの横幅が広く、可動式の棚もあって使いやすそうです。/右・ちょっと惜しいことに、バスルームだけは1218サイズとコンパクトです。小さいお子さまと一緒に入る場合は大変かも。

お邪魔しました

<b>左・</b>モスグリーンのクロスで渋くきめたトイレ。小さな手洗い器付きで、ラック奥の壁にはブラウンカラーのタイルがあしらわれています。なんとなく、コーヒーショップのお手洗いみたいです(笑)/<b>右・</b>最後に玄関をパシャリ。大きなシューズボックスが頼もしいですね。正面のニッチにはウェルカムアートやお花などを飾りましょ。

左・モスグリーンのクロスで渋くきめたトイレ。小さな手洗い器付きで、ラック奥の壁にはブラウンカラーのタイルがあしらわれています。なんとなく、コーヒーショップのお手洗いみたいです(笑)/右・最後に玄関をパシャリ。大きなシューズボックスが頼もしいですね。正面のニッチにはウェルカムアートやお花などを飾りましょ。

ディテール劇場 開幕

<b>左上・</b>LDKの窓辺の、インナーテラス風になった石部分。グリーンのポットを置いたりするのに便利です。温度次第ではペットの特等席にも?/<b>右上・</b>キッチン前面にあしらわれたタイル。さりげない凹凸がカッコいいです。/<b>左下・</b>色々なタイルが登場するこちらの物件ですが、個人的胸キュン大賞は……キッチン奥の収納棚に使われているコレ! 毎日のテンションが微増しそうです。/<b>右下・</b>こちらは洗面化粧台のもの。どこのタイルも、ひとつひとつこだわりと気合いを持って選ばれた感じがしますね。

左上・LDKの窓辺の、インナーテラス風になった石部分。グリーンのポットを置いたりするのに便利です。温度次第ではペットの特等席にも?/右上・キッチン前面にあしらわれたタイル。さりげない凹凸がカッコいいです。/左下・色々なタイルが登場するこちらの物件ですが、個人的胸キュン大賞は……キッチン奥の収納棚に使われているコレ! 毎日のテンションが微増しそうです。/右下・こちらは洗面化粧台のもの。どこのタイルも、ひとつひとつこだわりと気合いを持って選ばれた感じがしますね。

それでは マンションをご紹介します

緑豊かな閑静な住宅街に佇む、白いマンション。1971年に大手ゼネコンによって建てられた、全3棟・総戸数184戸のビッグコミュニティです。敷地が広大なので入り口は2箇所にあり、こちらは「二子玉川」駅に近い、駒沢通りに面する入り口です。

緑豊かな閑静な住宅街に佇む、白いマンション。1971年に大手ゼネコンによって建てられた、全3棟・総戸数184戸のビッグコミュニティです。敷地が広大なので入り口は2箇所にあり、こちらは「二子玉川」駅に近い、駒沢通りに面する入り口です。

売主さま

細則はありますが、こちらのマンションでは小型犬・猫の飼育が可能ですよ。

<b>左上・</b>駒沢通りと反対側にある入口からは、階段を下るアプローチ。「上野毛」駅へはこちらが近いです。/<b>右上・</b>3つの棟の真ん中に管理棟があり、日勤の管理人さんがご勤務されています。/<b>左下・</b>棟ごとにも複数のエントランスがあり、エレベーターも別々です。待ち時間が少なくなりそうでGOOD。/<b>右下・</b>6階でエレベーターを下りてすぐに住戸の玄関扉が。1フロア2住戸のみの、プライベート感のある造りです。

左上・駒沢通りと反対側にある入口からは、階段を下るアプローチ。「上野毛」駅へはこちらが近いです。/右上・3つの棟の真ん中に管理棟があり、日勤の管理人さんがご勤務されています。/左下・棟ごとにも複数のエントランスがあり、エレベーターも別々です。待ち時間が少なくなりそうでGOOD。/右下・6階でエレベーターを下りてすぐに住戸の玄関扉が。1フロア2住戸のみの、プライベート感のある造りです。

穏やかさと賑わいの イイトコどり!

<b>左上・</b>建築家・安藤忠雄氏デザインの駅舎が目を惹く、東急大井町線「上野毛」駅が最寄り。(徒歩7分)/<b>右上・</b>閑静な住宅街の中に突然現れる、約6,000坪もの敷地を有する「五島美術館」。見事な庭園や四季折々の植物を楽しめます。(徒歩2分)/<b>左下・</b>「上野毛」のすぐお隣は「二子玉川」駅(徒歩12分)。駅直結の商業施設「二子玉川ライズショッピングセンター」にはショッピング施設やレストラン、映画館などなんでも揃っています。(徒歩7分)/<b>右下・</b>緑豊かな芝生と大きな空が広がる、憩いスポット「二子玉川公園」。お子さまやワンちゃんとのお散歩コースにぴったりでしょう。(徒歩9分)

左上・建築家・安藤忠雄氏デザインの駅舎が目を惹く、東急大井町線「上野毛」駅が最寄り。(徒歩7分)/右上・閑静な住宅街の中に突然現れる、約6,000坪もの敷地を有する「五島美術館」。見事な庭園や四季折々の植物を楽しめます。(徒歩2分)/左下・「上野毛」のすぐお隣は「二子玉川」駅(徒歩12分)。駅直結の商業施設「二子玉川ライズショッピングセンター」にはショッピング施設やレストラン、映画館などなんでも揃っています。(徒歩7分)/右下・緑豊かな芝生と大きな空が広がる、憩いスポット「二子玉川公園」。お子さまやワンちゃんとのお散歩コースにぴったりでしょう。(徒歩9分)

cowcamo

カウカモ編集部より

坂道はあるけれど、ゆとりもあります。ニコタマエリアでこだわりを持った暮らしを描きたいご家族に、おすすめです!

「上野毛」の美術館のそばという優雅な立地、大規模ならではの安心感とプライベート感を両立させたマンション、そして丁寧に素材を選んで仕上げられた住戸……どのポイントにも横串の通った魅力を感じます。

LDKも個室もゆったりした造りで、あちこちにあしらわれたタイルも見たことのないものばかり。毎日ちょっとうきうきしながら暮らせそうですし、ゲストを招いてひとつひとつ自慢したくなってしまいそうですよね。

ペットとのびのび暮らせて、バルコニーからは豊かな緑が見える素敵な環境です(ときには花火も)! 2020年にリノベされた物件ですが、個人的には使用感はほとんど気にならず、気持ちよく住み始められる状態だと感じましたよ。ぜひ現地でお確かめください。

一点ご注意いただきたいのは、ふたつの洋室には壁付けタイプのエアコンの設置が難しいかも、という点です。ここを頭に入れておきつつ、暮らしのイメージを膨らませてみてくださいね。お問い合わせお待ちしております。




まだ出会えていないだけで、もっといい出会いがあるカモ?

記事の物件も素敵ですが、実はカウカモでは、未掲載物件を含む約1万件*の中から物件のご紹介が可能です。「もっと自分好みにリノベーションしたい」というご相談も、もちろん大歓迎。一歩踏み込んで、私たちと一緒に住まい探しを始めてみませんか?

▶︎リクエストしてみる

*2024年における、東京都23区、首都圏都市部における、35平米・2500万円以上の物件のご紹介可能な平均総数


writer : 小杉 美香 / editor : 及川 円