世田谷区野沢(駒沢大学駅)
光は泳ぎ、風は巡る
グランドメルシー駒沢
光と風を巧みに取り込む住まい。サンキャッチャーがきらめく昼も、陰影が深まる夜も、時間ごとに表情を変える空間が一日のリズムを心地よく刻んでくれる。まるでワンルームのように、のびやかに回遊できる2LDKです。
現在ご紹介可能な物件は、中古・リノベーション住宅のオンラインマーケット「cowcamo(カウカモ) 」よりご覧いただけます。
下北沢・三軒茶屋
現在販売中のおすすめ中古マンション
cowcamo
深緑色に誘われて

玄関扉を開けると、アールに切り取られた上り框(かまち)が。壁のターコイズグリーンは、こちらの物件のキーカラーです。

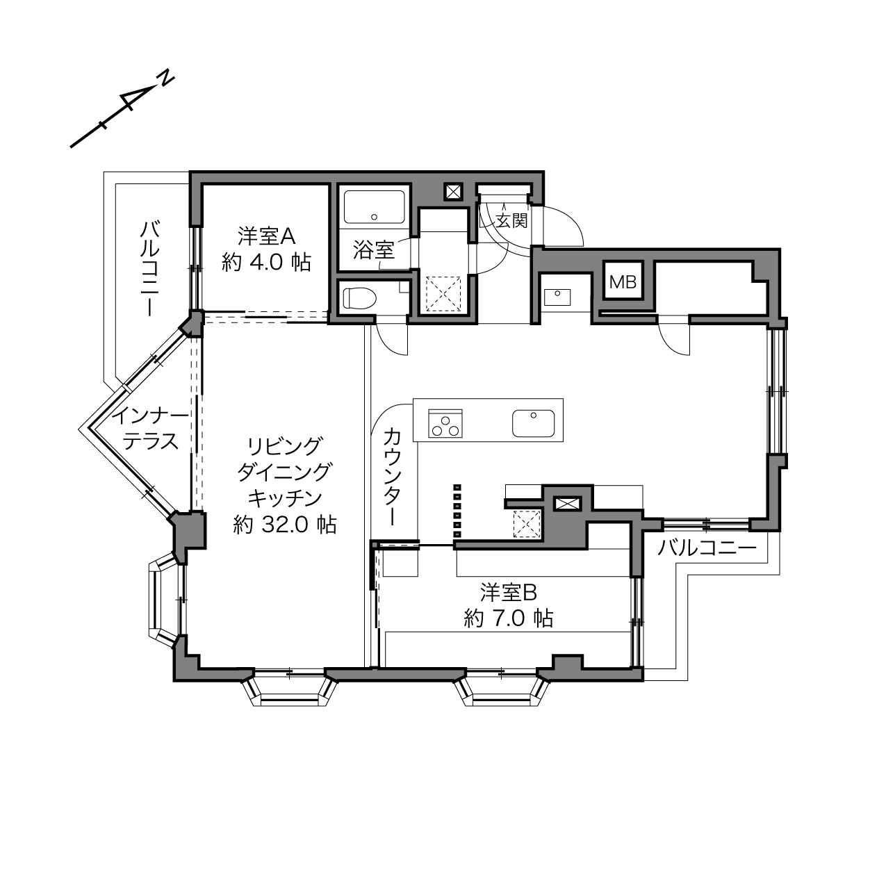
LDK全景。南西〜南東〜北東の三面採光で、約32帖もの広さがあります。カウンター付きのアイランドキッチンを中心にして、そのまわりをぐるりと囲むように居住スペースが広がる、開放的な空間です。
cowcamo
躯体現しの天井やリノリウム材を使った床など、ソリッドな印象の中に、窓枠やライティングレールなどに曲線的なデザインを取り入れた内装デザインです。窓はすべてインナーサッシ仕様で、防音性や断熱性に期待できます。

リビングダイニング(LD)は、設計を担った方によると「合流地点」のようなイメージでデザインされたそう。同じ家の中でも、パートナーとほどよい距離感で過ごせそうな空間設計です。
cowcamo
インナーバルコニーや出窓に植物を飾ると、緑のカーテンのように機能しそう。出窓部分には、植物をハンギングできるようにピクチャーレールが用意されています。

正面奥の引き戸を開けると、LDKに隣接するベッドルームが現れます。
約4帖の洋室A

左・全体にキーカラーをあしらった、落ち着きのある空間。写真では消灯していますが、枕元の上部にはライン照明が埋め込まれています。/右・南西向きのバルコニーにアクセス可能です。
室内に戻って

キッチン備え付けの大型カウンターは、さながらバーやラウンジのような雰囲気。
売主さま
友人を招き、キッチンで料理をしながらカウンターやテーブルで向かい合ってお酒やおつまみを楽しむのにぴったりなレイアウトです。
cowcamo
右手には開口がありますね。中をのぞくと……?
ワークスペースが

図面では「洋室B」にあたるスペースで、広さは約7帖。幅4m超のワイドなデスクが造作されており、ふたりで並んでもゆったりと作業ができる余裕があります。

背面には上下2段に分かれたオープンラックを設置済みで、衣類をきれいに整理整頓できます。
cowcamo
洋室Bは、LDとキッチンからアクセスできる2way動線です。
あらためて キッチンを拝見

左上・天板には、傷に強く重厚感ある「シーザーストーン」を採用。家電類は背面の造作棚に、冷蔵庫は視界に入りにくい壁裏へすっきり配置できる設計です。/左下・3口のIHクッキングヒーター付きで、ドイツ製の「Miele(ミーレ)」社の食洗機をビルトイン。/右・通路の幅にはゆとりがあり、動線がスムーズです。

北東側にはひらけたアトリエのような空間があります。LDとは別に自由度の高いスペースがあることで、気分で居場所を選ぶことができますね。

北東側からLDを見たカット。同じ空間で過ごしていても、そっとお互いの気配を感じながら、ほどよい距離感が保てそうです。
最後に水まわりへ

左・洗面台はキッチン近くの通路にオープンに配置。帰宅後にシームレスに手洗いできるため衛生的です。/右・洗面台横には納戸を設置済み。スーツケースや使用頻度の低いシーズナル系のアイテムはこちらに。

左・浴室乾燥機・追焚き機能付きのバスルーム。ミニマルなステンレス製ラックや黒のバスタブなど、気の利いたデザインです。/右・トイレの壁は、オレンジ&ピンクのツートンカラー。クールなLDKからガラリと印象が変わるのが面白い!
閑静な住宅街に佇む マンション

1988年に竣工した、オートロック・宅配ボックス付きのマンション。総戸数4戸で、ワンフロア2戸のプライベート感ある構造が魅力的です。
cowcamo
エレベーターは設置されていないため、ご紹介する住戸が所在する2階までは階段でのアクセスとなります。
暮らしの舞台は “駒沢エリア”

左上・最寄りの東急田園都市線「駒沢大学」駅から徒歩8分。/右上・駅前に開業したばかりのショッピングモール「駒沢パーククォーター」は、新たなランドマークとして注目のスポット。肉まん専門店やオーガニック中心の創作料理や自然派ワインを楽しめるワインバー、コーヒースタンドなど、複数のテナントが入っています。(徒歩8分)/左下・「Angelo’s(アンジェロ)」は、ヨーロッパや中東、インドの伝統的なレシピをベースにアレンジしたメニューをいただけるベーカリー。マンションから徒歩2分で、立ち寄りやすい距離感です。/右下・「駒沢オリンピック公園」までは徒歩10分。ジョギングやサイクリングの専用コースがあり、アクティブに過ごす機会が増えそうです。
cowcamo
環状七号線方面にスーパー「オオゼキ 野沢店」があるほかにも、「マルエツ 真中店」「サミットストア 野沢龍雲寺店」がいずれも徒歩8分です。食材のラインナップにあわせて、選択肢を使い分けられそうですね。
カウカモ編集部より
こちらの住まいは、まるで光と風の通り道。もともと一級建築士の夫婦の自邸として設計されただけあり、窓の配置を生かした動線のつくり方が独特で、ひとつの空間にいながらも “気分や時間帯によってムードが変わる感覚” を味わえそうな物件です。
LDKの広さは約32帖。ぐるりと回遊できるワンルームのような間取りで、LDKの中心に据えた大きなアイランドキッチン、ふたりで並んで使えるデスク、アトリエのように使える余白……など、暮らしのスタイルにあわせて主役の空間を選べることも、こちらの住まいの面白さです。
住戸の引き渡し時期は相談となりますので、詳しくはエージェントまでお問い合わせくださいね。
あたたかな光に包まれまどろむ昼、灯りを落として陰影のあるムードを楽しむ夜。住まいが一日のリズムを心地よく刻んでくれる感覚を、ここではきっと実感できるはず。落ち着いた “駒沢エリア” の立地も含め、この素敵な環境を住み継いでみませんか?
writer:軽部 優海/editor:及川 円
売主さまが購入されたのは、前居住者である一級建築士のご夫婦が2022年に設計を手掛けフルリノベーションした住まい。8つの窓がのびやかに広がる空間を活かし、光と風が回遊する空間が魅力です。