世田谷区駒沢(駒沢大学駅)
庭とひと息
パークハイム駒沢
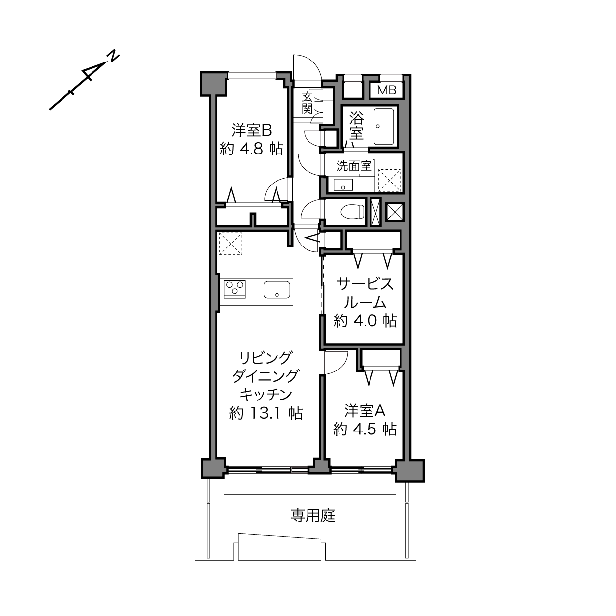
専用庭があるだけで、日々の過ごし方は穏やかになるもの。日差しを感じながら過ごすひとときや、植物を育てる楽しみが、日常を柔らかく彩ります。2SLDKというバランスのよい間取りと、トランクルームという収納のゆとりを備えたここは、家族の暮らしを確かに支えてくれる住まいです。
現在ご紹介可能な物件は、中古・リノベーション住宅のオンラインマーケット「cowcamo(カウカモ) 」よりご覧いただけます。
駒沢・二子玉川
現在販売中のおすすめ中古マンション
お邪魔します!

こちらは約13.1帖のLDK。壁面の木目が印象的です。

南東向きの窓を背にもう一枚。右手に並ぶ扉は、手前から洋室A、サービスルーム、収納のもの。また後ほどご紹介しますね。
売主さま
cowcamo
ほかにも1階ならではのうれしい特典があるんです! 窓を開けてみたらわかりますよ〜。
じゃん!

なんと約17㎡の専用庭付き! 南東向きで日が当たるので、晴れた日は椅子を出して日向ぼっこするのも気持ちよさそうですね。
cowcamo
ちょっとした花壇もあるので、ガーデニングも楽しめそう。
LDKに戻って

それでは、正面のキッチンをチェックした後に、洋室Aとサービスルームを見ていきましょう!
LDを見渡せる 対面キッチン

リビングダイニング(LD)で過ごす家族とコミュニケーションが取りやすい対面キッチン。3口コンロと食洗機、浄水器が備わっており、背面には食器棚が置けるゆとりと冷蔵庫置き場も。
専用庭につながる 洋室A

広さは約4.5帖。外に高い塀が立っていて視線が届かないため、カーテンを開けながら過ごせますね。
売主さま
窓には断熱・遮音性に優れたインナーサッシを設置しています。LDK側も同様ですよ。
約4帖のサービスルーム

窓がなく、お籠もり感のある空間。ワークスペースにすれば、作業に没頭できそうです。
廊下へ

左・廊下沿いには、洋室Bと水まわりが。/右・トイレは独立タイプ。吊り戸棚付きです。
約4.8帖の洋室B

共用部に面した北西向き。個室としては最も広いので、主寝室として使うのがおすすめです。
サニタリーは こちら

左・収納を豊富に用意した洗面化粧台。水まわり用品・リネン類をまとめてしまっておけそうな頼もしさです。/右・バスルームは1216サイズ。浴室乾燥機付きです。
お邪魔しました

玄関には、間接照明が仕込まれたトールタイプの下足入れが用意されています。その隣にも収納があり、玄関周りはすっきりと保てそう。
公園の隣に建つ マンション

最寄りの東急田園都市線「駒沢大学」駅から徒歩10分。弦巻通り沿いに建つ1977年築のマンションです。共用部は吹き抜けで光が差し込み、明るい印象。平置き駐車場は月額19,500円で利用でき、2026年2月時点で空きがあります。最新の状況はお問い合わせください。
cowcamo
各住戸には専用のトランクルームが用意されています。アウトドアグッズなどの収納場所としてご活用ください!
周辺スポットを ピックアップ

左上・こちらがマンションに隣接する「世田谷区立小泉公園」。フットサル場や子ども用の遊具も整備されています。(徒歩1分)/右上・カレー好きの方も注目する「Indian canteen AMI(インディアン キャンティーン アミ)」。本場インドの味が楽しめますよ!(徒歩2分)/左下・予約も取材も絶えない人気ピッツェリア「Pizzeria da peppe NAPOLI STA' CA"(ピッツェリア ダ ペッペ ナポリスタカ) 駒沢店」。“これぞナポリ! ” という本場の味と雰囲気が楽しめます。(徒歩10分)/右下・「駒沢オリンピック公園」までは物件から徒歩23分。定期的にフリーマーケットが開催されているので、ご家族で出店してみるのもいいカモ……!
カウカモ編集部より
間取りは2SLDKで、居室数をほどよく確保。ひとりで過ごす静かな時間も、リビングで団欒する時間も、どちらも大切にできるバランスのよいプランです。そのうえ、住戸の収納とは別にトランクルームがついてくるというのもファミリーにとっては心強いですね。
周辺スポットでは “駒沢エリア” を中心に紹介しましたが、マンションの北側にある「松陰神社通り商店街」も個性的なお店が並ぶなかなか楽しいスポットなので、街歩きの際にはぜひこちらも訪れてみてください。
writer/ editor:秋月 胤斗
この物件の建物情報
パークハイム駒沢
こちらの住戸は、1階所在のため足音を気にせずにお過ごしいただけますよ。