世田谷区代沢(池ノ上駅)
散歩への招待状
ヴァリウス代沢
淡島通りから、ほんの少し高台へ。閑静な住宅街 “代沢一丁目” に建つ2004年築のレジデンスが舞台です。100㎡弱の住まいは南北に開口があり、心地よい風が2匹の鼻先をくすぐります。緑道に公園、今日はどこへ散歩に出ようか。
現在ご紹介可能な物件は、中古・リノベーション住宅のオンラインマーケット「cowcamo(カウカモ) 」よりご覧いただけます。
下北沢・三軒茶屋
現在販売中のおすすめ中古マンション
カルチャーも自然も この手に

左上・ご紹介するマンションから「下北沢」駅までは徒歩14分。/右上・近年下北沢には線路跡地を利用した商業施設が数多く誕生。こちらは店主の顔が見える “個店街” がテーマの「reload」。(徒歩15分)/左下・四季折々の自然やせせらぎが楽しめる「北沢川緑道」。(徒歩5分)/右下・デイキャンプ場やテニスコートがある「駒場野公園」。(徒歩12分)
cowcamo
2004年築のレジデンス

淡島通りから北へ上がった住宅街の中に建つ、地上5階建て、全38戸の中規模マンションです。オートロックや宅配ボックスを完備していますよ。

上・木目調で広々した共用ロビー。管理人さんは年末年始と祝日以外、毎日8-17時まで勤務されています。/左下・1階部分には機械式駐車場があり、2025年10月時点で空きあり。区画により月額27,000-37,000円で利用できます。/右下・エレベーターに乗り住戸のある4階へ。内廊下を進むと玄関前にはアルコーブが設けられ、プライバシーに配慮されています。
cowcamo
前回の大規模修繕工事は2017年に完了。ご紹介する住戸には約0.9㎡のトランクルームが付帯し、月額800円で利用できます。
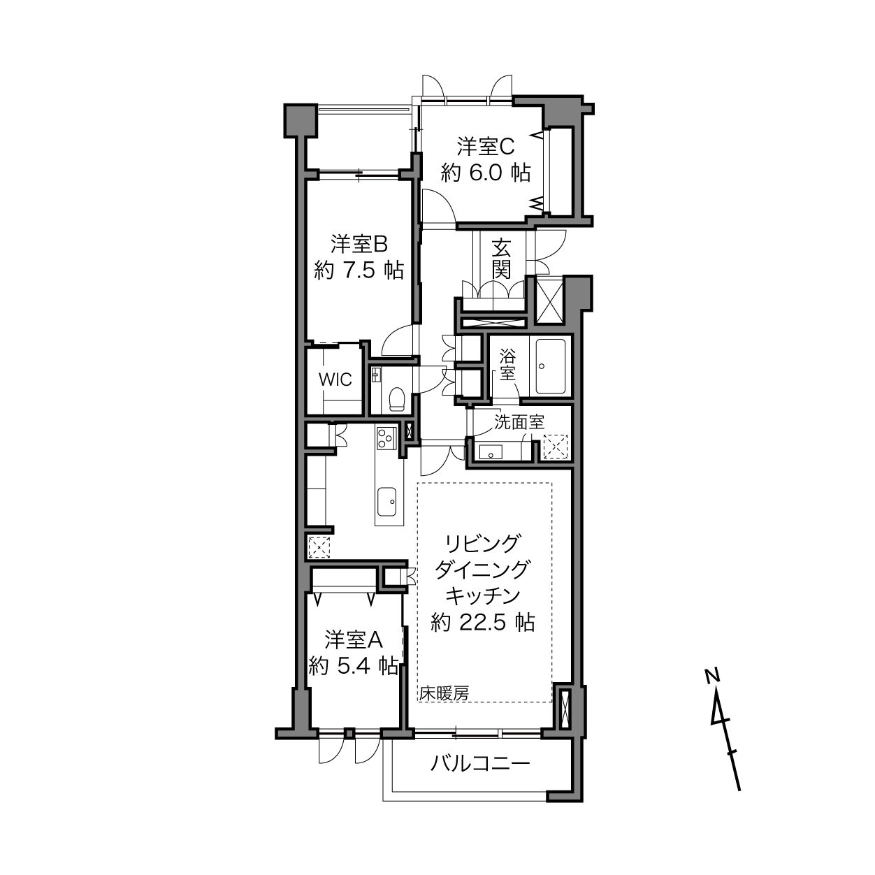
100㎡弱の住戸へ

間接照明が効いたホワイト基調の玄関。正面には石調タイルがアクセントとして用いられています。スリットガラスが入ったドアを開け、LDKへ。
cowcamo
廊下沿いには扉4枚分の収納が設けられています。
南向き 約22.5帖のLDK

日当たり良好ですが、リビングダイニング(LD)部分には床暖房も入っています。

入口横には対面式のキッチンが。淡い木目で統一され、全体的にやさしい雰囲気ですね。

長さ2,574mmもあるロングサイズ。背面には収納カウンターが設けられ、食器から調理家電、ストック類までたっぷりしまえそうです。
バルコニーへ

住戸が所在するのは4階部分ですが、坂の中腹に建っていることもあって前には戸建て住宅が。お日さまを遮るものはなく、空も望めます。

美観を保つため、お洗濯物は腰壁より下へ。

日中は日当たりのよさも相まって明るい室内ですが、夜は間接照明とダウンライトがムードを引き立ててくれそうです。
約5.4帖の洋室A

縦型の窓がふたつ並んだ可愛らしい居室。LDKと同じく南向きで日当たり良好です。
約7.5帖の洋室B

3つある洋室の中でもっとも広く、北向きの窓が付いています。

窓を開けると左手には同じマンションの別住戸、右手には戸建て住宅が。

室外機置き場が設けられていますが、腰高窓なので外に出ることは無さそうです。

洋室Bにはウォークインクローゼット(WIC)を完備。
約6帖の洋室C

洋室Bと同じく北向きですが、コーナーサッシで明るい室内。
ゆったりとした水まわり

左・大型の洗面化粧台。奥に洗濯機置き場があります。/中央・1620サイズのユニットバス。/右・手洗いカウンター付きのトイレ。
小さな楽しみが そこ・ここに

左上・最寄りは井の頭線の各駅停車駅「池ノ上」。アットホームな空気が流れています。(徒歩9分)/右上・クレープとガレットの専門店「BLUE RIBBON TOKYO」。見た目にも美しい一皿をぜひご堪能ください。(徒歩3分)/左下・北沢川緑道沿いにあるフレンチレストラン「vin sante(ヴァンサンテ)」。(徒歩9分)/右下・東京大学駒場キャンパスの中にあるフレンチレストラン「Lever son Verre(レヴェ・ソン・ヴェール)駒場」。敷地内はどなたでもお散歩可能です。(徒歩17分)
カウカモ編集部より
マンションの周辺は公園が点在し、緑道もあり、子育てにもペット連れにもやさしい環境。特に2025年11月現在学区指定されている「区立富士中学校」へは徒歩4分の距離。また「駒場東大前」周辺は有名校が多いエリアでもあります。
淡島通りや三宿通り、国道246号線もすぐの立地ですので、車移動がメインの方にもオススメです。
まだ出会えていないだけで、もっといい出会いがあるカモ?
記事の物件も素敵ですが、実はカウカモでは、未掲載物件を含む約1万件*の中から物件のご紹介が可能です。「もっと自分好みにリノベーションしたい」というご相談も、もちろん大歓迎。一歩踏み込んで、私たちと一緒に住まい探しを始めてみませんか?
*2024年における、東京都23区、首都圏都市部における、35平米・2500万円以上の物件のご紹介可能な平均総数
writer:伊勢谷 亜耶子/editor:小田切 咲樹
この物件の建物情報
ヴァリウス代沢
今回ご紹介するマンションでは、成長時の体長50cm以内、体高30cm以内、体重10kg以内の犬・猫を2匹まで飼育可能です(細則あり)。お子さまやワンちゃんとのお散歩コースに事欠かない環境ですよ。