横浜市港北区日吉本町(日吉駅)
風に身を委ねて
サンリーノ日吉コート
窓を開ければ、風が吹き抜ける三方角住戸。自然のやさしさも含んだ、のどかな街の空気を室内だけで味わうのはもったいない。ルーフバルコニーでたっぷりと浴びようじゃないか。おおらかな風に身を委ねて。
現在ご紹介可能な物件は、中古・リノベーション住宅のオンラインマーケット「cowcamo(カウカモ) 」よりご覧いただけます。
東横線神奈川
現在販売中のおすすめ中古マンション
売主さまのご紹介

Hさまファミリー
2023年に一棟リノベーションが行われ、住戸も共用部もアップデートされていたことや大きなルーフバルコニーに魅力を感じ、物件を購入。子育てをする中で、自然の多い環境での生活に惹かれ、この度は住み替えをご検討されることに。
地中海の街から 着想を得た1棟リノベ

1987年竣工ですが、2023年9月に一棟リノベーションを実施。傾斜地に建つ総戸数26戸のマンションです。

改修のイメージは、地中海の街「コスタ・デル・ソル」。立派な門構えや石畳など、さわやかな雰囲気を纏った外観です。オートロック、宅配ボックスはもちろん完備。
cowcamo

ちなみに、サブエントランスを使うと「日吉」駅から比較的フラットなアプローチでアクセスできますよ。こちらから入る場合は、共用部の長い階段を下りて住戸へ向かいます。
それでは住戸へ お邪魔します!

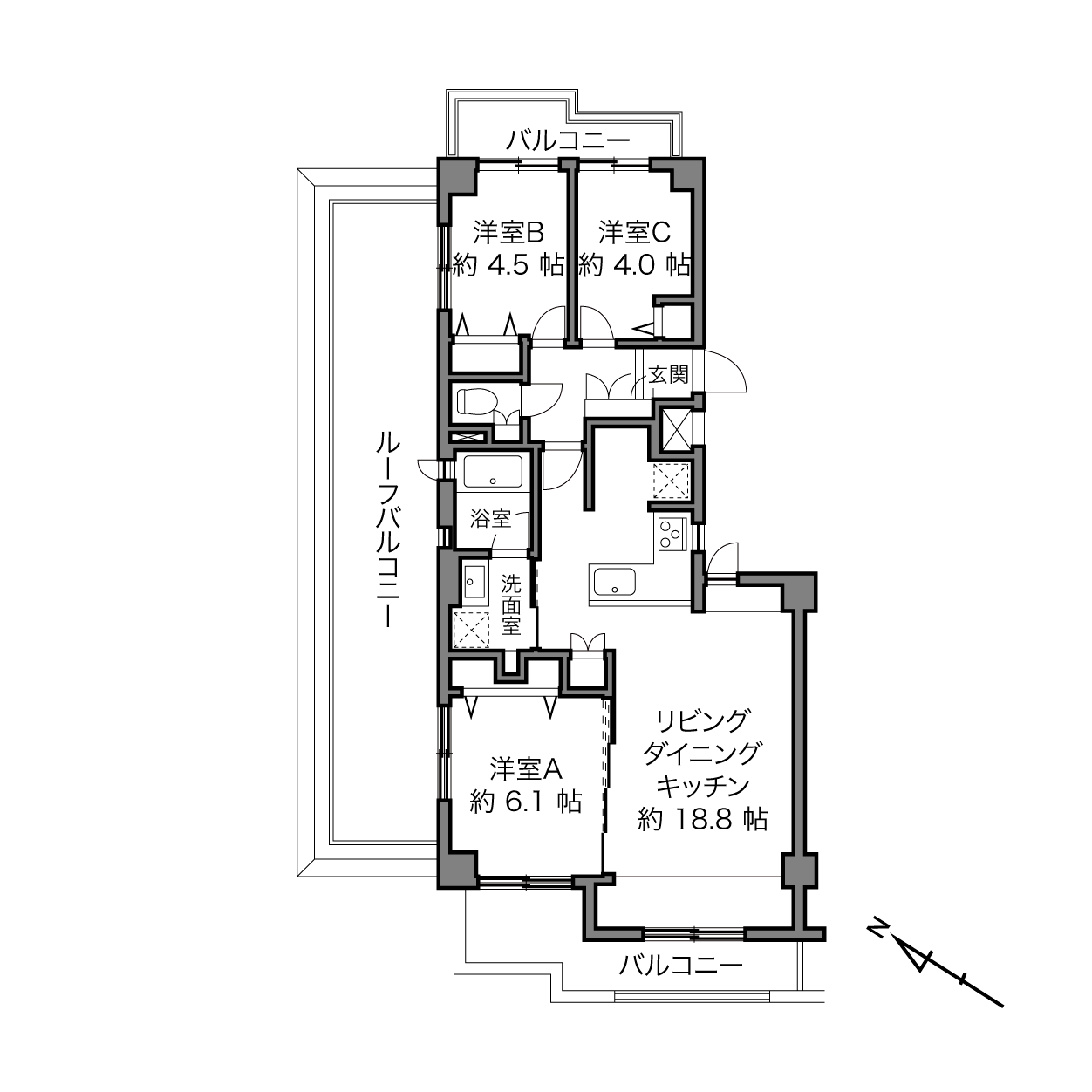
まずは約18.8帖のLDKからご紹介。南西向きの窓からは、グリーンがさわやかに覗いています。

ベージュのアクセントクロスと木目調の天井で、やさしい雰囲気の内装。リビングダイニング(LD)の一角には、ワークスペースにも使えそうなカウンターが用意されています。
売主さま
最上階住戸のため、天井が高く、空間が広々と感じられます。また、北東と南西に窓があるので、開けると風通しもいいです。

隣接する洋室Aの扉を開けると、より開放的に。扉の開閉は、暮らしのシーンに合わせるとよさそうですね。
窓際の インナーバルコニー

リビングの窓際はフロアタイルが敷かれ、インナーバルコニー風に。上部に物干し竿を掛けられるので、雨の日の室内干しでも大活躍!
売主さま
タイルだと汚れを落としやすいので、観葉植物も気軽に置けます。窓は二重サッシで断熱性が高いので、冬も過ごしやすかったです。
バルコニーへ

バルコニーはワイドスパン。洋室A側に物干し金具が備わっています。

眺望に抜け感はありませんが、お向かいの植栽が鮮やかです。下階のお庭分の距離が取れているので、圧迫感もありません。
室内へ戻って

続いて、正面奥にあるキッチンと左手にある洋室Aを順に見ていきましょう。
効率的に クッキング

キッチンは動線がコンパクトなL字型で、作業効率◎ 奥に食器棚とや冷蔵庫の置き場がありますよ。
cowcamo
タイル敷きなので、調理中に床が汚れてもサッと掃除できそうですね。
約6.1帖の洋室A

南西と北西の二面採光で明るい居室。北西側の窓はルーフバルコニーにつながっています。出てみましょう!
じゃん

おお、開けた眺望! のどかな景色が広がっていて、なんだか和みますね。約23㎡で幅に余裕のある広さです。
売主さま
この大きなルーフバルコニーも、購入の決め手でした。ぜひ眺めとともにこの開放感を満喫してもらいたいです。

反対側からもパシャリ。洋室Bからもアクセス可能です。
約4.5帖の洋室B

こちらは北東と北西の二面採光。なんと北東側にもバルコニーがあります。採光面が多いので、どの居室にいても明るく過ごせますね。
約4帖の洋室C

長方形のシンプルな居室。コンパクトなクローゼットが備わっています。
水まわりは こちら

左・置き型のボウルを使用したミニマルな洗面化粧台。/中央・浴室乾燥機と窓付きのバスルーム。自然光が入るだけで、開放感が増しますね。サイズは1418です。/右・トイレは、廊下からアクセス。グレーのクロスで落ち着いた雰囲気です。
お邪魔しました

廊下がカクッと曲がっており、玄関からはLDKが覗けないため、プライベート性が高めです。
暮らしやすさと 活気と

左上・マンションが建つ「日吉」駅の西口側は放射状に商店街が伸びていて活気に満ちています。(徒歩8分)/右上・千葉県の健康美容豚『林SPFポーク』を使用したメニューが自慢の「とんかつ 和栗」。定番のかつ定食をはじめ、カツカレーや豚汁も人気。テイクアウトも可能です。(徒歩7分)/左下・門を抜けると、緑豊かな庭が広がる隠れ家カフェ「カフェ 然」。売主さまの行きつけスポットで、チーズケーキとコーヒーが美味しいのだそう。(徒歩7分)/右下・カレー店「ハイ,ハウ アー ユー」では、スパイスをふんだんに使ったカレーが絶品。 “パキスタン家庭風チキンカレー” は一度食べておきたい逸品です。(徒歩7分)
売主さま
駅にはショッピングモールが併設しているので、食品や家電、洋服などの買い物ができて、とても便利でした。綱島方面にも大型商業施設があるので、買い物の選択肢は豊富です。
自然も豊かです

上・小高い丘にある自然豊かな「日吉の丘公園」。晴れの日は、敷地内にある富士見台から富士山も見られるのだとか。(徒歩3分)/下・「日吉」駅の東側に堂々と鎮座するのは名門校「慶應義塾大学 日吉キャンパス」。キャンパス内に続くイチョウ並木の紅葉はとっても綺麗ですよ。(徒歩9分)
カウカモ編集部より
地中海の街を思わせる1棟リノベーションマンション。左官仕上げの白壁や石畳のアプローチが、さわやかな風を運ぶような外観です。パキッと晴れた青空の下では、きっとその白が一層輝くはず。取材日はあいにく曇り空でしたが、内見の際はぜひ晴れの日を狙ってみてください。
住戸は三方角住戸で、どこで過ごしていても光が届く明るい空間。大きなルーフバルコニーに出れば、さらに開放感が広がります。のどかな空気に包まれながら景色を眺めていると、自然と肩の力が抜けてリラックスできそう。
自然を感じられる閑静な住宅地でありながら、駅前の利便性も十分。この心地よいバランスが、暮らしにゆとりと豊かさをもたらしてくれそうです。
writer/ editor:秋月 胤斗
こちらのマンションにはエレベータがないため、住戸へは階段を使わなければならない点はご承知おきください。