fav-boldsearch-boldmenu-boldaccountregisteraccount-bold

カートに入れる

宅配ボックスを備えたマンション限定。ネットショッピングは生活の一部! という方へ贈るミックス。

「ボタンがあると、押さずにはいられない」

そんな重症患者のアナタから、単に不在がちな貴方まで。(程度はさておき)ネットショッピングが生活の一部であれば、宅配ボックスは欠かせない設備ですよね。

さあ気の済むまで、カートに入れて。
いいんですよ、さあ。

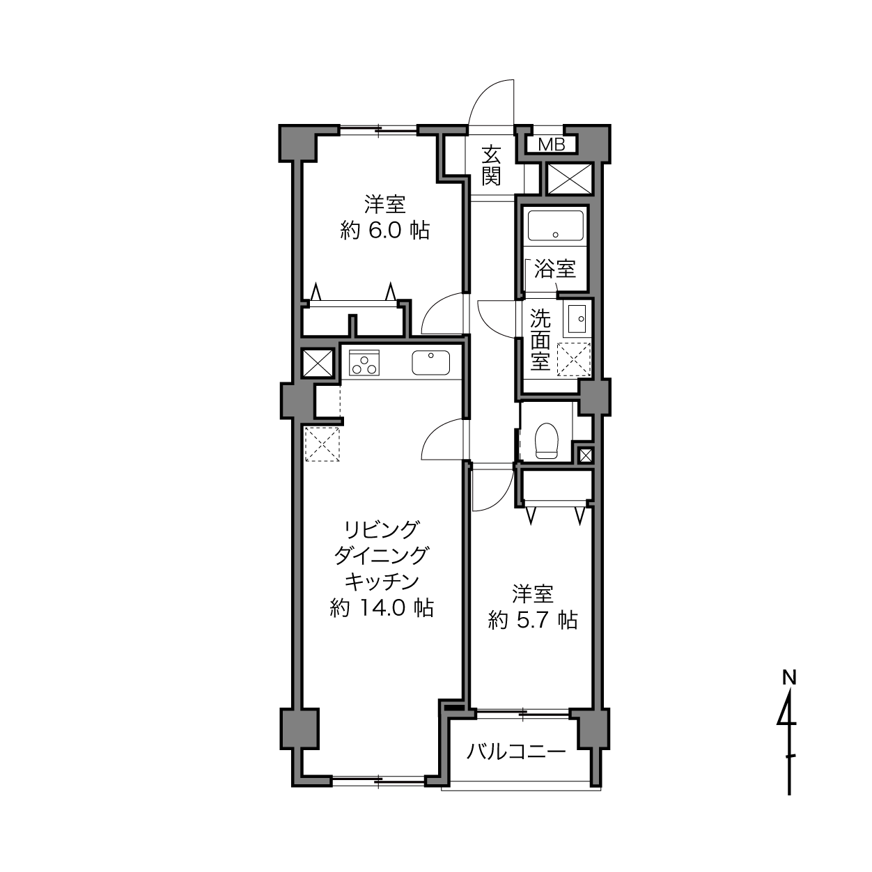
    新着
    67.20㎡ 3LDK
    4,280万円
    布田駅徒歩7分 調布市国領町 不可
    はかどるルーバルライフ
      新着
      121.45㎡ 4LDK
      18,300万円
      護国寺駅徒歩3分 文京区音羽 不可
      “質” にこだわりを
        112.39㎡ 3SLDK
        16,990万円
        成城学園前駅徒歩19分 世田谷区成城
        GREEN GLOW
          78.56㎡ 1SLDK
          4,280万円
          八王子駅徒歩7分 八王子市元横山町 不可
          素材のレシピ
            OPEN ROOM カウカモプロデュース
            70.98㎡ 2LDK
            18,900万円
            根津駅徒歩4分 台東区池之端
            空と緑と愛犬と
              67.78㎡ 2LDK+サービスルーム
              9,399万円
              押上駅徒歩7分 墨田区横川 不可
              空から始まる物語
                60.49㎡ 2SLDK
                11,000万円
                恵比寿駅徒歩7分 目黒区中目黒
                私だけの見晴らし台
                  72.61㎡ 3LDK
                  7,390万円
                  上井草駅徒歩13分 杉並区上井草 不可
                  陽だまりと家族の笑顔
                    103.45㎡ 3LDK
                    32,880万円
                    中目黒駅徒歩8分 目黒区上目黒
                    特等席をLで囲って
                      価格変更
                      73.28㎡ 3LDK
                      5,298万円
                      西大島駅徒歩12分 江東区北砂
                      はじめの一歩
                        65.57㎡ 2LDK
                        14,490万円
                        参宮橋駅徒歩9分 渋谷区代々木
                        緑の気配を忍ばせて
                          OPEN ROOM カウカモプロデュース
                          62.20㎡ 3LDK
                          9,290万円
                          錦糸町駅徒歩7分 江東区亀戸
                          あそびの交差
                            66.00㎡ 3LDK
                            4,680万円
                            大島駅徒歩13分 江東区東砂
                            イチからジュウまで
                              132.07㎡ 3LDK+ルーフバルコニー
                              13,900万円 (改装前価格)
                              十条駅徒歩12分 板橋区加賀
                              未改装販売 in 十条
                                OPEN ROOM カウカモプロデュース
                                67.46㎡ 3LDK
                                5,790万円
                                大船駅徒歩9分 鎌倉市岩瀬 不可
                                空と同化する
                                  価格変更
                                  70.10㎡ 2LDK
                                  19,800万円
                                  麻布十番駅徒歩9分 港区南麻布
                                  人を呼ぶ家
                                    OPEN ROOM カウカモプロデュース
                                    82.26㎡ 3LDK
                                    12,490万円
                                    池尻大橋駅徒歩6分 世田谷区池尻
                                    オンもオフも池尻で
                                      価格変更
                                      80.60㎡ 1SLDK
                                      16,480万円
                                      駒場東大前駅徒歩10分 世田谷区池尻
                                      レトリバーと、陽だまりと
                                        48.07㎡ 2DK
                                        5,129万円
                                        方南町駅徒歩9分 杉並区方南
                                        朝日よし空よし、愛犬よし
                                          84.02㎡ 3LDK
                                          8,999万円
                                          学芸大学駅徒歩13分 世田谷区野沢 不可
                                          空と光を羽織って

                                          1 / 6

                                          無料会員登録してMIXのフォロー機能を利用しましょう

                                          このブラウザではGoogleログインが使えない可能性があります。お手数ですが別のログイン方法をお試しください。

                                          利用規約プライバシーポリシーに同意の上、
                                          会員登録を行ってください。

                                          または
                                          無料会員登録して物件保存機能を利用しましょう

                                          このブラウザではGoogleログインが使えない可能性があります。お手数ですが別のログイン方法をお試しください。

                                          利用規約プライバシーポリシーに同意の上、
                                          会員登録を行ってください。

                                          または
                                          無料会員登録してマイページを利用しましょう

                                          このブラウザではGoogleログインが使えない可能性があります。お手数ですが別のログイン方法をお試しください。

                                          利用規約プライバシーポリシーに同意の上、
                                          会員登録を行ってください。

                                          または
                                          無料会員登録してメールマガジンを受け取りましょう

                                          このブラウザではGoogleログインが使えない可能性があります。お手数ですが別のログイン方法をお試しください。

                                          利用規約プライバシーポリシーに同意の上、
                                          会員登録を行ってください。

                                          または
                                          無料会員登録して最近見た物件ページを利用しましょう

                                          このブラウザではGoogleログインが使えない可能性があります。お手数ですが別のログイン方法をお試しください。

                                          利用規約プライバシーポリシーに同意の上、
                                          会員登録を行ってください。

                                          または

                                          notification