世田谷区池尻(池尻大橋駅)
せいかつをあそぶ
マンションニュー池尻
街の緑道や小川の心地よさ、行きつけのパン屋さんを見つける楽しみ。休日は自転車で街を巡ったり、リビングを広々使えるようにレイアウトして友人を招いたり。生活そのものを遊ぶように、暮らしの幅を心地よく広げていける場所です。
現在ご紹介可能な物件は、中古・リノベーション住宅のオンラインマーケット「cowcamo(カウカモ) 」よりご覧いただけます。
下北沢・三軒茶屋
現在販売中のおすすめ中古マンション
売主さまのご紹介

Sさま
2020年にスケルトンからフルリノベーションを実施。環境のよさもあって愛着を持って暮らされていましたが、海外赴任を機にご売却されることになりました。
暮らすほどに惹かれる街

左上・首都高速道路の大橋ジャンクション上にある「目黒天空庭園」までは徒歩10分。すぐ横には「目黒区立大橋図書館」が。/右上・「池尻大橋駅前商店街」にある小さなコーヒースタンド「Bubbles Chill COFFEE(バブルズチルコーヒー)」。(徒歩10分)/左下・同じく商店街にあるベーカリー「TOLO PAN TOKYO(トロパントウキョウ)」。(徒歩8分)/右下・「池尻大橋」駅のすぐ近くからはじまり、小川と平行して続く遊歩道の「目黒川緑道」。(徒歩1分)
cowcamo
ゆとりある共用部が魅力の 大規模マンション

1976年竣工、総戸数167戸。2006年に耐震補強工事、2007年に大規模修繕工事を実施済みで、以降もこまめにメンテナンスされています。

左上・エントランスから少し階段を下りたところに共用ロビーがあります。スロープが付いているのでご安心を。/右上・左手に管理人室、右手にはメールボックスが。/左下・エントランスホールの床は、クラシカルな雰囲気のあるヘリンボーン貼り。エレベーターは2基ありますよ。/右下・手入れの行き届いた植栽が彩る、開放的な中庭。いくつかベンチが用意されていて、とってもいい雰囲気!
cowcamo
管理人さんは、平日9:00〜17:00と土曜日9:00〜15:00に勤務されています。
また、細則はありますがペット飼育が可能です!
お邪魔します

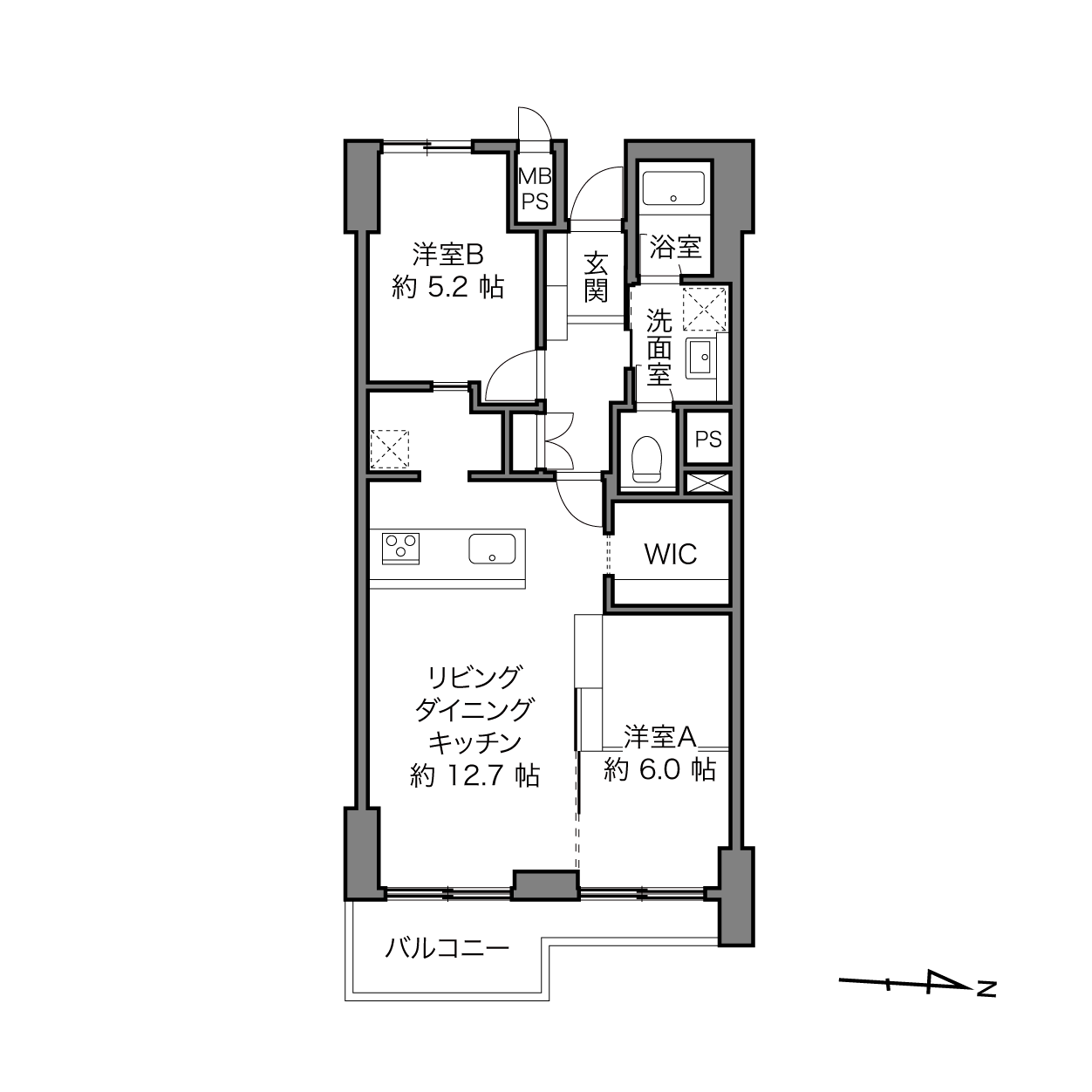
約12.7帖のLDK。ほぼ東向きなので、朝の光が心地よく差し込みそう。
売主さま
LDKに隣接する洋室の扉を開けると、広々とした開放感ある空間になります。シーンに合わせた過ごし方ができますよ。
cowcamo
友人を招いた時やお子さまが遊ぶ時には、扉を開けておくと開放感があってよさそうですね。また、洋室には扉を開けても生活感が出にくい工夫がされているので、洋室紹介の際にあわせてご覧ください。

白を基調とした内装で、インテリアのテイストを選ばずレイアウトを楽しめそうです。キッチンの面材やテレビボードを兼ねた壁面収納のブラウンが、空間に落ち着きを与えてくれます。
売主さま
床にはほどよい弾力があって、素足でも気持ちよく歩けるフレキシブルボードを採用しています。モルタル調のクールな質感が、空間をキュッと引き締めてくれますよ。
キッチンを拝見

冷蔵庫置き場やカップボードは、キッチン奥のパントリーにスッキリと配置。室内窓は洋室Bと繋がっています。

3口ガスコンロと食洗機付きのキッチン。売主さまのようにシンク上にペンダントライトを取り付ければ、空間を彩ることもできますね。
cowcamo
キッチン横のカーテンの先は、ウォークインクローゼット(WIC)です。棚とパイプハンガーが備わっていてたっぷり収納可能です!
バルコニーへ

正面に建物がありますが、道路分の距離は取れているので圧迫感はそこまで感じません。
売主さま
右手に見えるのは桜の木です。春になればLDKからも桜を楽しむことができますよ。

LDKに隣接する洋室との境あたりでクランクした形のバルコニー。洋室Aからも出入り可能です。
室内に戻って

洋室Aの床はLDKと同じくフレキシブルボードを採用し、扉を開けていても統一感ある空間に。そして、リビングダイニング(LD)から見ても、ベッドや収納が目に入らないのです。

ベッドスペースは開口部よりも奥に配置されているので、LDから見ても生活感が出にくくなっています。
約6帖の洋室A

ウッドテイストで落ち着きある洋室A。収納は小上がりを利用してベッド下に設けられています。

パイプのカーテンレールが設置されています。カーテンを付ければ、扉を開けていても生活感をさらに抑えられるほか、光を遮ることができるので、お子さまの寝かしつけにもよさそうです。
約5.2帖の洋室B

室内窓からはリビングの光が届きます。反対側には共用廊下に面した窓もありますよ。
cowcamo
収納は備わっていないので、リビングにあるWICを使用するか、収納家具を足すイメージでいると良さそうです。
水まわりへ

洗面室から、トイレとバスルームへアクセスします。黄色の扉の先はトイレです。

洗面台はコンパクトタイプ。小物はミラー付きキャビネットの中に収納可能です。1116サイズのバスルームは浴室乾燥機付き。
お邪魔しました

左・玄関扉は新しいものに交換されたばかり◎/右・シューズボックスは2つ設置されています。
楽しみが尽きない

左上・売主さまもよく通われている「世田谷公園」。中心部にある噴水のまわりには、走り回って遊ぶ子どもや、ベンチで静かに本を読む人の姿も。(徒歩10分)/右上・銭湯「文化浴泉」はサウナもあるので、リフレッシュにぜひ。(徒歩10分)/左下・ヨーロッパの劇場のような洋風な建物は、アンティークファニチャーを扱う「ザ・グローブ アンティークス」。(徒歩9分)/右下・老舗中華料理屋さん「鶏舎(チイシャ)」。様々なメディアに取り上げられ昼間は長蛇の列ができています。夏季限定の「冷やし葱そば」が名物です。(徒歩15分)
売主さま
環境はとても暮らしやすく、大満足です。スーパーもいくつか選べますし、飲食店も豊富で困りません。渋谷・中目黒・三軒茶屋・下北沢にも近く、自転車があると街巡りがもっと気軽に楽しめますよ。
cowcamo
現在(2025年10月時点)は、駐輪場・駐車場に空きがない状態ですが、状況は随時変わりますので、気になる方はエージェントまでご相談くださいね。
カウカモ編集部より
マンションの共用部は広々としており、特に中庭の開放感がたまりません。都心に近い立地ながら、ゆったりとした造りで緑を感じられます。
住戸には日々のせいかつを快適にする工夫が散りばめられており、暮らしていくほどに心地よさが増していきそうです。ぜひ現地で、周辺環境と住戸の工夫を体感してみてくださいね。
writer/editor:及川 円
田園都市線「池尻大橋」駅からマンションまでは徒歩6分。「渋谷」と「三軒茶屋」のあいだに位置する、楽しい街が縦横無尽に広がるエリアです!