世田谷区深沢(自由が丘駅)
空の仕事場
パシフィックニュー自由が丘
憧れの街での暮らしを叶え、1階がスーパーという利便性をも味方につける。そんな欲張りな自由が丘ライフが、ここで始まります。空へと視線が抜ける特等席で仕事をし、夜は自慢のカウンターで乾杯。家族の成長や愛犬との過ごし方に合わせて、ライフスタイルを自在に描ける物件をご紹介します。
現在ご紹介可能な物件は、中古・リノベーション住宅のオンラインマーケット「cowcamo(カウカモ) 」よりご覧いただけます。
東横線・目黒線
現在販売中のおすすめ中古マンション
舞台は「自由が丘」

駅周辺には感度の高いショップや飲食店が並び、少し歩けば緑豊かな並木道も。都会的な利便性と賑やかな住環境が調和する人気のエリアです。
マンション到着!

「自由が丘」駅から徒歩17分の場所に位置する、重厚感のあるレンガタイル貼りのマンション。こちらの5階が今回の目的地です。どっしりとした佇まいに思わずうっとり……♡ 1階にはスーパー「西友 深沢目黒通り店」があるので、買い物もラクラク。
cowcamo
売主さま
こちらのマンションは、長さ70cmで縦・横・高さの合計が90cmのケージに入る大きさの小型犬・猫が、1住戸につき2匹まで飼育可能です。

左上・オートロック付きのエントランス。宅配ボックスも完備されています。/右上・マンションの内装もタイル貼りなのが印象的。入口正面には管理人室とエレベーターがあります。/左下・入口左手にはメールボックスと掲示板。/右下・2015年に玄関ドアサッシが交換されています。
お邪魔します!

玄関に入って左手にはシューズクロークが。飾り棚を設けつつ、天井いっぱいまで高さを活かした収納になっているのがうれしい。
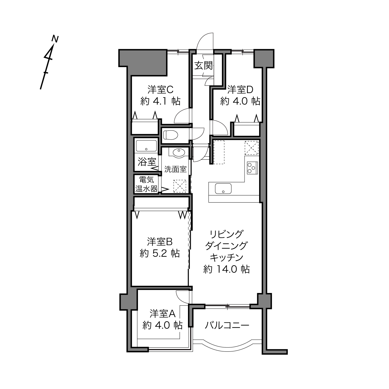
白を基調とした 約14帖のLDK

LDKをご紹介。フローリング、壁紙ともに白を基調とした内装です。住戸は南向きなので、日当たりは良好。

反対側はこちら。型ガラス入り引き戸の先は洋室Bになっており……

開け放つとこんなに広々! ライフスタイルに合わせて自由自在、可変性のある間取りです。
cowcamo
引き戸を開けると、合計約19.2帖の空間が広がります。
即席自宅バー 開店

キッチンの腰壁にはワイドカウンターが備わっています。ハイスツールに座ってグラスを片手に持てば、気分はまるでバー。飲み直しはここで決まりですね。

左・L字型のキッチンは、食洗機付きで収納が豊富です。/右・コンロ横には冷蔵庫置き場があり、その正面にはカップボードが置けるスペースも設けられています。家電を置く高さに合わせて、コンセントがふたつ設置されているのもありがたい。

こちらはキッチンからの眺め。対面キッチンは家族とのコミュニケーションが取りやすいところも魅力的ですね。そしてバルコニーの先まで視界が抜けていて気持ちいい!
目黒通り沿いの バルコニー

眺めはこんな感じ。大通り沿いということもあり、屋外は賑やかな印象です。

奥行きのあるバルコニー。手すりは、緩やかな曲線デザインで可愛らしい! なにやらコーナーサッシの先に空間が見えますね。
これは仕事がはかどる

可動棚とL字のデスクが備わっている、約4帖の洋室A。なんという明るさ! コーナーサッシから青い空が広がります。まるで上空で仕事をしている気分になれそう♡
LDKのお隣 洋室B

約5.2帖の洋室B。型ガラス入りの建具なので、LDKからの採光も感じられます。壁一面には、クローゼットがずらり。
もう2部屋ご紹介

約4.1帖の洋室Cは、窓に面してシングルサイズのベッドがすっぽり収まります。クローゼットを完備。

約4帖の洋室Dも窓に面してシングルサイズのベッドが収まります。
最後に 水まわりをご紹介

左・ベージュを基調とした三面鏡付きの洗面化粧台。/中央・木目のパネルが印象的なユニットバスは、1116サイズ。浴室乾燥機付きです。/右・トイレは、白を基調としたシンプルな空間に仕上がっています。
ファミリーも 愛犬家も充実

左上・徒歩14分に位置する「駒沢オリンピック公園」。陸上競技場や体育館だけでなく、広場やジャブジャブ池、ドッグランなどもあり、お子さまやワンちゃんも楽しめる施設です。/右上・お散歩コースには、桜並木が立派な「呑川緑道」もおすすめ。夏場は緑のアーチとなり、涼しい木陰をつくってくれます。(徒歩4分)/左下・お散歩を楽しんだあとのお昼ご飯は、「Solfege(ソルフェージュ)」なんていかがでしょう。テラス席はワンちゃんも一緒に過ごすことができます。(徒歩4分)/右下・「TODAY'S SPECIAL(トゥデイズ スペシャル)」は、スパイスなどの食材や、カジュアルでおしゃれな食器などが揃うライフスタイルショップ。家族連れでもゆったりと過ごせる3階のカフェも人気です。(徒歩13分)
カウカモ編集部より
特に、空に浮かんでいるような感覚でデスクに向かえる洋室Aは、この物件ならではの贅沢なポイント。家族の成長に合わせて暮らし方を変えられる柔軟性もあり、長く住みつないでいくイメージが湧きます。利便性も、遊び心も、自分らしい過ごし方も。そのすべてを妥協したくない欲張りな方にこそ、このレンガタイルの城を住みこなしていただきたいです。
まだ出会えていないだけで、もっといい出会いがあるカモ?
記事の物件も素敵ですが、実はカウカモでは、未掲載物件を含む約1万件*の中から物件のご紹介が可能です。「もっと自分好みにリノベーションしたい」というご相談も、もちろん大歓迎。一歩踏み込んで、私たちと一緒に住まい探しを始めてみませんか?
*2025年における、東京都23区、首都圏都市部における、35平米・2500万円以上の物件のご紹介可能な平均総数
writer:耒住野 希夏/editor:秋月 胤斗
この物件の建物情報
パシフィックニュー自由が丘
「尾山台」駅、「九品仏」駅へも徒歩15分でアクセス可能です。また、「自由が丘」駅、「目黒」駅、「東京」駅行きなどのバスが運行している、「等々力七丁目」バス停が徒歩3分の場所にあるので、都心へのアクセスも心配なし。