世田谷区用賀(用賀駅)
自分との答え合わせ
アーバンハウス用賀
好きなインテリアで彩れるまっさらなキャンバス、リモートワークが快適にできる空間、ちいさな楽しみを発掘できる環境、都心へのスムーズなアクセス。自分に必要なものを拾い集めていったら、この住まいに辿り着きました。
現在ご紹介可能な物件は、中古・リノベーション住宅のオンラインマーケット「cowcamo(カウカモ) 」よりご覧いただけます。
駒沢・二子玉川
現在販売中のおすすめ中古マンション
日常に散りばめられた 小さな幸せ

左上・「JRA馬事公苑」まで徒歩11分。何も考えず、ただ馬が走る景色に身を預けたくなります。/右上・人気のパティスリー「Ryoura(リョウラ)」まで徒歩2分。頑張った日のご褒美に、ぜひ。/左下・ベーカリー「MAISON KUROSU」にも徒歩2分。焼き立てを自宅で食べられるのはこの近さだからこそ!/右下・休日や仕事終わりにふらりと立ち寄りたい「栄湯」。こちらも徒歩2分です。
cowcamo
さあ皆さまも 自問自答を開始してください

白と木が基調の空間へ到着。ガラス入りのドアが玄関まで自然光を届けます。LDK出入り口の横には可動棚がありますよ。

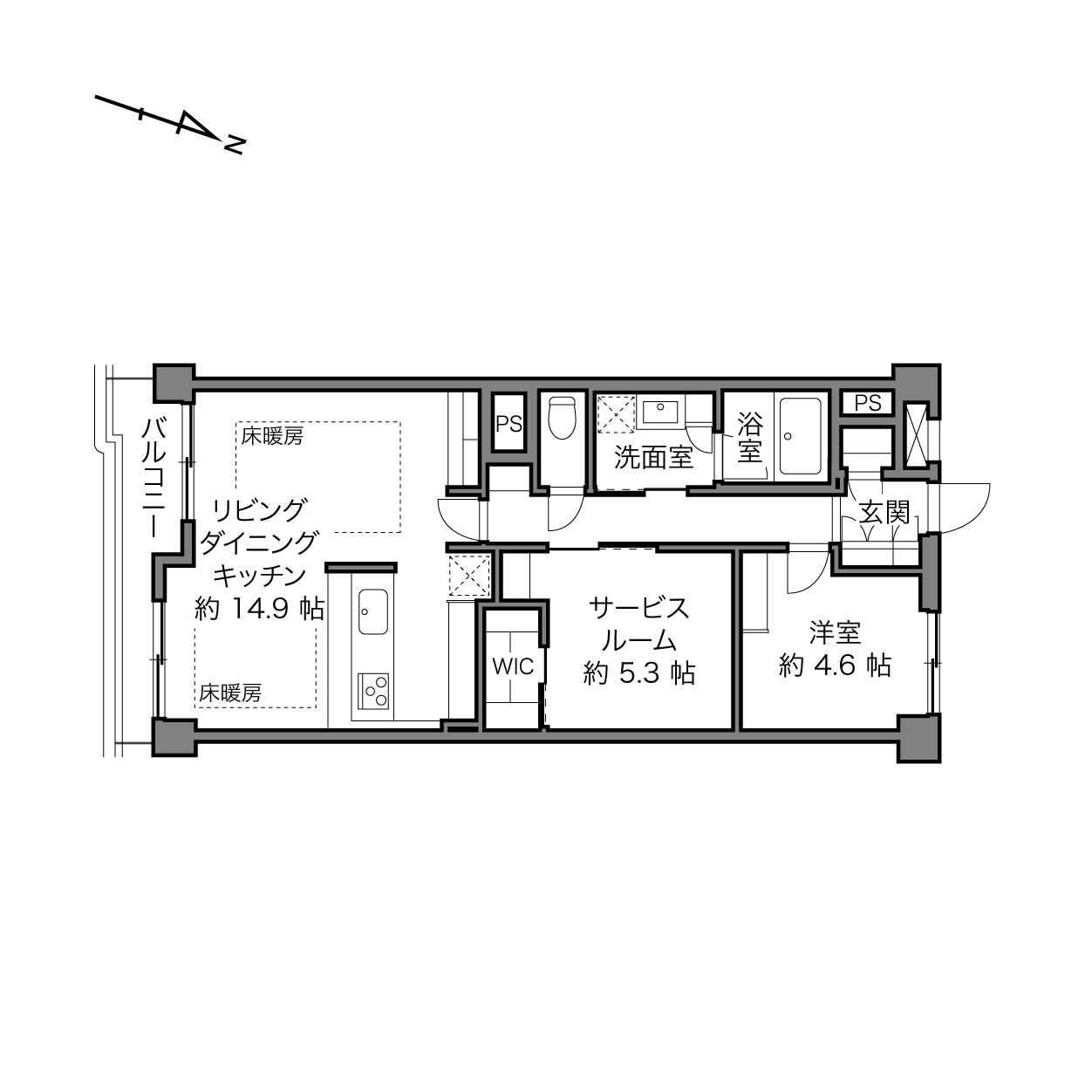
南東向きのサッシが並ぶ約14.9帖のLDK。床にはオーク材の突板フローリングが張られています。

参考ディスプレイのように家具を配置すると上手くゾーニングできそう。リビングダイニング(LD)には床暖房が備わっています。
cowcamo
いい塩梅のプレーンな内装が、好きなインテリアを引き立ててくれそう。
収納豊富なキッチン

上下ともにたっぷりと収納が設けられたキッチン。カウンターのタイルは壁面までL字に配され、調味料などを置くのにぴったり。

キッチンは、3口ガスコンロ・浄水器付き水栓・食洗機を完備。おこもり感がありつつ、LDの様子が視界に入ります。
cowcamo
作業場はまな板一枚分の横幅ですが、カウンターに食材を並べればクリア。全体的にささっと拭き掃除できそうです。

キッチンカウンターの下には空間があるため、ハイスツールを置いてバーのように使ってもいいですし、薄型の棚を買ってきて本や雑貨を並べても素敵そう。
ワークスペース

LDの一角には造作のカウンターデスク。広い空間でリモートワークができるのはいいですね!
cowcamo
左下部分は引き出しワゴンを置くのにぴったり。作業に行き詰まったらすぐキッチンに行ける動線もgoodです。
バルコニーへ

正面に別のマンションが建っていますが窓は小さめ。視線が気になる場合は薄手のカーテンやブラインドを取り付けるとよいでしょう。
約5.3帖のサービスルーム

住戸の中央に位置する窓のない個室ですが、収納が充実しています。入り口横には可動棚付きのニッチを設けます。

左・さらにコの字に枕棚とハンガーパイプが付いたウォークインクローゼット(WIC)が備わっています。/右・柱がない空間なので、家具がスッキリと置けそうです。
約4.6帖の洋室

共用廊下に面した洋室で、オープンタイプのクローゼットがありますよ。
cowcamo
ふた部屋あるため、片方はお子さまのお部屋にしてもいいですし、趣味のお部屋にしてもOK。使い方の妄想が膨らみます!
シンプルな水まわり

いずれも白が基調で清潔感がありますね! 洗面台の横に扉付き収納があるのが助かります。1416サイズのバスルームは、浴室乾燥機・追い焚き機能を完備。
お邪魔しました!

玄関土間には下足入れのほかに奥行きの深い収納まで備わっています。
cowcamo
全体的に収納豊富な間取りでしたね! 続いてマンションの共用部をご紹介します。
住宅街に建つ 低層マンション

駅近でありながら周囲は静かな住宅街。1978年築、地上4階建て、全29戸です。

左上・プランターに挟まれた控えめなエントランス。/右上・共用ロビーには集合ポストのみというシンプルさ。/左下・エレベーターがないので、階段で住戸のある2階まで上がります。/右下・住戸の玄関扉前。明るい外廊下です。
cowcamo
管理人さんは常駐しておらず、週4回清掃員の方が巡回でいらっしゃいます。前回の大規模修繕工事は2018年に完了していますよ。
便利・楽しい・リフレッシュ

左上・駅から5分の道のりは、こちらの「用賀商店街」を歩きます。食料品から日用品までひと通り揃いますよ!(徒歩1分)/右上・砧公園に併設している「世田谷美術館」は感性を磨くのにぴったりなスポット。興味深い展示が多いんです。(徒歩17分、自転車で約6分)/左下・買い物モード、遊びモードの時は「二子玉川ライズ」まで繰り出すのがオススメ。(徒歩28分、自転車で約8分)/右下・「二子玉川公園」からは雄大な多摩川を一望できますよ。(徒歩34分、自転車で約10分)
カウカモ編集部より
間取りは自由気ままなおひとり暮らしから、お子さまのいるファミリーまで、幅広く対応できそうです。
すべてに『◎』が付く物件はこのご時世とてもお高いので、取捨選択こそが重要です。自問自答の結果、皆さまにはこの物件がどう写りましたか?
まだ出会えていないだけで、もっといい出会いがあるカモ?
記事の物件も素敵ですが、実はカウカモでは、未掲載物件を含む約1万件*の中から物件のご紹介が可能です。「もっと自分好みにリノベーションしたい」というご相談も、もちろん大歓迎。一歩踏み込んで、私たちと一緒に住まい探しを始めてみませんか?
*2024年における、東京都23区、首都圏都市部における、35平米・2500万円以上の物件のご紹介可能な平均総数
writer:伊勢谷 亜耶子/editor:及川 円
この物件の建物情報
アーバンハウス用賀
派手さはないけれど、じんわりとホームタウン愛が育めそうな「用賀」が舞台。駅までは歩いてたったの5分。フットワーク軽く生活できますよ。