品川区上大崎(目黒駅)
どこにいても窓辺
目黒グレースマンション
「目黒」と「五反田」、ふたつの街の躍動があわさる立地。バルコニーに囲まれたこの住まいは、どこにいても窓辺。都心のアクセスと、明るく風通しのよい空間が共鳴する、感性豊かな特等席です。
現在ご紹介可能な物件は、中古・リノベーション住宅のオンラインマーケット「cowcamo(カウカモ) 」よりご覧いただけます。
東横線・目黒線
現在販売中のおすすめ中古マンション
“目黒エリア” で 明るい暮らしを

今回ご紹介する物件は、最寄りのJR山手線「目黒」駅から徒歩10分。大通りを挟んで東側に少し向かうと、池田家の屋敷跡を整備した庭園「池田山公園」(徒歩5分)が広がり、都心にありながら豊かな自然を身近に感じられる立地です。
企画担当
cowcamo
こちらのマンションは、ペット2匹までと一緒に暮らしを送れます(細則あり)。目黒川沿いなど絶好の散歩スポットも多いので、ワンちゃんとの暮らしも楽しくなりそうですね!
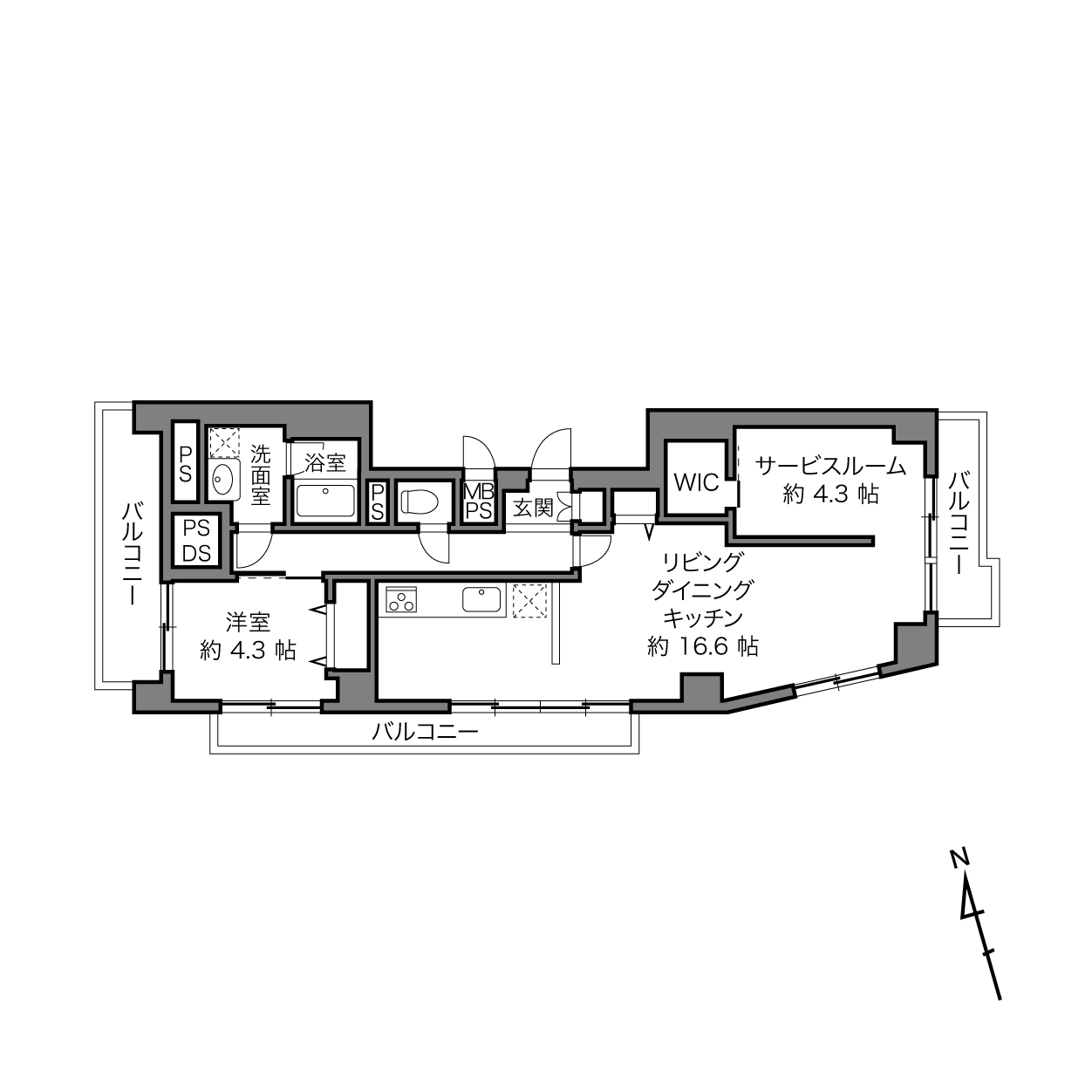
まずはLDKから

16.6帖のLDKは南と東の二面採光。角部屋ならではの開放感に満ちています。

リビングスペースの壁は石調のタイル仕上げで、梁(はり)に設置されたライティングレールが空間にアクセントを添えるデザインに。
企画担当
ダイニングテーブルのほかに大きなソファを置いても、余白のある広さです。お気に入りの家具に囲まれた時間を存分に楽しんでいただけると思いますよ。
料理を主役にするキッチン

キッチンは3口コンロで食洗機付き。ライトグレーの面材とデザインウォールの組み合わせが特徴的な佇まいです。
cowcamo
リビングダイニングとほどよい距離感で、お料理を楽しみながらパートナーとの会話も弾みそう。背面には大きな窓があり、明るい空間の中で調理と向き合えるのもうれしいポイントです。
約4.3帖のサービスルーム

左・サービスルームはリビングダイニングの壁沿いをまわり込んだ位置にあり、東向きの窓に面しています。/右・引き戸タイプのウォークインクローゼット(WIC)付き。季節家電など大きなアイテムも収納可能な広さです。
cowcamo
朝の光が気持ちよく入るベッドスペースとしても、リビングダイニングと緩くつながるワークスペースや趣味室としても。ライフスタイルにあわせて自由度高く使えそうな空間です。
東側のバルコニー

東側は首都高速第2目黒線に面しています。
cowcamo
車の走行音の届き方などは現地でご確認くださいね。
廊下を経由して 約4.3帖の洋室へ

西と南のバルコニーに面した洋室。ベッドを置ける広さです。
企画担当
日当たりがよく、昼間はとても気持ちのいい空間です。夜は調光可能なダウンライト付きのため、シーンに合わせて雰囲気を変えられます。

折れ戸2枚分のクローゼットが備わっています。
西と南の バルコニー

西側はひらけた眺望。正面には集合住宅のバルコニーが見えますが、距離が取れている印象です。

奥行きあるバルコニー。左右にはビルと緑が共演しており、こちらのエリアらしい眺望を楽しめます。

南側には隣接するビルが迫って建っています。ブラインドなどで目隠しすることで、視線を遮りながら日当たりを確保してみてくださいね。
清潔感ある水まわり

左・洗面台は黒がキリッと引き締まったデザイン。/中央・浴室乾燥機付きの1216サイズのユニットバス。/右・トイレには廊下からアクセスする間取りです。
マンションについて

1970年に竣工した総戸数67戸のマンション。エントランスや共用ロビーはきれいに改修されており、宅配ボックスが備わっています。
企画担当
直近の大規模修繕工事は2022年に実施済みで、時代にあわせてアップデートが行われている建物ですよ。
cowcamo
2026年1月現在、敷地内の駐車場(月額25,000〜33,000円)と自転車置き場(月額500円)にはいずれも空きがあります。最新状況については、お問い合わせの上でご確認くださいね。
日常も特別な日も彩る 近隣のレストラン

左上・「Ristorantino Lubero(リストランティーノ リベロ)」は、古民家を改装した一軒家レストラン。こだわりの素材を使った美しい料理と、居心地のいい雰囲気が魅力です。(徒歩5分)/右上・「La maison dami(ラ メゾン ダミ)」は、気軽にいただけるフレンチが人気。ついついワインが進むメニューばかりだそう。(徒歩5分)/左下・イタリアンとフレンチの要素を盛り込んだ和洋折衷レストラン「小林食堂」。テイクアウト可能なメニューもあるので、ホームパーティにも◎(徒歩4分)/右下・「gicca(ジッカ)池田山」では、世界の家庭料理やケーキを楽しめます。店内には各国のめずらしい調味料などを購入できるコーナーも。(徒歩3分)
カウカモ編集部より
「目黒」と「五反田」、ふたつの街の利便性を手中に収める住まい。大通り沿いという都会的な活気はありつつも、三面バルコニーがさわやかな光と風を届けてくれる物件です。
半世紀を超える歴史を刻んできたヴィンテージマンションですが、外観や共用部はきれいに改修済み。さらに室内は、現代の感性が息づく洗練された空間にリノベーションされており、住まい手の個性をやさしく受け止めてくれます。
こちらのエリアで65㎡超の広さを手にできるのは、“中古リノベーション” ならではの賢い選択。アクセスを重視しながらも、自分らしい世界観を住まいで表現したい。そんなこだわりを持つ方に、この場所で物語の続きを紡いでいただきたいと願っています。
まだ出会えていないだけで、もっといい出会いがあるカモ?
記事の物件も素敵ですが、実はカウカモでは、未掲載物件を含む約1万件*の中から物件のご紹介が可能です。「もっと自分好みにリノベーションしたい」というご相談も、もちろん大歓迎。一歩踏み込んで、私たちと一緒に住まい探しを始めてみませんか?
*2025年における、東京都23区、首都圏都市部における、35平米・2500万円以上の物件のご紹介可能な平均総数
writer:軽部 優海/editor:小田切 咲樹
この物件の建物情報
目黒グレースマンション
こちらはカウカモが企画を手がけた物件。2023年にリノベーションが行われているため、今回はクロスの貼り替えなど、表層を中心としたリノベーションを実施しています。専有面積約65㎡を1SLDKにした間取りで、なんといっても南・西・北に3つのバルコニーがあり、日当たりと風通しのよさが魅力です。