杉並区上井草(井荻駅)
NOペット、NOライフ
ラヴィドール杉並上井草
いぬねこ多頭飼いOK。大型犬もOK。愛犬家・愛猫家ファミリーをがっちり受け止める、太陽ぽかぽかの住まいです。専用駐車場がついてくるほか、共用部にはペット用グルーミングルームまで!ああWhat a ワンダフル・ニャンダフルWorld!
現在ご紹介可能な物件は、中古・リノベーション住宅のオンラインマーケット「cowcamo(カウカモ) 」よりご覧いただけます。
練馬・大江戸線・西武線
現在販売中のおすすめ中古マンション
多頭飼いもOK♡ ペットwelcomeなマンション

左上・緑地が点在する穏やかな住宅街に建つ、2003年築・総戸数25戸のマンション。ちょうど1階左手前の角に位置しているのが、ご紹介の住戸です。/右上・オートロック完備のエントランス。/左下・共用ホールの宅配ボックスを通り過ぎればすぐに住戸のポーチなので、アクセス楽々です。/右下・敷地内の中庭には、ペット用の水飲み場が用意されています。
cowcamo
グルーミングルーム完備

なんと、共用施設としてグルーミングルームまであるのです。ペット用の洗い場、ドライヤー、水洗トイレ、さらにシャンプーなどの荷物を収納できる小さなロッカーも揃っていますよ。
cowcamo
各住戸の玄関に飼育中の犬種のステッカーが貼ってあったり、多くの住民の方がペットと一緒に暮らしを満喫している様子がうかがえました♡
それでは住戸へ お邪魔します

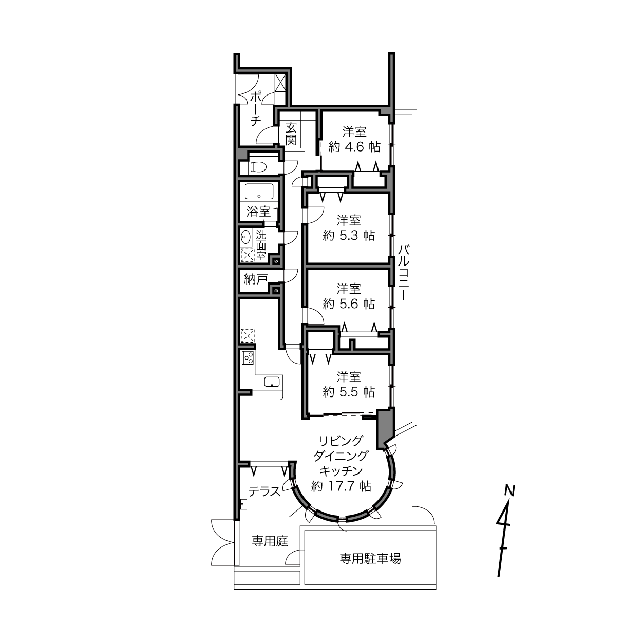
まずは光いっぱいのLDKから。優雅な円形のリビング(左)と、長方形のダイニングキッチン(右)を組み合わせたような形をしており、全体で約17.7帖の広さです。
ダイニングエリアから 外へ……

左・1階の住戸ながら、南向きで日当たりのよさはご覧の通り◎ ダイニングには左右にフルオープンする折れ窓が採用されているので、気候のいい日には開け放ってランチするのも素敵ですね。/右・窓の向こうにはテラスと専用庭が。
1階の特権 専用庭です

テラス左手にはスロップシンクを完備。さらに、ペット用のリードを繋いでおけるフックも用意されています。
cowcamo
写真右手にはロック付きのドアが。ちょっと開けて、外に出てみましょうか?
ジャジャン!

おおお! こちらの住戸の専用駐車スペース(月額使用料20,000円)に出ました。共用部を通らずダイレクトに住戸〜車を行き来することも可能なんですね。まるで戸建て暮らしみたいなのびのび感を満喫できそう。
cowcamo
屋根がないので車高が高い車も駐車できそうです!
住戸に戻って

こちらは窓を背にしてLDKを見たカット。右奥にある、引き戸で区切られた洋室Aへ進みましょう。
約5.5帖の洋室A

バルコニーに面した東向きの窓と、奥行きの深いクローゼットを備えた洋室A。
東向きのバルコニー

窓の向こうには、人ひとり立てるくらいの奥行きのバルコニーが、洋室4つぶん長ーく延びています。植栽のすぐ奥を人や車が通行するため、こちらのバルコニーは道路との緩衝地帯と捉えておくのがよさそう。
cowcamo
道路とやや距離が近いので、窓を閉めた室内でも車の走行音は聞こえてきました。この点は現地にてご自身の感じ方をお確かめくださいませ。
LDKに戻って

洋室Aの引き戸を閉めるとこんな感じ。日頃は開け放ってキッズルームなどに使い、生活感を出したくない時だけサッと閉める……なんて使い方もできそうですね。
明るい 家事ステーション

左・食洗機を完備したL字型キッチン。テラスを眺めながらの洗い物は気分が上がりそう。/右・キッチンの奥には、ちょっとびっくりするほど広いスペースが確保されています。冷蔵庫とキッチンボードを置いてもまだ余裕カモ!
cowcamo
置き型の収納を置いたり、造作で棚を設置したらパントリースペースとして活用できそうなゆとりがあります。
廊下に出ましょう

左・4つの洋室とLDKが南北に並んだ細長い形の住戸なので、廊下も長いのです。チャカチャカお迎えに走ってくるペットの姿が目に浮かびますね……/右・トイレはゆったりしたサイズ感で、必要とあらばふたり入ることも可能そう。
cowcamo
4つの洋室はどれも同じくらいの広さで、いずれもきれいな四角形をしています。残る洋室B・洋室C・洋室Dを一気にツアーしていきましょう!
洋室B&洋室C

上・こちらは約5.6帖の洋室B。ほかの部屋よりちょっとだけ収納が大きめです。/下・こちらは約5.3帖の洋室C。
さらに洋室Dへ

いちばん小ぶりな洋室Dは、約4.6帖の広さ。サイズのばらつきが少ないのは公平な感じがしてイイですね。
水まわりをチェック!

左・収納力の高いキャビネットタイプの洗面化粧台。脱衣スペースも無理のない広さを確保しています。/右・バスルームは堂々の1618サイズ。長風呂さんも、豊かなバスタイムを楽しめそうですよ♪
お邪魔しました

左・大型犬と一緒の出入りもスムーズにできそうな、ゆったりした玄関なのがうれしいですね。/右・住戸の玄関扉の前には、約5.2㎡の専用ポーチが設けられています。ここにもリードを繋ぐフックがあるのが心にくい! ちなみにポーチ内に、約0.3㎡の専用トランクスペースもありますよ◎
お散歩コースのご提案

マンションから徒歩6分の場所には「杉並区立井草森公園」が。自然豊かでお子さま用遊具も充実したきれいな公園です。ほかにも、マンションの近くに緑道もあるので、お散歩コースには事欠きません。
ゆるりとローカル 西武新宿線ライフ

左上・最寄りは西武新宿線「井荻」駅(徒歩7分)。同路線の「上井草」駅へも徒歩10分です。/右上・スーパー「ピーコックストア 井荻店」には100円均一ショップも入っていて便利。(徒歩7分)/左下・上井草方面にも素敵なお店がありますよ。「SLOPE」は自家焙煎コーヒーと焼き菓子のお店。(徒歩9分)/右下・「井草ワニ園」はグラノーラと古本のお店。ワニはいません。(徒歩7分)
cowcamo
気になる「井荻」駅は「西武新宿」駅まで10駅・約20分の距離。南へ下れば中央線の「荻窪」駅があり、バスを利用すれば約13分で到着できますよ。2.4kmなので自転車圏内です!
カウカモ編集部より
グルーミングルームや水飲み場といった充実した共用設備、それに何より、コミュニティ全体に漂う「ペットと一緒に楽しくやっていきましょう♡」というウェルカムな空気にじーんとしてしまいました。ペットに特化したマンションと言えるので、反対に全く飼育する気がないという方には向かないかもしれません。
そしてこちらの物件の強みは、1階の角住戸ならではのプライベート感。専用駐車場と住まいをダイレクトに行き来できるので、まるで戸建てに住んでいるような気分で暮らせそうです。ペットとのびのび過ごせるこの環境は、大いに「あり!」なのではないでしょうか。日当たり良好で個室も大きく、もちろん人間にとっても気持ちよく暮らせる住まいですよ。
NOペット、NOライフというファミリーさん! 答えは西武新宿線沿い、「井荻」にあったのです!
まだ出会えていないだけで、もっといい出会いがあるカモ?
記事の物件も素敵ですが、実はカウカモでは、未掲載物件を含む約1万件*の中から物件のご紹介が可能です。「もっと自分好みにリノベーションしたい」というご相談も、もちろん大歓迎。一歩踏み込んで、私たちと一緒に住まい探しを始めてみませんか?
*2025年における、東京都23区、首都圏都市部における、35平米・2500万円以上の物件のご紹介可能な平均総数
writer : 小杉 美香 / editor : 小田切 咲樹
この物件の建物情報
ラヴィドール杉並上井草
それではお聞きください。こちらのマンションでは……犬なら3匹まで(大型犬は2匹まで)、猫なら5匹まで、犬猫はあわせて4匹まで飼育可能です! すごーい!