武蔵野市吉祥寺南町(吉祥寺駅)
ふたりと2匹のいい時間
吉祥寺コーポ
公園の緑と街の文化が混ざり合う「吉祥寺」で、ペットとともにのびやかに暮らしを送れる住まい。好きなモノに囲まれて心地よく過ごしたいふたりに似合う、あたたかな光に満たされた駅チカの一室です。
現在ご紹介可能な物件は、中古・リノベーション住宅のオンラインマーケット「cowcamo(カウカモ) 」よりご覧いただけます。
中央線
現在販売中のおすすめ中古マンション
舞台は「吉祥寺」

今回ご紹介する物件は、最寄りのJR中央線・京王井の頭線「吉祥寺」駅から徒歩4分。駅南側の緑が広がるエリアで、「井の頭恩賜公園」(徒歩4分)もご近所です。
cowcamo
企画担当
ペット可のマンションで、犬や猫なら2匹まで飼育できますよ。
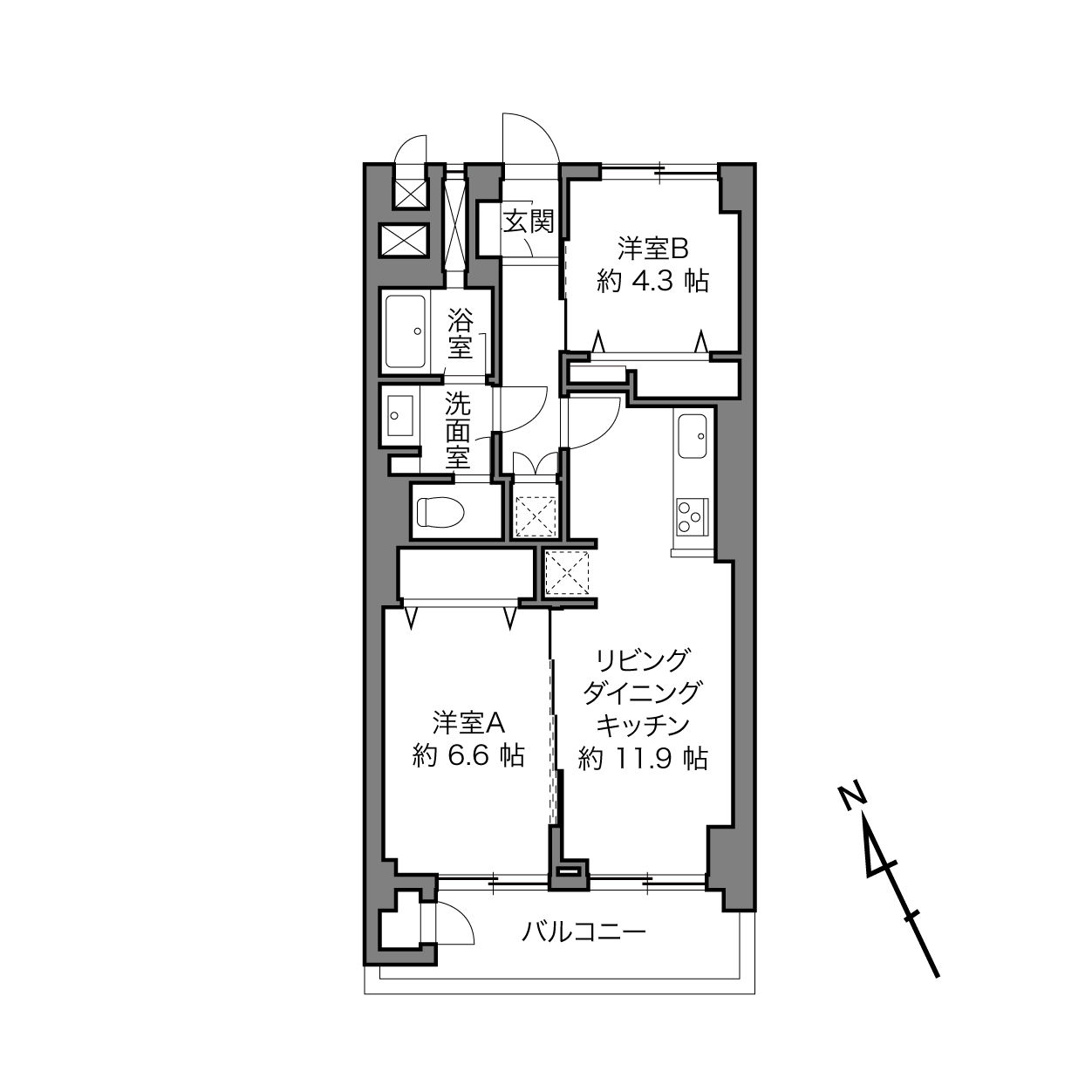
まずはLDKから

LDKの広さは約11.9帖。南西向きのバルコニーに面しています。

隣接する洋室Aの引き戸を開けると、リビングダイニングを拡張することもできます。
企画担当
LDKと洋室の天井高を2.4m以上取り、最大限開放感を得られるようにしています!
キッチンをご紹介します

キッチンは3口コンロタイプ。壁は正方形のタイル貼りで、空間のアクセントになっています。
企画担当
追加工事で食洗機を設置することができますよ。

冷蔵庫置き場は見えづらい位置に配置されており、生活感をうまく抑えられますよ。
約6.6帖の洋室A

洋室Aは、セミダブルベッドのほかにも小さな家具を置ける広さ。
企画担当
右手の壁にはグレーのアクセントクロスを用いて、空間の奥行きを感じられるようにしました。

折れ戸2枚分のクローゼットを設置予定です。
cowcamo
LDK〜洋室Aの引き戸は上吊りタイプで床にレールがないので、空間がスッキリと見えますね!
バルコニーへ

バルコニーの向かいには、集合住宅の窓が見えます。視線の感じ方などは現地でご確認くださいね。
cowcamo
バルコニーには専用のトランクルームがあります。アウトドア用品などの収納にぴったり!
室内に戻って 廊下から水まわりへ

玄関扉を背にして正面の突き当たりには、扉付きの洗濯機置き場が。

左・洗面台はシンプルなデザイン。横にはタオルなどを収納できる棚があります。/右・トイレには洗面室からアクセスする間取りです。
cowcamo
CGイメージのご用意がありませんが、浴室は1216サイズのユニットバス。
約4.3帖の洋室B

洋室Bは共用廊下に面する北東向き。こちらも収納を完備しています。CGイメージではシングルベッドを配置していますよ。
レトロな意匠が可愛い!

1969年に竣工した、地上7階建てのマンション。エントランス中央に鎮座するガス灯を模したライトなどレトロな雰囲気が漂う建物で、共用ロビーはきれいに改修済みです。
企画担当
2025年9月より耐震補強工事を実施中です!
なんでも揃う 「吉祥寺」の街

左上・「吉祥寺オデヲン」は全3スクリーンの映画館。歩いて映画を観に行けるなんて贅沢♡(徒歩5分)/右上・開店から50年以上! 多くの著名人にも愛され続けてきたという「TONNY'S PIZZA(トニーズピザ)」。ニューヨーク仕込みのアメリカンピザを味わうことができます。(徒歩2分)/左下・大きなソーセージが特徴的なホットドックをいただける「ケーニッヒ 吉祥寺店」。ドイツビールも美味しいですよ。(徒歩3分)/右下・「Ryumon coffee stand(リュモンコーヒースタンド)」のおすすめはカフェラテ。ふわっと舌を包む甘いミルクフォームとコーヒーの苦味がマッチした、極上の一杯です。(徒歩5分)
カウカモ編集部より
最寄りの「吉祥寺」駅から徒歩4分。井の頭恩賜公園の緑も、洒落たレストランやカフェも、商業施設も映画館もぎゅっと集まった “好きで満たされる街” が暮らしの舞台です。
南西向きの光がやわらかく届くLDKは、隣接する洋室とつなげて広く使うこともできる設計。ペットとともに、家族の気配を感じながら自由に居場所を選べる間取りです。キッチンのタイルやオークのフローリングなど、日々の風景が少し誇らしくなるようなディテールもポイント。
ペットは犬・猫2匹までOK。散歩帰りに公園を抜けたり、ローカルなお店を巡ったり、暮らしと趣味が自然に重なっていくのがこの物件の魅力。駅チカの利便性と、ペットと過ごす穏やかな時間、そして “好き” を育てる余白。その全部を、こちらの一室で手に入れてみませんか?
まだ出会えていないだけで、もっといい出会いがあるカモ?
記事の物件も素敵ですが、実はカウカモでは、未掲載物件を含む約1万件*の中から物件のご紹介が可能です。「もっと自分好みにリノベーションしたい」というご相談も、もちろん大歓迎。一歩踏み込んで、私たちと一緒に住まい探しを始めてみませんか?
*2024年における、東京都23区、首都圏都市部における、35平米・2500万円以上の物件のご紹介可能な平均総数
writer:軽部 優海/editor:小田切 咲樹
この物件の建物情報
吉祥寺コーポ
こちらはカウカモがプロデュースした物件です。CGイメージでご紹介しますね!