目黒区目黒本町(学芸大学駅)
開放せよ
マンションニュー目黒
すべての “Ride” を愛する人へ。電車もバスも自転車もバイクも車も。東京を駆け回り、家に帰ればスコンと抜ける眺望が待ってるよ。窓も心も、開放せよ!
現在ご紹介可能な物件は、中古・リノベーション住宅のオンラインマーケット「cowcamo(カウカモ) 」よりご覧いただけます。
東横線・目黒線
現在販売中のおすすめ中古マンション
cowcamo
「学芸大学」と 「武蔵小山」の中間地点

左・東急東横線「学芸大学」駅から物件までは活気溢れる「学芸大学東口商店街」を通るルート。美味しい飲食店が点在しているので、自分なりのフェイバリットを発掘してみては?(徒歩7分)/右・東急目黒線「武蔵小山」の駅前には、約250軒もの商店が並ぶアーケード商店街「パルム商店街」があり、まさにお買い物天国! 雨の日でも食材や日用品の調達が一気に済んでしまいそうですよ。(徒歩15分)
cowcamo
東急東横線「学芸大学」駅まで徒歩12分、東急目黒線「武蔵小山」駅まで徒歩15分と少々距離はあるものの、マンション目の前にあるバス停「清水庚申(しみずこうしん)」からは「渋谷」「目黒」「五反田」など各方面へ向かうバスが頻繁に発着しています。もちろん自転車を駆使すれば快適!
売主さま
小型犬・猫1匹までペットの飼育が可能な物件です。(細則あり)
わーお♡

ご覧ください! この抜け感! 南西向きで日当たり◎

早速ベランダに出てみました。空が広い……!

2025年10月現在、道路を挟んだ南西側で地上7階建ての新築マンションが建設工事中。2026年12月に完成予定です。住戸は8階に位置するため、大きく眺望に影響することはなさそうです。
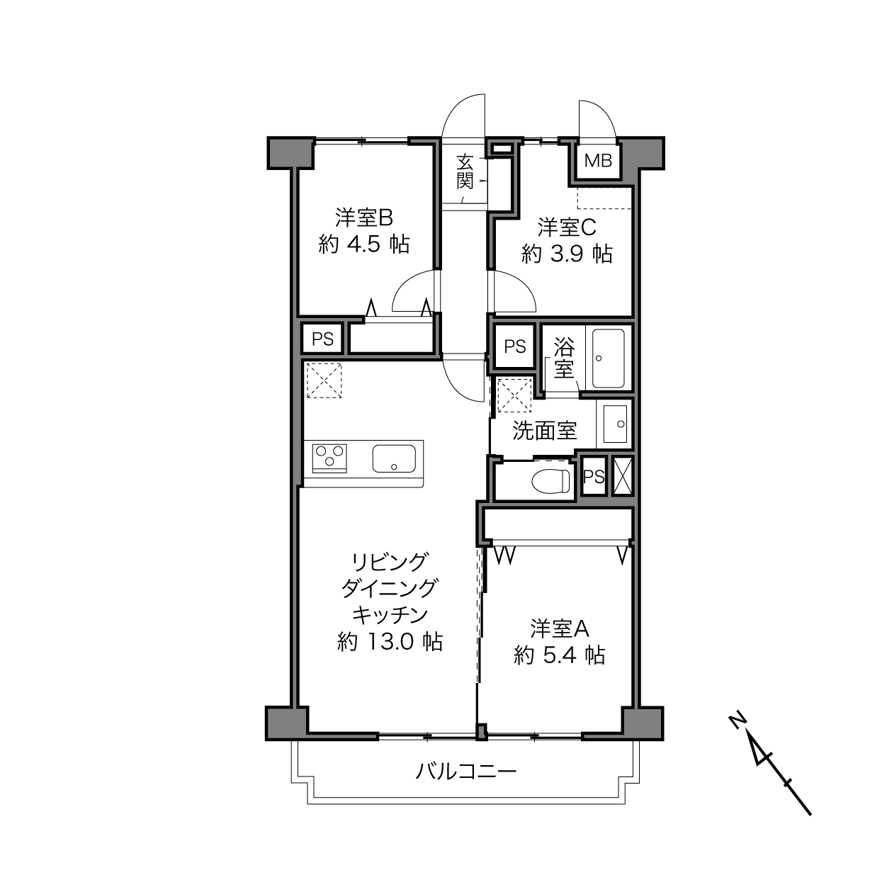
約13帖のLDK

LDKは約5.4帖の洋室Aと隣あっています。下側にレールがないタイプなので、空間に繋がりを感じます。

洋室Aの引き戸を閉めるとこんな感じ。洋室Aは、リビングの一部として使いながら、お子さまのプレイルームやご両親が泊まりに来た時のゲストルームとしての利用もよさそう。

キッチンの方へ振り返ってみました。建具の面材が全てグレーで統一されていて◎
対面式キッチン

キッチンは3口コンロで、食洗機が備わっています。開放感を感じながら、お料理ができそう♪
cowcamo
次は、それぞれの洋室を見ていきましょう!
約5.4帖の洋室A

左・引き戸を開け閉めした様子。日当たり良好です! /右・折れ戸3枚分のクローゼット付き。
約4.5帖の洋室B

北東側の共用廊下に面する洋室B。折れ戸2枚分のクローゼットが備わっています。
約3.9帖の洋室C

オープン収納付きでお子さまのお部屋によさそう。部屋の形が歪なため、家具の配置の仕方は現地でご確認くださいね。
水まわりの確認

左・3面鏡付きの洗面台。/中央・1216サイズのユニットバス。/右・洗面室からアクセスするトイレ。
お邪魔しました!

玄関には下足入れと、全身鏡が付いていますよ。リビングへの入り口の扉には、ガラススリットが入っていて、玄関まで光を届けています。
どっしり全128戸

1974年築、バス通り沿いに堂々と建つマンションです。
cowcamo
エントランスのお向かいには、「まいばすけっと 目黒本町2丁目店」が。明日のパンを切らしてしまった……!という時にも安心です。(徒歩1分)

左上・エントランスアプローチでは、段々になった集合ポストが印象的。/右上・共用ロビー。エレベーターは2機用意されています。管理人さんは住込みで、月曜日から土曜日の9時から18時まで勤務されていますよ。/左下・駐車場は、月額23,000円〜月額28,000円で2025年10月現在空きあり。/右下・開放的な外廊下。玄関扉が改修されていてGOOD。
cowcamo
ちなみに、2025年10月現在、バイク置き場と自転車置き場も空いていますよ。バイク置き場の空きがあるはめずらしい!
今日のサードプレイスは どこにしよう

左上・マンションから徒歩8分の「林試の森公園」。ジョギングに、お子さまの遊び場に、森林浴に……自分の家の庭のように通える距離ですね。/右上・ハンバーガーやステーキなどカリフォルニア料理を楽しめる「RESTAURANT INDIGO(レストラン インディゴ)」。黒毛和牛を使ったハンバーガーのほか、前菜やワインも美味しいと評判です。(徒歩4分)/左下・「Factory&Labo(ファクトリーアンドラボ)神乃珈琲」はその名のとおり倉庫のようなデザインのカフェ。大きな窓と吹き抜けのある開放的な空間で、居心地のよいお店です。(徒歩4分)/右下・バインミー(ベトナム風サンドウィッチ)専門店。その名も「Stand Bánh Mì(スタンドバインミー)」。休日は行列ができる人気店です!(徒歩10分)
カウカモ編集部より
マンションは大規模で、管理費と修繕積立金のバランスがよく、ランニングコストが規模の恩恵で抑えめなのがうれしいポイント。住戸も開放感ばっちりで、風がきもちよく抜け、住み心地も良さそうですよ。そしてペットの飼育もOK!
内装はグレーを基調にシンプルに仕上がっているので、例えばリビングのアクセントクロスを張り替えてみたり、キッチンの腰壁にタイルを貼ったり……少し “自分色” を付け足すのもオススメ。カウカモでは追加リノベーションのアドバイスもできるので、内見の際には理想の暮らしをエージェントに伝えてみてくださいね!
まだ出会えていないだけで、もっといい出会いがあるカモ?
記事の物件も素敵ですが、実はカウカモでは、未掲載物件を含む約1万件*の中から物件のご紹介が可能です。「もっと自分好みにリノベーションしたい」というご相談も、もちろん大歓迎。一歩踏み込んで、私たちと一緒に住まい探しを始めてみませんか?
*2024年における、東京都23区、首都圏都市部における、35平米・2500万円以上の物件のご紹介可能な平均総数
writer/editor:小田切 咲樹
この物件の建物情報
マンションニュー目黒
愛車をお持ちの方に朗報です! 2025年10月現在、平置き駐車場が6台空きあり! 後ほど写真付きでご紹介します。