カクカク

東急東横線「都立大学」駅から歩くこと約5分。ブロックが積み上がったようなカクカクとしたマンションが現れました!竣工は1981年、総戸数は32戸です。

東急東横線「都立大学」駅から歩くこと約5分。ブロックが積み上がったようなカクカクとしたマンションが現れました!竣工は1981年、総戸数は32戸です。

売主さま

2019年にサッシ改修工事、2020年に玄関扉改修工事を実施。そのほか宅配ボックスも設置されており、最新の設備にアップデートされていますよ。1階には歯科医院や美容院などのテナントが入居しています。

では、お邪魔します

むむ、玄関ではあまりお見かけしないガラス扉。その中は収納スペースで、そのまま洋室Bの方まで抜けられるようになっています。詳細はまた後ほどご紹介しますね。

むむ、玄関ではあまりお見かけしないガラス扉。その中は収納スペースで、そのまま洋室Bの方まで抜けられるようになっています。詳細はまた後ほどご紹介しますね。

リュクスな空間

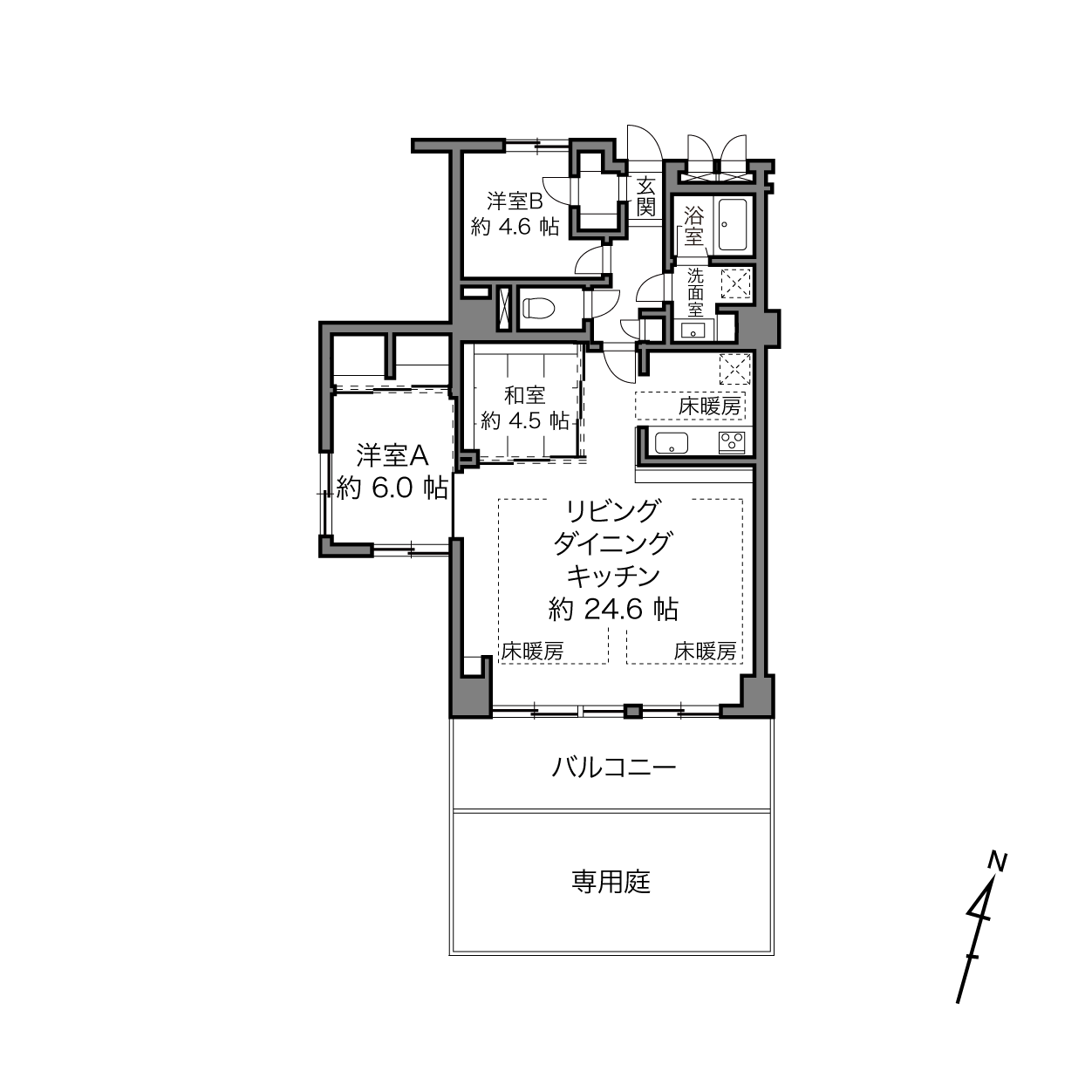
約24.6帖のLDKにやってきました。ひ、広い……! 南東の窓の先には専用庭が広がっています。

約24.6帖のLDKにやってきました。ひ、広い……! 南東の窓の先には専用庭が広がっています。

ベージュカラーをベースにした、柔らかな雰囲気の内装。タイル敷きで上品な印象も受けます。

ベージュカラーをベースにした、柔らかな雰囲気の内装。タイル敷きで上品な印象も受けます。

売主さま

リビングダイニングの大部分には床暖房を設置しているので、冬でも快適にお過ごしいただけますよ。

流石の広さ。リビングとダイニングのスペースをそれぞれゆったりと確保できます。ちなみにこちらの物件は家具付き販売なので、ご覧のイメージのまま生活を始められますよ。

流石の広さ。リビングとダイニングのスペースをそれぞれゆったりと確保できます。ちなみにこちらの物件は家具付き販売なので、ご覧のイメージのまま生活を始められますよ。

おや……?

窓際をよく見てみると、タイルの色が切り替わっています。暗い色なので、床の汚れが目立ちにくくなっていますね。室内で観葉植物を思う存分育てられそうです!

窓際をよく見てみると、タイルの色が切り替わっています。暗い色なので、床の汚れが目立ちにくくなっていますね。室内で観葉植物を思う存分育てられそうです!

cowcamo

清掃性のよいタイルの特徴も活きているのがGOOD! そのままお庭の方まで出てみましょう。

暮らしが豊かに なりそう

テーブルと椅子4脚を出せるほどのゆとりがあります。窓を開けて、アウトドアリビングとして利用するのもよさそうです。

テーブルと椅子4脚を出せるほどのゆとりがあります。窓を開けて、アウトドアリビングとして利用するのもよさそうです。

cowcamo

コンクリートの塀で囲まれているため眺望はありませんが、その分プライベート性は高めですよ。

再び室内へ

LDKの一角にはなんと和室が。キッチンと洋室Aをご紹介する前にチェックしてみましょう。

LDKの一角にはなんと和室が。キッチンと洋室Aをご紹介する前にチェックしてみましょう。

和みます

畳の香りがするだけで、和みますね〜。畳縁が無かったり、障子風のすりガラス引き戸が使われていたり、住戸の雰囲気とうまく馴染むようにデザインがモダンになっています。

畳の香りがするだけで、和みますね〜。畳縁が無かったり、障子風のすりガラス引き戸が使われていたり、住戸の雰囲気とうまく馴染むようにデザインがモダンになっています。

中に入って、引き戸を閉じてみるとこんな感じ。うっすらとリビングダイニングの様子が伺えます。広さは、約4.5帖です。

中に入って、引き戸を閉じてみるとこんな感じ。うっすらとリビングダイニングの様子が伺えます。広さは、約4.5帖です。

カウンター付き キッチン

ダイニングでゆったりとご飯を食べるのもいいですが、こちらでバー気分を味わうのも楽しそう。

ダイニングでゆったりとご飯を食べるのもいいですが、こちらでバー気分を味わうのも楽しそう。

3口コンロと食洗機付きで、背面には収納を置くための余白がたっぷりと用意されています。

3口コンロと食洗機付きで、背面には収納を置くための余白がたっぷりと用意されています。

cowcamo

キッチン内にも床暖房が備わっているので、足元が冷えることなく料理できます!

リビングに隣接する 洋室A

二面に窓が配置された約6帖の洋室A。すぐお隣にマンションが建っているため採光は期待できませんが、内装の明るさのおかげか、暗い印象はありません。

二面に窓が配置された約6帖の洋室A。すぐお隣にマンションが建っているため採光は期待できませんが、内装の明るさのおかげか、暗い印象はありません。

ガラス引き戸の先にはちょっとしたデスクスペース。こじんまりとしていて作業に没頭できそう。横にはクローゼットが用意されています。

ガラス引き戸の先にはちょっとしたデスクスペース。こじんまりとしていて作業に没頭できそう。横にはクローゼットが用意されています。

約4.6帖の洋室B

こちらの居室は、共用廊下に面しています。

こちらの居室は、共用廊下に面しています。

スリムな開き戸を開けた先が、冒頭に紹介した玄関横の収納スペース。可動棚の対面に枕棚とハンガーパイプが用意されています。

スリムな開き戸を開けた先が、冒頭に紹介した玄関横の収納スペース。可動棚の対面に枕棚とハンガーパイプが用意されています。

最後に水まわりを ご紹介

左・収納が豊富に用意された洗面室。雑多にならず、すっきりと使えそう。/中央・TV付きのバスルーム。これは長風呂してしまいそうな予感……。サイズは1216です。/右・トイレは、空間にややゆとりがあります。

左・収納が豊富に用意された洗面室。雑多にならず、すっきりと使えそう。/中央・TV付きのバスルーム。これは長風呂してしまいそうな予感……。サイズは1216です。/右・トイレは、空間にややゆとりがあります。

共用部

オートロック、宅配ボックスを完備。管理人さんは週6日勤務と手厚めな体制で安心感があります。住戸は1階所在です。

オートロック、宅配ボックスを完備。管理人さんは週6日勤務と手厚めな体制で安心感があります。住戸は1階所在です。

東横線の 人気エリア

左上・東急東横線「都立大学」が最寄り駅。「東急ストア 都立大学店」が併設しているので、帰りがけに買い物を済ませられるのがうれしい。(徒歩5分)/右上・マンションのすぐ隣に店を構える「すし勘」。アナゴやだし巻き卵が絶品なのだとか。(徒歩1分)/左下・駅から物件へ歩く途中にある「AMERICAN CLUB HOUSE(アメリカンクラブハウス) 都立大学店」は、スペアリブとアップルパイが有名なお店。(徒歩2分)/右下・こちらは、喫茶店「DUN AROMA(ダンアロマ)」。店内は薄暗くクラシカルな空間。ここで読書に耽るのもまた乙です。(徒歩6分)

左上・東急東横線「都立大学」が最寄り駅。「東急ストア 都立大学店」が併設しているので、帰りがけに買い物を済ませられるのがうれしい。(徒歩5分)/右上・マンションのすぐ隣に店を構える「すし勘」。アナゴやだし巻き卵が絶品なのだとか。(徒歩1分)/左下・駅から物件へ歩く途中にある「AMERICAN CLUB HOUSE(アメリカンクラブハウス) 都立大学店」は、スペアリブとアップルパイが有名なお店。(徒歩2分)/右下・こちらは、喫茶店「DUN AROMA(ダンアロマ)」。店内は薄暗くクラシカルな空間。ここで読書に耽るのもまた乙です。(徒歩6分)

cowcamo

カウカモ編集部より

“ゆとりのある上品な空間” と一言で片付けるにはもったいない住戸。改めて、内装を振り返ってみましょう。

LDKに敷かれたタイルは窓際で色が切り替わるデザインが秀逸。室内で観葉植物を育てても汚れが目立ちにくいだけでなく、専用庭を行き来する生活まで視野に入れた意匠だと感じます。

そのほか、内装に馴染むモダンな和室や洋室Aのデスクスペース、洋室Bと玄関をつなぐ収納スペースなど、琴線に触れるようなポイントが随所に。広範囲に設置された床暖房も快適な暮らしを支えるうれしい配慮です。

1点気になるのは、共益費の金額。管理費と修繕積立金のほか、特別修繕積立金(2028年2月まで)や専用庭使用料も加えて、合計約5.9万円の支払いが月々発生します。あらかじめローン返済と合わせた資金計画を立てておくと安心ですね。

懸念点までお伝えはしましたが、百聞は一見にしかず。街は感度の高いお店が集まる東横線でも人気のエリアですので、まずは散策がてらふらっと内見にお越しください。暮らしをイメージしてみると、ちょっとのハードルは乗り越えられるかもしれません。



まだ出会えていないだけで、もっといい出会いがあるカモ?

記事の物件も素敵ですが、実はカウカモでは、未掲載物件を含む約1万件*の中から物件のご紹介が可能です。「もっと自分好みにリノベーションしたい」というご相談も、もちろん大歓迎。一歩踏み込んで、私たちと一緒に住まい探しを始めてみませんか?

▶︎リクエストしてみる

*2024年における、東京都23区、首都圏都市部における、35平米・2500万円以上の物件のご紹介可能な平均総数


writer/ editor:秋月 胤斗