練馬区関町東(武蔵関駅)
Brrrrrrright!!
パークホームズ武蔵関
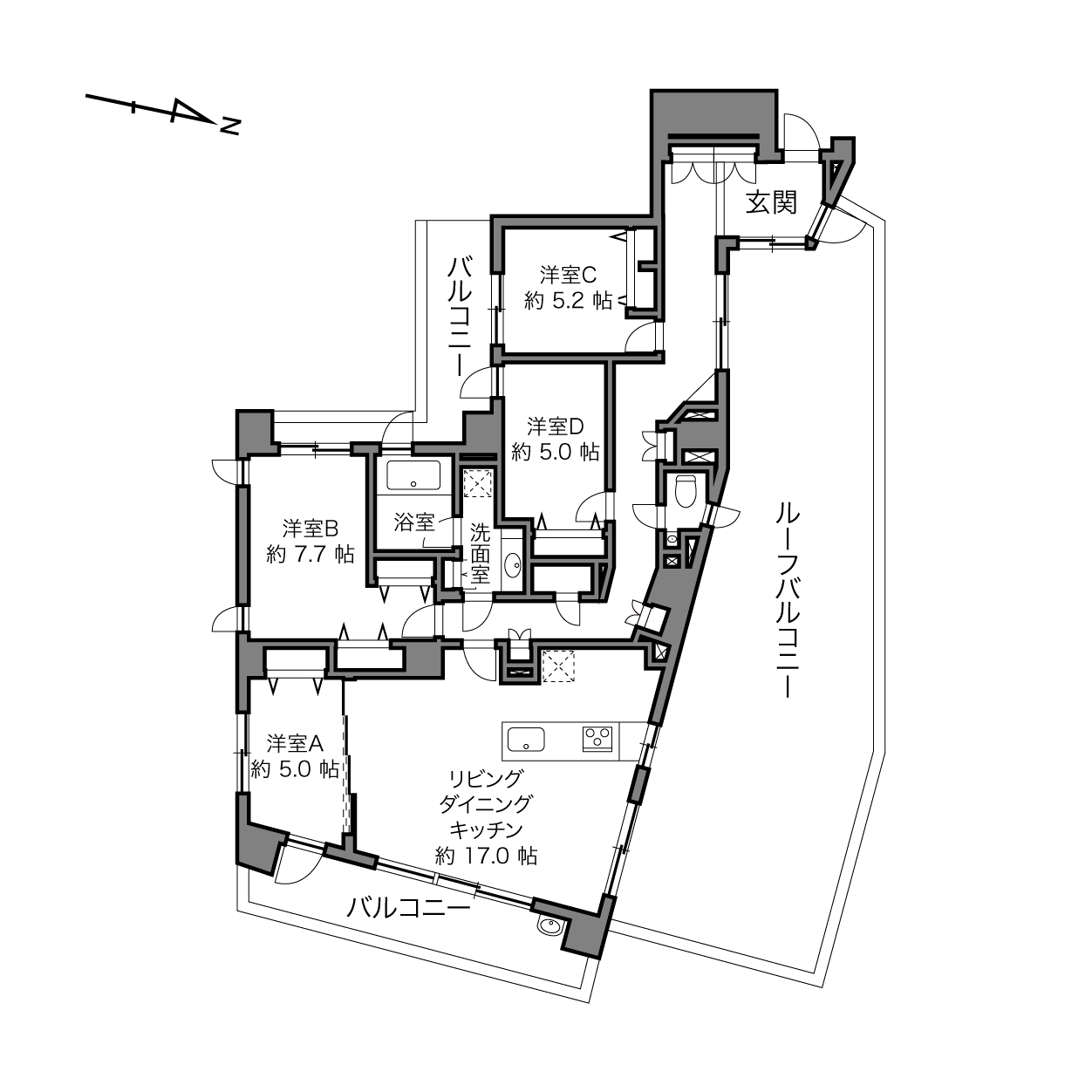
明るい、とにかく明るい! 最上階、100㎡超えの4面角住戸。すべての居室だけでなく水まわりや廊下にまで窓があり、日当たりも風通しもとことん良好。約60㎡のルーフバルコニーは人目を気にせずくつろげそうで、子どももワンコも大よろこび。さあ、気持ちのいい暮らしをはじめよう!
現在ご紹介可能な物件は、中古・リノベーション住宅のオンラインマーケット「cowcamo(カウカモ) 」よりご覧いただけます。
練馬・大江戸線・西武線
現在販売中のおすすめ中古マンション
cowcamo
いきなり 『あかるっ!』

玄関ドアを開けた瞬間まばゆい光が……! 土間はベビーカーを広げて置いておけそうなほど広く、下足入れもたっぷり扉4枚分。

『廊下に窓があるって、こんなに気持ちいいんですか!?』と思わず誰かに話しかけたい衝動に駆られます。くねくねと進み、まずはLDKへ。
ひえー!

『あかるっ!』パート2。広さは約17帖です。北東の角だというのに、窓面積が大きいとこんなにも明るいのですね!
cowcamo
まずは左手に見えているサッシの外を拝見しましょう!
おおお!

約60㎡のルーフバルコニーです! LDKから玄関前まで続いており、景色にも抜けがあります! 花台に元気な植物をいっぱい植えて、緑でモリモリにしたいですね◎
cowcamo
北側に西武新宿線の線路があるため、時折電車の音がBGMに。音の聞こえ方は個人差もあるので、現地でチェックしてみてくださいね。
なお、こちらのマンションでは成長時の体長70cm以内、体高30cm以内、体重10kg以内の犬・猫を2匹まで飼育可能です(細則あり)。ルーフバルコニーで遊ばせる際は近隣にご迷惑がかからぬよう、しっかり見守ってくださいね◎
下り天井のキッチン

参考レイアウトのように前にダイニングテーブルを置けば、お料理のサーブも楽々。

ちょっと気持ちのよすぎる1枚ですね〜。3口ガスコンロにグリル、食洗機を完備。
cowcamo
夢見心地でお料理できそうです……♡
バルコニーへ

キッチン正面のサッシの先にはメインのバルコニー。スロップシンクが付いているので、汚れ物はここで洗っちゃいましょう! 東向きなので、お洗濯物は早い時間帯から干すのがオススメ。

変形間取りのため、ソファやテレビの配置は熟考したいところ。
LDKと隣接する 約5帖の洋室A

南と東の2面に窓があってポカポカ。LDKから目が届くため、お子さまが小さいうちはここを遊び場にしてあげるとよさそうです。

名残惜しくてLDKをもう1枚……。この明るさと、外へ視線がスッと抜ける開放感が心地よくて、ついシャッターを切りたくなっちゃいます。廊下を進んでほかの居室も拝見していきましょう!
約7.7帖の洋室B

小さな窓が南向き、曇りガラスの窓が西向き。写っていませんが入り口近くにクローゼットがふたつあり、ご夫婦それぞれの衣類を分けてしまっておけそうです。
cowcamo
4つある洋室の中でもっとも広いので、こちらが主寝室にオススメです!
水まわりにも窓

洋室Bのお隣に洗面脱衣室と浴室が。お風呂とトイレにまで大きな窓が付いているのですね……(感涙)。トイレには手洗いボウルも付いていますよ。
約5.2帖の洋室C

玄関に一番近い居室で、窓は南向き。外へ出てみましょう!
南向きの サブバルコニー

L字にクランクしており、短手にある窓は洋室Bと浴室のもの。電波塔が遠くまで並んだ景色になんだか癒されます。
約5帖の洋室D

こちらも南向きですが、窓が腰高でサブバルコニーには出られないようになっています。お子さまのお部屋にすると安心かもしれません。
名残惜しい

左・廊下沿いにある納戸。収納ラックを追加して、季節家電やスーツケースなどをしまうとよさそうです。/右・帰り際に、もう一度廊下沿いの窓。ルーフバルコニーにいる家族に『行ってきま〜す』なんて声がかけられますね。
2004年築のマンション

横に長い形状で、総戸数は41戸。2015年に初回の大規模修繕工事を終え、長期修繕計画は2025年6月に見直されたばかりです。

植栽に囲まれた爽やかなエントランス。オートロックに加え宅配ボックスも設置されています。エレベーターで最上階の5階に到着すると、すぐ横にご紹介した住戸の玄関ドアが。
「武蔵関」も「吉祥寺」も

左上・“武蔵関エリア” でぜひ足を運んでいただきたいのが「オザキフラワーパーク」。ただの園芸店とあなどるなかれ、珍しい植物がたくさん揃っています! 花台に植える植物はこちらで調達を!(徒歩9分)/右上・よくニュース番組で野菜高騰のインタビューに答えているスーパー「アキダイ 関町本店」。(徒歩7分)/左下・バスや自転車を駆使すれば “吉祥寺エリア” も射程圏内!「井の頭恩賜公園」で癒されましょう。(徒歩45分、自転車約15分、徒歩とバスで約28分)/右下・ハシゴ酒を楽しみたい時は「ハーモニカ横丁」へGO! バスに揺られて帰宅しましょう。(徒歩40分、徒歩とバスで約22分)
cowcamo
マンションから徒歩8分の距離にバス停「吉祥寺通り入口」があり、乗車時間約8分ほどで「吉祥寺」駅まで到着可能です!
カウカモ編集部より
『ここに住んだらめちゃくちゃいい家族になりそう』というのが最初の感想です(笑)。各居室に加えて水まわりや廊下にまで窓があり、LDKは2面採光で、広いルーフバルコニーに加えバルコニーが2箇所。風通しがよく、元気いっぱいの生活が送れそうだと思いませんか?
最寄りは西武新宿線「武蔵関」駅ですが、直線状に南へ下れば “吉祥寺エリア” も射程圏内。自転車に乗れば「石神井公園」や「善福寺公園」など緑豊かな公園にもすぐ行くことができ、ご家族の素敵な思い出をたくさんつくれそうです。
writer:伊勢谷 亜耶子/editor:及川 円
ご紹介するのは最上階にある4面角住戸で、専有面積は約107㎡。早速室内を拝見いたしましょう!