足立区東和(北綾瀬駅)
光と風にほどける
レクセルガーデン北綾瀬
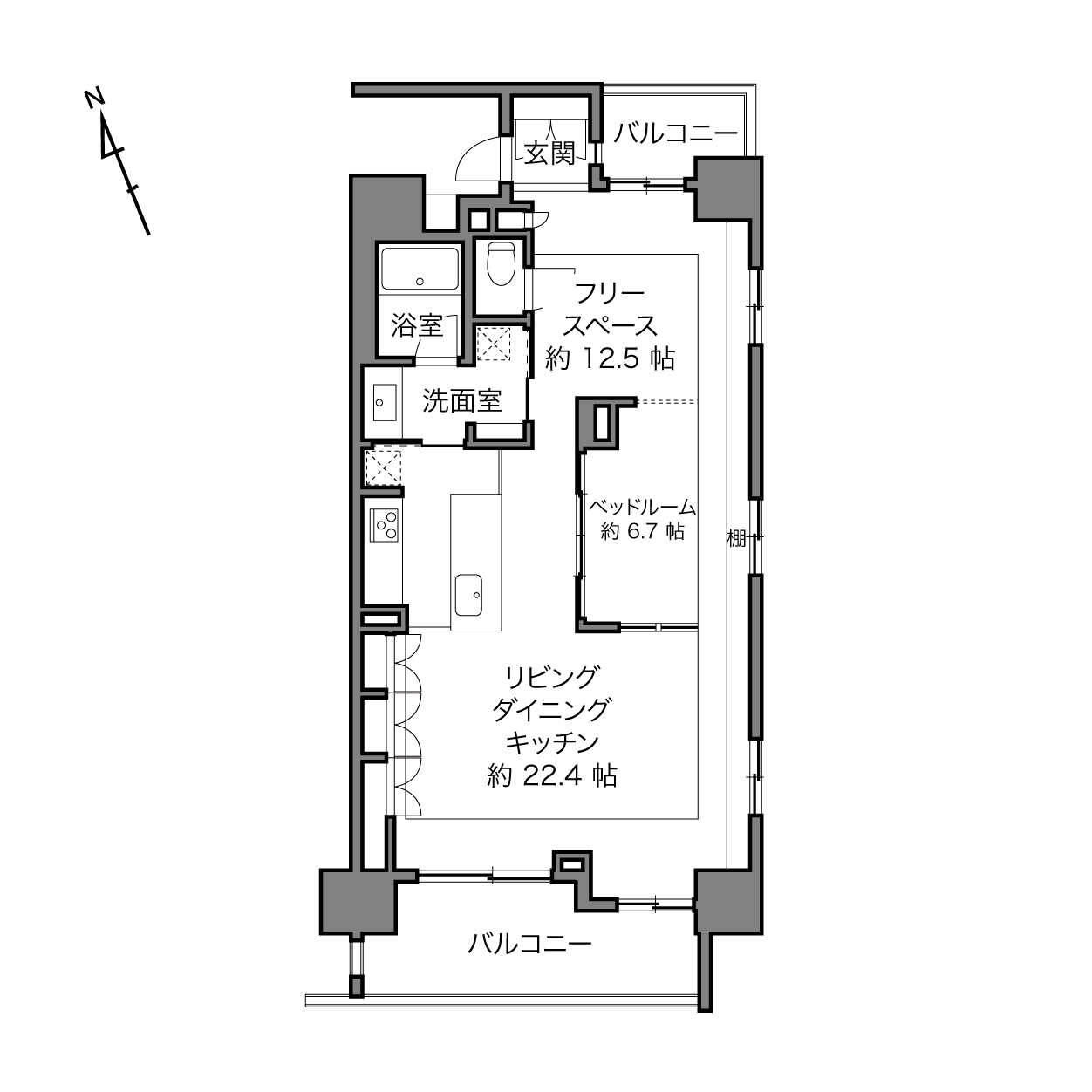
空間を隔てないプランが、家族の気配と会話を自然につないでいく。三方から差し込む光と抜ける風を、全身で浴びて。窓辺に広がる土間には緑を添えて。始発駅の利便性が毎朝の余裕を支え、心地よさが積み重なる住まいです。
現在ご紹介可能な物件は、中古・リノベーション住宅のオンラインマーケット「cowcamo(カウカモ) 」よりご覧いただけます。
光が満ちるLDK

こんにちは、カウカモです。さっそくLDKにお邪魔していますが、光が満ちていて心地いい……。約22.4帖のゆとりのおかげもあるのでしょうか、心がふっとほぐれます。

二面採光だからこその明るさ。リビングを縁取るように床がモルタルに切り替わっており、その上部にはハンガーパイプが備わっています。
cowcamo

くるっと振り返ると、壁一面に収納がずらり! 頼もしい収納量です。
cowcamo
左上の梁型にエアコンがすっぽりと収まっているところに、設計の細やかさを感じられます。
バルコニーへ

バルコニーは奥行きたっぷり。手すりには物干し金具が備わっています。

3階の住戸ですが、周辺に高い建物が少ないので、空はしっかりと仰げます。
機能的な II型キッチン

シンクと3口コンロが分かれた、造作のII型キッチン。調理スペースが広くて作業しやすそう。

シンク側のカウンターは、内側に調理家電などを収納できるスペースを設けた造り。もちろん食洗機も完備しています。
cowcamo
キッチンの正面にある壁で囲まれている空間が気になります! さっそく中を拝見しましょう。
室内窓で生まれる つながり

障子風の窓が二面にある約6.7帖のベッドルーム。キッチン側の窓は開けることができ、空間のつながりと抜け感を生み出します。
cowcamo
窓に使われているのは、半透明のポリカーボネート。視線は通さずに光だけを柔らかく取り込みます。

ベッドルームから出てみました。ドアはなく、カーテンで仕切る仕様。左端は通路になっており、リビング側まで抜けられます。
振り返って

こちらは玄関前のフリースペース。モルタルの床は、玄関から続いていた土間スペースだったのですね。
cowcamo
北東側にも窓がある三方角住戸。窓を開ければ、風の通り道ができて心地よく過ごせそうです。
洗面室はこちら

フリースペースからアクセスできる洗面室。ミラーキャビネット付きのシンプルなデザインです。左手の引き戸からキッチンに抜けられます。
cowcamo
トイレは独立しており、フリースペースからアクセス可能です。なお、ユニットバスとトイレは既存利用です。使用感は現地でお確かめくださいね。
平成生まれの マンション

2008年築、総戸数28戸、地上9階建て、ペット飼育可のマンション。オートロック、宅配ボックスを完備しています。直近の大規模修繕工事が2022年に実施され、2025年9月時点では約600万円の借入金がありますが、完済は2027年1月を予定しています。また、今後の管理を見据えて2026年4月分から修繕積立金が29,120円に改定される予定です。
cowcamo
最寄りは東京メトロ千代田線「北綾瀬」駅(徒歩7分)。始発駅なので朝は座りながらゆったりと通勤できますよ。「大手町」までは乗車時間約27分、「新宿」までは約42分でアクセス可能です。
また、駅併設のスーパーや24時間営業のスーパー「西友 北綾瀬店」が近くにあるほか、駅前には2025年6月に開業したばかりのショッピングモール「ららテラス 北綾瀬」もあり、暮らしやすい立地。緑の豊かな公園も点在しているので、息抜きに訪れてみてもいいかもしれませんね。
カウカモ編集部より
空間が一体となっているからこそ、三方角住戸ならではの明るさや風通しのよさも、家中で余すことなく感じられるはず。土間に囲まれた内装も、この住まいならではのユニークな魅力。グリーンを添えれば、暮らしの景色はさらに瑞々しく、心地よく整っていきそう。
最寄りは東京メトロ千代田線の始発駅。朝の通勤も座って向かえると思うだけで、気持ちの負担がすっと軽くなるもの。駅前には新たな商業施設も誕生し、利便性も向上。暮らしやすさが心にゆとりを生み、家では光と風がやさしく包んでくれる。そんな穏やかな日々を重ねていける住まいだと思います。
まだ出会えていないだけで、もっといい出会いがあるカモ?
記事の物件も素敵ですが、実はカウカモでは、未掲載物件を含む約1万件*の中から物件のご紹介が可能です。「もっと自分好みにリノベーションしたい」というご相談も、もちろん大歓迎。一歩踏み込んで、私たちと一緒に住まい探しを始めてみませんか?
*2024年における、東京都23区、首都圏都市部における、35平米・2500万円以上の物件のご紹介可能な平均総数
writer/ editor:秋月 胤斗
この物件の建物情報
レクセルガーデン北綾瀬
モルタルの床なら、多少の汚れは許容できそうですね。観葉植物を置くも吊るすも自由!