横浜市港北区大倉山(大倉山駅)
ひなたと握手
大倉山ハイム1号棟
あったかい窓辺で、住まいとガシッと握手。穏やかな空気と品のいい街並み、小さな家族も一緒に暮らせる、安心感ある環境。それに、シンプルだけどおしゃれな内装。欲しかったものぜんぶくれるというのなら、その代わりに私たち家族は、ここに溢れる笑顔を約束しましょう。
現在ご紹介可能な物件は、中古・リノベーション住宅のオンラインマーケット「cowcamo(カウカモ) 」よりご覧いただけます。
東横線神奈川
現在販売中のおすすめ中古マンション
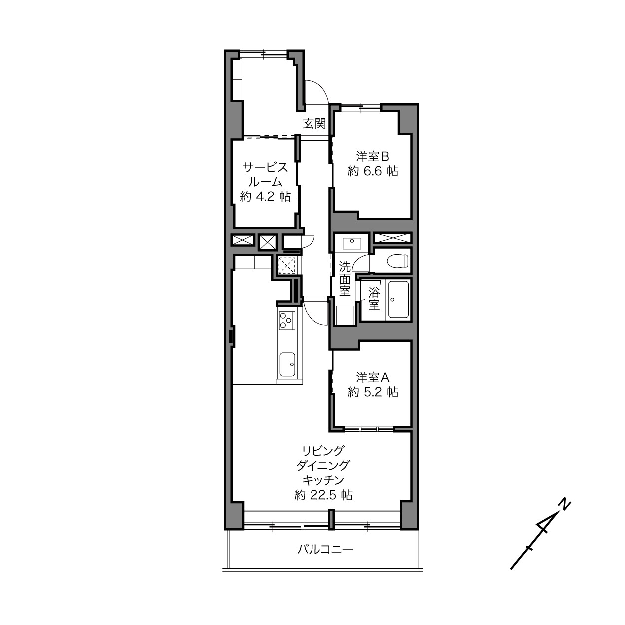
2階の住戸です

左・ご紹介の住戸の玄関扉は、共用廊下の突き当たりに。さっそくお邪魔します!/右・土間が広く、入った瞬間に開放感を感じます。振り返ると……
自然光の入る ゆったりホール

おおっ、まるで独立した小部屋のような、ゆとりある土間スペースですね! ファミリークロークやバギー置き場にしてもいいし、工夫次第でDENのような使い方もできそうです。
売主さま
拡張可能な サービスルーム

ホールに隣接するサービスルームは、約4.2帖の広さです。写真はガラス入りの引き戸を開け放った状態で撮影しています。/右・反対側には、衣類などを掛けられるアイアンハンガーが設置されています。
それではいざ くつろぎの場へ

視界がパッと大きく開ける、リビングダイニング(LD)。南東側の壁ほぼ一面が窓になっており、外には植栽のグリーンがチラリ。やっぱりワイドスパンの部屋って気持ちいい!

奥の壁面にはベージュのアクセントクロスがあしらわれ、奥行きのある印象に。窓辺の足元を見てみると、軽く段差がついているのが縁側みたいで可愛いですね。
バルコニーからの眺め

外に出ると、視界いっぱいに植栽の緑が広がります♡ 道路とは植栽分の距離が取れているおかげで、人や車の通行は特に気にならなさそう。古いマンションならではの贅沢な建て方に感謝カモ。

LDの横幅いっぱいにのびる、南東向きのバルコニー。建物のお手入れが行き届いており、鉄柵も庇の裏もとてもキレイな状態でした。
室内に戻って

LDKの広さは約22.5帖。シンプルながら、室内窓やブラックのライティングレールがおしゃれな印象の内装です。
cowcamo
続いて写真中央の、室内窓のある洋室Aへ行ってみましょう。そのあとで、左手のキッチンエリアをチェックします。
室内窓の洋室A

洋室Aは約5.2帖。外に面した窓はありませんが、室内窓のおかげで圧迫感がなく、空間の広がりを感じられてGOODですね。窓は開閉可能で光と風を両方取り込めるので、明るく快適に過ごせそう。
住まいの主役級 広々キッチン

こちらの住まい、なんとこのキッチンだけで約5.7帖の広さがあります! 腰壁はタイル貼りで、奥の壁には好きな高さに調節できるオープンラックを完備。作業スペースにも収納スペースにも困らなさそうな、余裕の構えです。
売主さま
ゆとりある広さですので複数人でも調理がしやすく、動線もスムーズです。家族との会話を楽しみながら料理や作業ができるのも魅力ですよ。
cowcamo
キッチン上部には梁が突き出していて、天井が低くなっている部分があります。ぶつかるほどではないので個人的には気になりませんでしたが、背の高い方はご注意を。
廊下にでましょう

左・LDKを背に玄関までを見渡したカット。洋室B、水まわり、洗濯機置き場が並んでいます。/右・洗面化粧台はシンプルかつ隙のないデザイン。下部は収納スペースとなっています。
清潔感漂う水まわり

左・洗面室の隣には、1416サイズのバスルームが。浴室乾燥機完備です。/右・反対隣りにはトイレがあります。水まわりは比較的ぎゅっとコンパクトな印象です。
最後に洋室Bへ

左・玄関すぐ横、住戸の北西側にある洋室B。約6.6帖の広さがあるので、ダブルベッドを置いても余裕がありそう。曇りガラスの窓は共用廊下に面しています。/右・収納はアイアンハンガーのみなので、家具の追加をイメージしておくのがいいかもしれません。
閑静な住宅街に佇む ビッグコミュニティ

マンションは1973年築、2棟からなるビッグコミュニティ。住戸のある1号棟だけで194戸もの暮らしを抱いています。戸数が多いこともあり、月々の共益費が控えめなのはうれしいポイントですね。
cowcamo
マンションは2025年11月の取材時点で、大規模修繕工事を完了しようとしているタイミングでした。外観や共用部はとてもキレイで、気持ちよく住み始められそうです!
売主さま
また、こちらのマンションでは、細則に基づいてペットの飼育が可能ですよ。

左上・最寄り駅から歩く場合は、駐車場側にあるこちらのサブエントランスを使うことが多くなりそう。/左下・渋いグリーンのタイルで装飾された共用ホール。/右・住戸の所在する2階へは階段でのアクセスとなります。1フロア分ではありますが、この点はあらかじめ心のご準備を。

左・ふたつの棟の間には、花壇やシンボルツリーのある中庭が。/右上・マンションに隣接する「太尾町公園」は、小さいながら遊具が充実したお子さまの遊び場にぴったりのスポットです。/右下・さらにマンションの1階には内科・小児科などの「横山クリニック」が入居しています。手の届く範囲に欲しいものが揃っている環境ですね!
やっぱりうれしい 東横沿線

物件の最寄りは東急東横線「大倉山」駅(徒歩9分)。ということは……「渋谷」「中目黒」「自由が丘」「横浜」などなどへダイレクトにアクセスできるということです!「新横浜」駅もテリトリーなので、新幹線利用にも便利ですよ◎(徒歩17分)
cowcamo
「大倉山」駅からマンションまでの通り道には、ギリシャ・アテネのエルム通りと姉妹提携を結んでいる「大倉山エルム通り商店街」が。海外の雰囲気漂う美しい街並みに、テンションが上がります!
歩けばきっと 雰囲気のよさを実感♡

左上・「大倉山」って、結構気の利いた個人店が多いんです。例えば「pukutto(プクット)食堂」は、コワーキングスペース併設の隠れ家カフェ。(徒歩8分)/右上・「Toasty shop(トースティーショップ)」では、無添加&天然酵母使用のこだわり食パンをいただけます。日々のパン事情も安泰ですね◎(徒歩7分)/左下・物件周辺には家族で遊べる公園が点在しています。「太尾南公園」はちょと変わりダネで、建物屋上に造られた広大な空中庭園です。(徒歩7分)/右下・日々お世話になるスーパー「ヨークマート 大倉山店」も、ほぼ隣と言っていい距離に。この利便性は計り知れません!(徒歩2分)
カウカモ編集部より
そう思うのは、筆者がけっこうな「大倉山」ファンだから……かもしれません。もしこの街に降り立ったことのないという方はぜひご内見へお越しください。おっとりとした空気の流れをきっと実感できると思いますよ。
しかもご紹介のマンションは、敷地内or超至近距離に公園・スーパー・クリニックが揃った盤石の立地です◎ ビッグコミュニティなので共益費は抑えめですし、大規模修繕工事をまさに今完了しようとしているピカピカの状態! というのもテンションが上がりますね。
そして住戸で特に力説したいポイントは、キッチンの広さ。なんと約5.7帖もあります。梁で天井が低くなっているところもありますが、それより何より横に広いので(笑)、窮屈な感じはしませんでした。キッチンを住まいの中心として、家族の会話が弾みそうだなぁ〜なんて妄想が膨らみます。
街とマンションと住戸が組み合わさって、間取り図やデータだけでは伝わりきらない、居心地のよさを感じさせてくれる物件です。こういう漠然とした “明るく暮らせそうな予感” って数値化できないので、やっぱり締めくくりは「ぜひ現地へお越しください」としか言えないのがもどかしいです。
writer : 小杉 美香 / editor : 及川 円
この物件の建物情報
大倉山ハイム1号棟
靴や傘、ベビーカーなどをすっきり収納でき、玄関まわりをスッキリと保つことができますよ。ライフスタイルに合わせて自由に活用できる柔軟な空間です。