横浜市港北区大豆戸町(菊名駅)
スロウリー・グローリー
菊名ハイツ(1〜2号館)
東京よりも時間がゆったり進んでいるような空気感が、やっぱり “横浜エリア” のいいところ。そんな雰囲気にぴったりの住まいが「菊名」にありました。安心感あるビッグコミュニティと、最上階ならではの爽快ビュー。決して派手ではないけれど、このさりげない輝かしさにどうか気付いてください。
現在ご紹介可能な物件は、中古・リノベーション住宅のオンラインマーケット「cowcamo(カウカモ) 」よりご覧いただけます。
東横線神奈川
現在販売中のおすすめ中古マンション
暮らしの舞台に 「菊名」はいかが?

物件の最寄りはJR横浜線・東急東横線「菊名」駅(徒歩9分)。多摩川を越えた先なので、都心からはやや距離がある印象? ……いえいえ、実は特急列車なら「渋谷」駅まで乗車時間約20分ほどでダイレクトにアクセスできちゃう魅力的な立地なのです。駅隣接の「東急ストア 菊名店」があるのも便利なポイント◎
cowcamo
おおらかな雰囲気の ビッグコミュニティ

駅前から続くフラットな道沿いに現れる、1980年築のマンションが今回の目的地。全4棟からなるビッグコミュ二ティで、ご紹介する住戸は2号棟に所在しています。中庭では、これまでの大規模修繕のたびに記念植樹されてきたウメやアンズなどを見ることができました! なんだかストーリーを感じられて素敵です♡
cowcamo
修繕積立金に重きを置いた共益費のバランスが好印象。合計額が控えめなのは、ビッグコミュニティならではの恩恵と言えますね◎

左上・各棟を結ぶ屋根付きの渡り廊下。/左下・エレベーターや玄関扉といったポイントはしっかり更新されていて、古さを感じさせません。/右・1点ご注意を! ご紹介の住戸はマンション最上階(7階)にありますが、エレベーターが停まるのは6階までなので、1フロア分だけ階段を使うことになります。
売主さま
なお、マンション敷地内には平置きの駐車場があり、月額12,000円で利用可能ですよ。お車をお持ちの方もぜひご検討ください。(2025年12月時点空きあり)
それでは住戸へ お邪魔します

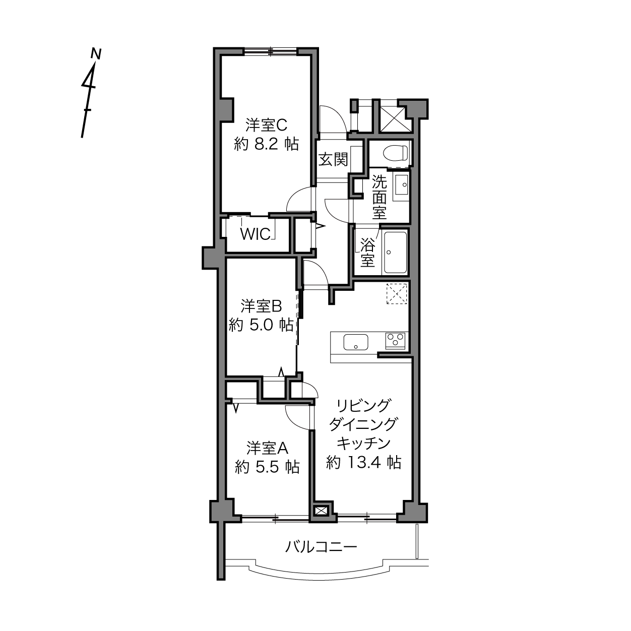
壁の間接照明がふんわりと優しい印象のLDK。広さは約13.4帖です。南側の大きな掃き出し窓のおかげで開放感があり、曇り空の日でも明るさを感じることができましたよ。
ヤッホー 最上階ビュー!

バルコニーからは、最上階らしい大きな空を楽しむことができます。お向かいにはマンション別棟がありますが、間にかなり距離が取られているため、視線が気になることはなさそうです。

バルコニーはゆるくカーブを描きながら、LDKとお隣の洋室Aにまたがっています。晴れた日は気持ちいいでしょうね〜!
LDKに戻って

今度はLDKの横に並んでいる洋室A・洋室Bを順番にチェックして、その後で右手奥のキッチンエリアへ進んでいきましょう。
売主さま
なお、こちらの物件はディスプレイの家具・エアコン1台込みでの販売です。すぐに新生活をスタートさせることができますよ。
約5.5帖の洋室A

バルコニーに面した南東向きの洋室A。収納は、おひとり分の衣類がちょうど入りそうなサイズのクローゼットが備わっています。きれいな四角形の空間なので、家具の配置がスッと決まりそうなのもGOODです。
約5帖の洋室B

こちらは窓のない “お籠もり感” のある個室のため、集中するためのワークスペースや、小さなお子さまのキッズルームなどにちょうどいいかも。キッチンのお隣なので、引き戸を開け放っておけば作業しながら見守ることも可能です。
会話が弾む オープンキッチン

左・食洗機や収納を完備したキッチン。リビングにいる家族とコミュニケーションを取りやすい対面型です。/右・背後には、冷蔵庫やカップボードを置くスペースが確保されています。
cowcamo
それでは廊下に出て、玄関側にあるもうひとつの洋室を見てみましょう。
約8.2帖の洋室C

約8.2帖って、やっぱり広い! 大きなベッドのほか、さらにデスクやドレッサーなども置けそうなほど、スペースに余裕を感じます。北西向きの窓から空が見えるのも好印象♡
cowcamo
東海道新幹線の線路が近いため、洋室Cの窓にはインナーサッシが設置されています。新幹線の通過時には走行音が聞こえてくるものの、だいぶ緩和されていて気になるほどではないと感じました。この点は現地にてご確認ください!

洋室Cには、奥行きたっぷりのウォークインクローゼット(WIC)が備わっています。ハンガーパイプと可動棚で、衣類を効率的に収納することができそうです。
最後に 水まわりを拝見

ランドリースペースを兼ねた洗面脱衣室があり、そこを経由してトイレにアクセスする間取りです。手洗いが徹底されていいカモ? バスルームは大きめの1416サイズなので、お子さまと一緒のバスタイムも快適に過ごせそう。
お邪魔しました

左・玄関からLDK方向を見たカット。シューズボックスのほか、廊下にワイドな物入れも備わっていますよ。/右・こちらが住戸の玄関扉。このフロアにはお隣の住戸とご紹介した住戸の2戸しかないため、玄関前のプライベート感は高めです。
cowcamo
ちなみに、共用廊下や階段からは新幹線のカッコいいお姿がよく見えます。電車好きのお子さまはきっと大興奮です!
カウカモ編集部より
街の雰囲気は今のところ「ザ・ベッドタウン」といった感じで、大規模なマンションが並び建ち、ショッピング施設や外食先などにはやや物足りなさを感じるかもしれません。暮らしている人口に対してお店が足りていない印象があるので、今後の開発に期待です。その代わり、時間がゆっくり流れるような和やかな空気が味わえますよ◎
ご紹介のマンションもかなり規模が大きく、そのおかげで月々の共益費が抑えられているのがうれしいポイント。平置きの駐車場もあるので、休日は車でのお出かけを楽しめそうですよ。
ちょっとご留意いただきたいのは、住戸へは1フロア分だけ階段を使ってアクセスするということ。それから、共用廊下側が新幹線の線路に近いため、走行音が室内でもやや聞こえるということです(二重サッシ越しなので、個人的にはそこまで身構える必要はないと感じましたが……)。
アクセス良好なこの街で、空に近い毎日を過ごしたいファミリーさんは、ぜひご検討くださいね。
writer : 小杉 美香/editor : 宇都宮 鴻輔
この物件の建物情報
菊名ハイツ(1〜2号館)
東海道新幹線が利用できる「新横浜」駅もマンションから徒歩14分の距離。出張が多い方にとってうれしいポイントです!