船橋市二子町(西船橋駅)
秘密基地4.6
グランドメゾン西船橋
天井高約4.6mのリビングには、大きな窓と高窓からの光と風が満ちる。大人になってもワクワクしてしまう ”秘密基地感” 。個性的な素材と細部のディテールまでニクい演出が光ります。
現在ご紹介可能な物件は、中古・リノベーション住宅のオンラインマーケット「cowcamo(カウカモ) 」よりご覧いただけます。
売主さまのご紹介

カウカモスタッフM
ご夫婦とわんちゃん1匹でお住まい。2024年2月に部分リノベーションを実施しています。わんちゃんのために、お庭のある戸建へ住み替えをすることになりました。
早速LDKからご紹介

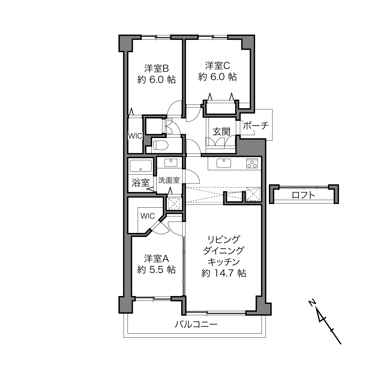
約14.7帖のLDK。約4.6mある天井高が伝わりますか!?
スタッフM

うわああ!開放感!!南西向きの大きめサッシ+上部にも窓があり、明るい!
スタッフM
高窓から差し込む光が壁を美しく照らし、心地よい風とともに室内を満たすのが推しポイントです。
気になるロフト

左・キッチンの上部には、はしごで登ることができる約3㎡のロフトスペースが。/右・ロフトから見下ろした様子。天井にはシーリングファンが備わっており、空調効率がGOOD。
cowcamo
シーリングファンは物件に付帯します◎

ロフトにも窓があり、明るい!これぞ秘密基地!何に使うか腕が試されます。
キッチンを確認

壁付けのキッチン。3口コンロに食洗機が備わっています。背面には、冷蔵庫置き場と備え付けの棚があり、調理家電やゴミ箱がすっきりと収まっています。
スタッフM
右側には飾り棚があり、スイッチにはトグルタイプを採用するなど、細部までニクい演出が光ります。
室内窓付きの洋室A

リビングと洋室の間は、室内窓付きのブラックの間仕切りで、空間にアクセントを加えています。

約5.5帖、南西向きの洋室A。床材がパーケットフローリングでかわいい♡ オープン棚が壁上部に付いています。

こちらにも可動式の棚があり、見せる収納や書籍のディスプレイに◎ 開き戸の中は広めのWIC(ウォークインクローゼット)です。奥行きがあり、季節家電やスーツケースも収納できますよ。
眺望&バルコニー

南西向きで抜け感のある眺望からは、「真間川」がチラリ。川沿いには桜並木が続き、春にはバルコニーからお花見を楽しめそうな予感…!

ワイドなバルコニー。洋室前のスペースは屋根付きです。
洋室B&洋室C

上・約6帖の洋室B。右側の扉の中は細長く奥行きがあるWICです。落ち着いたブラウンのアクセントクロスが貼られています。/下・こちらも約6帖の洋室C。折れ戸2枚分のクローゼットと、可動式の収納棚が付いています。
cowcamo
どちらの洋室も北東向きの窓が付いており、優しい朝日で目覚めることができそう!
水まわり

左・グレーの洗面ボウルと、個性的なタイルがかわいい造作の洗面台。/中央・シンプルな1218サイズのユニットバス。/右・ネイビーのアクセントクロスが印象的なトイレ。手洗い器付きです。
お邪魔しました!

玄関には、下足入れが備わっています。リビングとの間はガラス入りの扉で、玄関も明るい印象です。

左・玄関正面にも、収納があります。買い置きや書類の保管などに便利そう。/右上・玄関扉は個性的なピンク色! 玄関前は共用廊下から奥まっており、プライバシー性が◎ /右下・共用廊下は屋根がなく開放感を感じます。
1995年築 新耐震基準適合マンション

左上・総戸数53戸のマンションで、スタイリッシュな外観。/右上・エントランスはオートロック付き。/左下・エレベーターまでのアプローチも清潔に保たれています。/右下・機械式の駐車場は現在空きあり。月額7,000円〜12,000円で利用可能です。(2025年10月時点)
cowcamo
2018年に直近の大規模修繕工事を実施しています。現在は、長期修繕計画書の見直し作業を行っており、適切な修繕をしていこうという意思を感じ好印象です。
生活利便性GOOD

左上・物件の最寄り駅のひとつ、JR総武線「下総中山駅」周辺には、チェーン店やスーパーが立ち並んでいます。(徒歩14分)/右上・お弁当が安いと定評の「生鮮市場てらお 西船橋店」。(徒歩4分)「ワイズマート 西船本郷店」も近くにありますよ。/左下・「JEAN PAUL THIEBAUT(ジャン・ポール・チェボー)」では、オーナーシェフが日本風にアレンジせず、フランスと同じ味や食感を大切に作った焼き菓子、ケーキ、パンが人気です。(徒歩14分)/右下・スタッフMは唐揚げ定食がオススメという「食堂AO.」。(徒歩17分)
スッタフM
電車は6路線4駅が利用でき、車移動でも原木ICが近いため快適です。レストランの一番のオススメは、世界大会で受賞歴を持つ職人が、こだわりの薪窯で焼き上げる本格的なナポリピッツァを楽しめる「ピッツェリアベルソリーゾ」です。(徒歩14分)
カウカモ編集部より
なんといっても、天井高約4.6mのリビングが特徴的な住戸です。窓が上部にも付いていて、とっても開放的な空間です。ロフトもあり “秘密基地感” があって面白い!
また、オーク材の無垢のフローリングをはじめに、各所にこだわりの素材が光ります。例えば、キッチンを隠す壁の木製パネルや、リビングと洋室のガラス入りの間仕切り壁、白塗装が施された建具など、随所に「キュン」とするポイントがたくさんあります。
駅からはやや距離がありますが、6路線4駅が利用できるのは魅力的。「東京」駅、「新宿」駅までは直通でアクセスが可能ですよ。マンション周辺には、スーパー、ドラッグストア、コンビニ、公園が揃っているので、徒歩圏内で生活を完結することも十分可能。
お家の居心地がとても良さそうなので、リモートワークを併用したような働き方の方に、特にオススメしたいです!
writer/editor:小田切 咲樹
この物件の建物情報
グランドメゾン西船橋
最上階ならではの特別仕様なんです。オーク材の無垢フローリングは、素足で歩くと心地よい温もりを感じられます。