中野区南台(中野富士見町駅)
塗り重ねるパレット
東急ドエルアルス中野南台
白やグレーの端正な内装は、これから始まる生活を自由に描くための余白。引き戸の開閉でリビングを広げたり、個室を設けたり。家族の成長や好みの変化を、色を塗り重ねるように楽しめる住まいです。可変性のある空間が、きっと自分たちだけの暮らしの色を作り出してくれるはず。
現在ご紹介可能な物件は、中古・リノベーション住宅のオンラインマーケット「cowcamo(カウカモ) 」よりご覧いただけます。
西新宿
現在販売中のおすすめ中古マンション
cowcamo
さっそく LDKへ

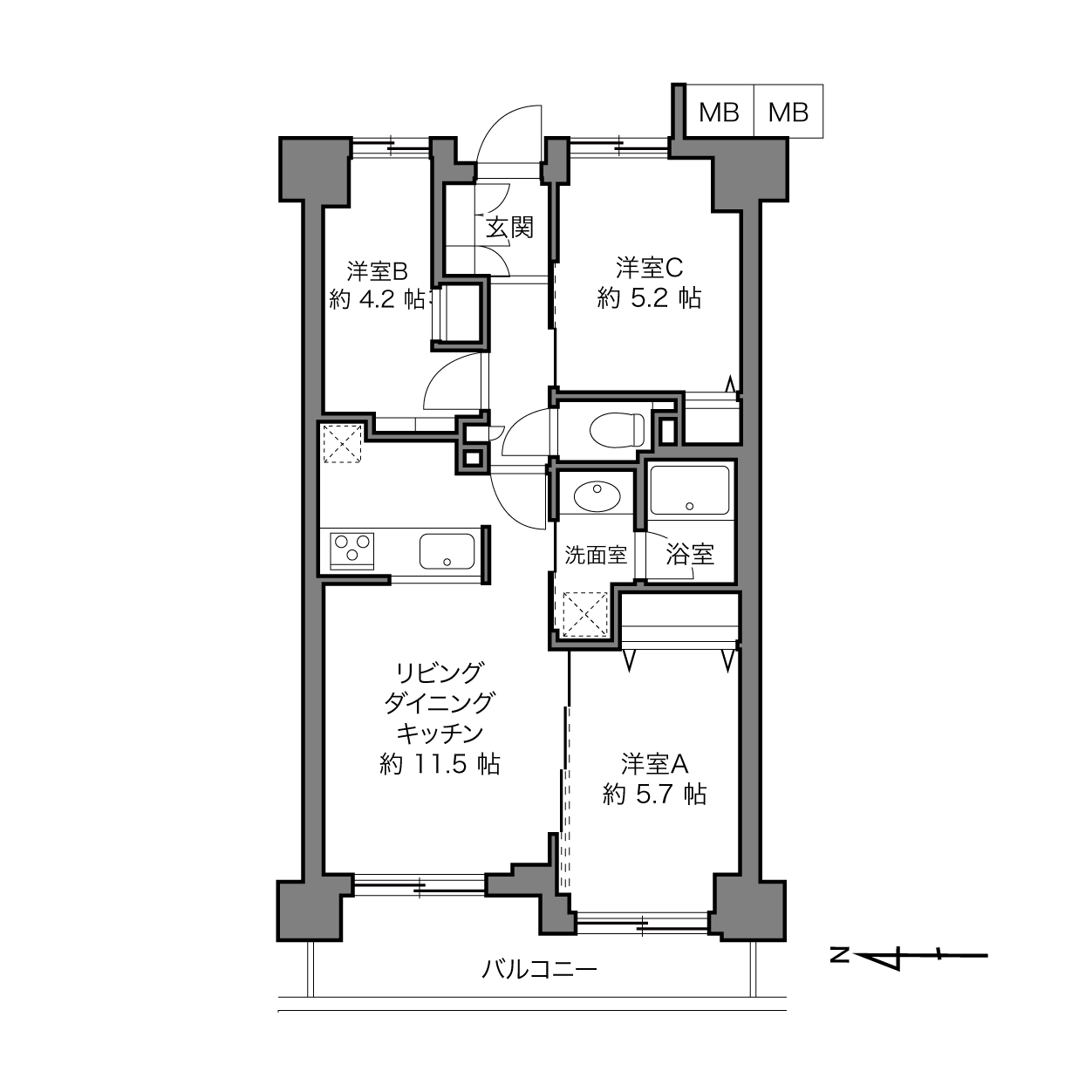
キッチンまわりの木パネルやグレーのアクセントクロスが印象的な、約11.5帖のLDK。床材には突板フローリングが採用されるので、素足で歩くと気持ちよさそう。
企画担当
長く暮らすことを考慮し、流行に左右されることのないシンプルな内装にします。
cowcamo
室内を彩るインテリアもジャンルを問わず選べそうですね♪

お隣の洋室Aとは3枚の引き戸で仕切られます。お子さまが小さいときは、引き戸を開放してプレイルームに。大きくなったら夫婦の寝室に。ライフスタイルに合わせて部屋数を変えられる、可変性のあるプランです。
企画担当
引き戸を開放すると、全体で17.2帖の広さになります。
バルコニーに 出てみましょう

西向きの眺望。正面には建物が位置しています。左右見渡すと眺望が抜ける向きもあるので、現地で確認してみてくださいね。
cowcamo
バルコニーには物干し金具が付いています。
いいとこ取りキッチン

実はいいとこ取りのセミクローズドキッチン。リビングダイニング(LD)に向いているので、家族とのコミュニケーションが生まれやすく、お料理のサーブもラクラク。それに加え、袖壁のおかげで、生活感の出やすいキッチンの手元まわりがLDから見えづらいというメリットも。
企画担当
キッチンには3口ガスコンロ・食洗機・浄水器を搭載します。
3つの洋室を ご紹介

上・LDKに隣接する洋室Aは約5.7帖。折れ戸2枚分のクローゼットを備えます。/左下・約4.2帖の洋室B。コンパクトですが、セミシングルサイズのベッドが1台置ける広さです。可動棚の収納のほか、画像には写っていませんが、折れ戸1枚分のクローゼットも設置されます。/右下・洋室Cは約5.2帖。こちらにも折れ戸1枚分の収納が設けられます。
シンプルな 水まわり

三面鏡付きのシンプルな洗面化粧台。ユニットバスの画像はありませんが、1216サイズで浴室乾燥機付きです。

トイレには吊り戸棚のほか、ニッチ収納も設けられます。
ルームツアー 終了

玄関収納はフロートタイプ。頻繁に履くシューズは、収納の足元に置けばサッと取り出せて便利◎
平成竣工マンション

左上・1996年竣工の、新耐震基準適合マンション。/右上・駐車場は2026年3月17日時点で空きあり(月額25,000〜30,000円)。全長5,050mm・全幅1,800mm・全高2,100mm・総重量1,800kgまでの車種が駐車可能です。最新の空き状況はお問い合わせください。/左下・マンションはオートロック付き。エントランスホールには、宅配ボックスが備わっています。/右・今回ご紹介した住戸前。
cowcamo
2021年2月に大規模修繕工事、2025年3月に専有部給水給湯追焚管全戸一括更新工事が行われています。それぞれ実施時に5,500万円・5,670万円の借入が発生しましたが、2030年12月・2035年7月に返済予定です。
街歩きへGO!

左上・遊具はもちろん、売店や体験学習センターも併設している「中野区立広町みらい公園」。(徒歩8分)/右上・徒歩9分の場所に位置する「Boulangerie Lebois(ブーランジェリー ルボワ)」。1番人気はフランス仕込みのクロワッサン! /左下・休日は、朝9時から営業しているカフェ「シャローム」でモーニングなんていかがでしょうか。(徒歩3分)/右下・揚げ物や精肉を販売している「MEAT SHOP&DELICA SATAKE(佐武精肉店)」。「方南町」駅からすぐの場所に位置するので、帰り道に美味しい匂いにつられて思わず寄ってしまいそう! (徒歩13分)
cowcamo
最寄り駅は、東京メトロ丸の内線「中野富士見町」駅(徒歩11分)ですが、始発駅の「方南町」駅まで徒歩12分の距離なので、仕事やお出かけの際は「方南町」駅を利用するのもおすすめです。また、徒歩3分の「南台図書館」停留所には「新宿」駅行きのバス停が発着しているので、目的地に合わせて交通機関を使い分けができるところが◎
カウカモ編集部より
空間を伸びやかに広げたり、時には静かな個室として整えたり。ご家族の成長に合わせた丁寧な色選びが、きっと暮らしの “色” をきれいに発色させるはず。どんな家具も受け止めるニュートラルな内装が、住まい手のセンスを優しく引き立ててくれるでしょう。
お料理に集中しながらも家族の気配を感じられるキッチンや、素足が喜ぶ床の質感。そんな日々の何気ない幸せを大切に味わいながら、ゆっくりと時間をかけて、あなたたちだけの “暮らしの色” をこの場所に塗り重ねていってください。
writer:耒住野 希夏/editor:秋月 胤斗
この物件の建物情報
東急ドエルアルス中野南台
今回は、カウカモプロデュースの物件をCGでご紹介します。 住戸内は絶賛リノベーション工事中ですが、現況の内見は可能なので気になった方はお気軽にお問い合わせください。