八王子市明神町(京王八王子駅)
セルフリノベの実験室
チサンマンション八王子
住まいの輪郭、光の抜け方、素材の癖。ひとつずつ読み解きながら、一級建築士がセルフリノベで育てたワンルーム。素材とアイデアが個性豊かに響き合い、住むほどに表情を変える、暮らしの実験室へようこそ。
現在ご紹介可能な物件は、中古・リノベーション住宅のオンラインマーケット「cowcamo(カウカモ) 」よりご覧いただけます。
売主さまのご紹介

Kさまファミリー
一級建築士であり、施主と一緒に家づくりを行う設計施工集団のメンバーとしても活動するKさま。こちらは独身時代にDIYでリノベーションした住まいで、現在は3人+愛犬で暮らしを送っています。この度はお子さまの誕生をきっかけに、戸建てへのお引越しのため売却されることになりました。
cowcamo
こんにちは カウカモです

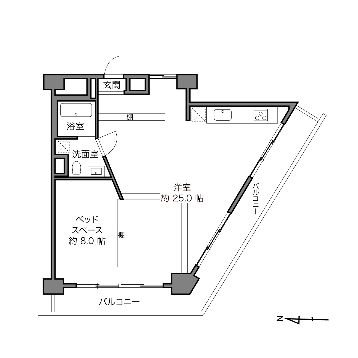
まずは約25帖の大空間から。住戸の形と窓の大きさを存分に生かし、自然光で満たされています。
売主さま
西から南にかけて広がる開口部を活かすように、間取りは大きなワンルームにしました。

壁は白いペンキを薄めて塗装したことで、木目を残したラフな仕上がりになっています。

水まわり以外にはあえて建具を設けず、オリジナルの木製棚を設置することで、ゆるく空間をゾーニング。リビングスペースは、もともと和室だった部分の畳を外したことで、まわりから一段下がっています。
売主さま
リビングスペースの床は、200mm角にカットしたラワンの無垢材に墨汁を塗り、市松模様にデザインすることで変化をつけました。
職人の手仕事が集結した オリジナルキッチン

ステンレス製の天板をデザインのベースに、MDF(中密度繊維板)と特注品の鉄柱を組み合わせて造ったキッチン。天板下の引き出しは、古道具屋さんで見つけた書類ケースを設置したのだそう。
売主さま
キッチンの壁は友人の左官職人さんに依頼し、レザーのような風合いのモルタルを特別に調合してもらって仕上げました。カウンターや棚板を支えている鉄柱は、1週間ほど外に置いておくことで、あえて錆びさせて素材感を出しています。
どうしても暮らしを送る中で付いてしまった油はねがあるので、気になる場合は、塗り直したりタイルを貼ったりしていただくのがいいかと思います。
バルコニーへ

南側の眺望。眼下には紅葉した木々と、向かいの敷地にある保育園の園庭が見えます。

バルコニーは、かなりワイドな造り。椅子などを置けそうな余白があります。
売主さま
日中は園児たちの元気な声が聞こえてきます。また、お祭りの時期には近くの神社のお祭りや盆踊りの音が届くなど、季節の移ろいも感じられる楽しい環境ですよ。
室内に戻って

こちらの木製棚は、薄く塗装した板材を両面から交互に打ち付け、間に棚板を渡して造ったのだとか。本やインテリアで視線が遮られていますが、裏にはベッドスペースが位置します。
売主さま
本などを置けば置くほど、“目隠し” になる仕組みです。縦軸の板を交互にしているので、両側から物を置けて便利ですよ。
cowcamo
もし猫ちゃんと暮らしを送る場合には、キャットウォークのようにも使えそうですね!
朝日が心地よさそうな ベッドスペース

ベッドスペースは東向き。クイーンサイズベッドを置ける広さです。

収納はオープンタイプ。現在、仕切りとして使っている板とラックは撤去可能です。
東側のバルコニー

視界いっぱいに緑を望む、穏やかな眺望。物干し金具はこちら側に備わっています。
cowcamo
左手でカクッと折れており、南側のバルコニーまでつながっていますよ。
水まわり

左・洗面室の壁はMDFを採用。床はモルタル仕上げです。/右・TOTO製のハーフユニットのバスルーム。壁〜天井の全体に、正方形のタイルを一枚一枚あしらっています。
売主さま
通常は天井までタイルを貼ることはないのですが、実験を兼ねてトライしました。なかなか見かけない浴室だと思います。
cowcamo
広がりを優先したため、浴室には扉を設けていないそう。このあたりは、内見のときのチェックポイントにしてみてくださいね。
玄関まわり

大きなブラケットライトを設置した玄関スペース。玄関扉は内側を塗り替えておらず、既存のグリーンを活かしています。
住まいへの愛を 詰め込んだディテール

左・あえて半分だけ剥き出しにして、白い石膏系接着剤の跡を見せた梁(はり)。/右上・解体したときに壁から出てきた電気スイッチの配線管は、そのままぶら下げてユニークなアクセントに。/右下・ダイニングスペース〜キッチンの床は幅30cm近くある無垢のパイン材。理想の色に近づけるため、外部用の自然塗料を塗り太陽光に晒すことで仕上げたそう。
最寄り駅から徒歩2分 背の高いマンション

1974年に竣工した、地上11階建てのマンション。4〜11階の各フロアの共用廊下には無償で利用できるトランクルームがあります。なお、修繕積立金は約1,700万ほどの赤字で、約2,400万ほどの借入金があります(2025年4月時点)。詳しい管理面が気になる方は、エージェントまでお問い合わせください。
cowcamo
こちらのマンションはペット可です(細則あり)。愛犬との散歩コースには、道幅の広い浅川の河川敷がおすすめですよ。
売主さまおすすめの 八王子グルメたち

左上・野菜を中心としたメニューとともに、美味しいワインをいただけるビストロ「grege(グレージュ)」。ランチタイムも営業。(徒歩5分)/右上・「Brasserie BASEL(ブラッスリー・バーゼル)」は、創業50年の地元で愛される洋菓子の老舗。テラス席はペット同伴でも利用可能です。(徒歩5分)/左下・居心地の良い大衆酒場も。「シムラホール」は、豊洲で仕入れた鮮魚を使った逸品が自慢です。取材時は開店前でした。(徒歩5分)/右下・口コミサイトで高評価を獲得するラーメン店「麺笑 巧真」は徒歩1分。行列必至なので、ご近所特権を享受しましょう。
売主さま
最寄りの京王線「京王八王子」駅のほかにも、JR中央線が乗り入れる「八王子」駅(徒歩7分)も利用可能で、新宿駅まで乗り換えなしでアクセスできます。駅直結の商業ビルや飲食店が充実していて、買い物や外食の満足度が高い環境ですよ。
cowcamo
周辺を含め、素敵な住まいでした! なお、こちらの物件は売主さまが居住中のため、内見には事前の調整が必要です。
カウカモ編集部より
実は、カウカモとは縁が深い売主さま。筆者も過去にこちらの住まいに遊びに行かせてもらったことがあるのですが、足を踏み入れた瞬間の開放感に驚きながら、心地のいい時間を過ごした記憶があります。
駅からの近さ、そして日当たりと眺望に惹かれて物件を購入し、実際に暮らし始めるまでにコツコツとセルフリノベーションで創り上げた住まい。一級建築士として、数々の設計や自身で施工するプロジェクトを手がける売主さまだからこそ、“家づくりを実験する場” として楽しみながらDIYした空間には、アイデアや工夫がそこかしこに散りばめられています。
特に、キッチンは最もコストをかけた場所だそう。左官職人さん・鉄工職人さん・キッチン家具屋さんの信頼できるプロに協力を仰いで完成したキッチンは、広くて使いやすく、料理をする頻度が上がってメニューのレパートリーも増えたと言います。
こちらの住まいでコロナ禍や育休などを経験した売主さまによると、家にいる時間をストレスなく過ごせたそう。時間とともに変化する素材の表情も楽しみながら、暮らしの幅が広がりそうな住まいでした。
writer:軽部 優海/editor:秋月 胤斗
この物件の建物情報
チサンマンション八王子
プランニングから解体、施工までをほとんどひとりで実施した、セルフリノベの実験室。その内装の工夫やこだわりにご注目を!