品川区西五反田(不動前駅)
陽だまりを連れて帰ろう
マンション不動前
電車で、徒歩で、自転車で。この街なら、忙しい毎日も風を切るように軽快に乗りこなせる。「不動前」にあるマンション、光と風が通り抜ける静かな一室。今日もここに、陽だまりを連れて帰ろう。
現在ご紹介可能な物件は、中古・リノベーション住宅のオンラインマーケット「cowcamo(カウカモ) 」よりご覧いただけます。
東横線・目黒線
現在販売中のおすすめ中古マンション
売主さまのご紹介

売主さま
2021年に購入したリノベーション済み物件で、ご夫婦ふたり暮らし。趣味のロードバイクを楽しむため、都心から離れたエリアへのお引越しを検討したことをきっかけに、売却されることになりました。
便利で暮らしやすい “不動前エリア”

最寄り駅は東急目黒線「不動前」(左上・徒歩5分)。駅前にスーパー「東急ストア 不動前店」があるほかにも、「オオゼキ 目黒不動前店」(右上・徒歩4分)を便利に利用できます。また、周辺には「目黒川」(左下)や「林試の森公園」(右下・徒歩7分)などがあり、自然を身近に感じられる環境です。
売主さま
cowcamo
都内を移動しやすい交通アクセス、大きな魅力ですね! こちらのマンションはペット可(細則あり)なので、川沿いや公園など散歩コースが充実していることもうれしいポイントです。
こんにちは カウカモです

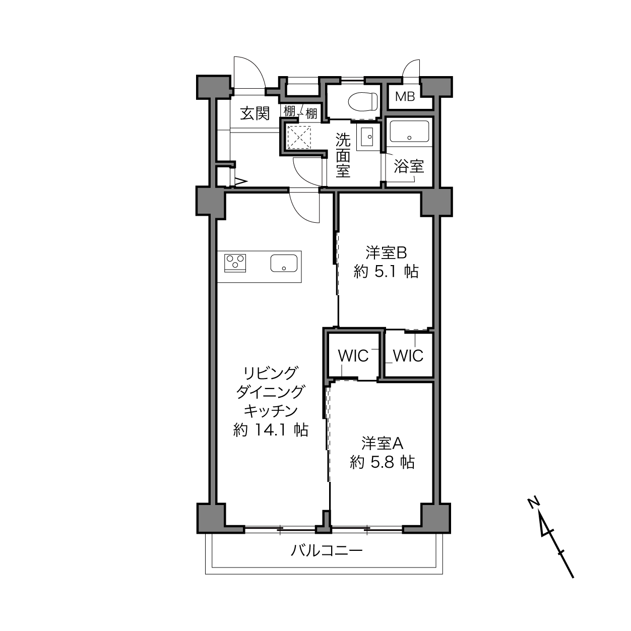
まずは広さ約14.1帖のLDKから。南西向きのバルコニーに面した窓から、自然光がたっぷり入ります。元々は全体的に白の石膏ボードだった壁は、DIYで一部のみニュアンスのあるグレーにペイントすることでアクセントにしたそう。

LDK全景。引き戸の開閉によって、リビングダイニングを拡張することもできる間取りです。
売主さま
日当たりがいいおかげで冬場でも暖かく感じます。夜は窓を開けたままでも、静かに寝られますよ。
キッチンをチェック

キッチンは3口コンロタイプで食洗機付き。背面には、冷蔵庫と並べて棚を置ける余白があります。また、アイアンと棚板を組み合わせたオープン棚を設置済み。
売主さま
空間と馴染むデザインになるように、キッチンには木材とシートを貼りました。購入当時は『収納スペースが少し狭いかな?』と思っていたのですが、収納家具を追加してアレンジしたら、使いやすくなりました。
バルコニーへ

南西側の眺望。正面には戸建てや低層の建物が多く、空が大きく見えます。

バルコニーは椅子などを置ける奥行きがあります。物干し金具が備わっていないので、外干し派の場合は市販品でアレンジしてみてくださいね。
室内に戻って 約5.8帖の洋室A

クイーンサイズのベッドを置いても、家具や植物を置けるゆとりがあります。

収納はウォークインクローゼット(WIC)タイプで、衣類がたっぷりと収まります。
約5.1帖の洋室B

洋室Bは、現在はワークスペース兼ロードバイクの収納場所として使用中。こちらもWIC付きです。
売主さま
各室にひとつずつWICがあるので、夫婦で収納を分けられて便利です。
水まわり

左・シンプルな洗面台。/中央・浴室乾燥機付きのユニットバス。/右・トイレは洗面室からアクセスする間取りです。
売主さま
写っていませんが、洗面台の対面にはニッチ収納付きの洗濯機置き場があります。
最後に 玄関まわり

玄関土間はゆとりある造り。シューズボックス以外にも収納が設けられています。
山手通りから奥に入った 新耐震基準適合マンション

1974年に竣工した、総戸数47戸、オートロック・宅配ボックス付きのマンション。2階のエントランスまでには十数段分の階段がありますが、1階からもアクセスが可能で階段を使わずにエレベーターまでアクセスできます。
cowcamo
耐震補強工事を実施済みで、新耐震基準に適合しており、住宅ローン減税などを利用できる物件です。マンション全体の修繕積立金の貯蓄は1.1億円以上と、優秀な数字ですよ。
売主さま
各フロアに24時間ゴミステーションがあって、とても便利です。オートロックと宅配ボックスは私たちが引っ越してきたあとに導入されたもので、メールボックスも更新されるなど、今後もメンテナンスを続けていこうとする管理組合の意志を感じます。
売主さまおすすめの 周辺スポット

左上・マンションから徒歩30秒(!)の「PIZZA CHECK(ピッツァチェック)」。中目黒のピザの名店「聖林館」出身のオーナーが営むピッツェリアで、売主さまによると『何度テイクアウトで利用したかわからない』とのこと。これは気になる!/右上・「THE ORDY BAKERY(ザ オーディー ベーカリー)」は、クロワッサンが絶品。朝8時からモーニング営業もしており、テラス席はペット同伴OKです。(徒歩8分)/左下・「東印度咖理商会」は、店頭販売のカレーおにぎりが隠れ名物。もちろん店内でいただけるカレーも絶品で、なんとルゥのおかわりが自由だそう。(徒歩5分)/右下・ランチタイムの行列をのぞいてみると、蕎麦屋「川せみ」が。本格的な手打ちそばとお酒を楽しめるお店です。(徒歩6分)
売主さま
おしゃれなカフェから地元⺠に愛される個人店まで揃っていて、昼も夜も外食が楽しいです。もしサウナや銭湯がお好きでしたら、自転車で10分ほど走った所にある戸越銀座の「富士見湯」(徒歩で約29分)もおすすめですよ!
カウカモ編集部より
売主さまがこちらの物件を購入した決め手は、「日当たり」と「開放感のある眺望」と「管理体制が整った建物であること」。現地に足を運んでみれば、そういった “変えられない部分” で賢く選ばれたことが、きっとよくわかると思います。
最寄りの「不動前」は街としての楽しさがあるだけでなく、主要駅にアクセスしやすい利便性もあって人気の駅。たとえばお仕事の飲み会などで夜遅くなってしまっても、タクシーで気軽に帰れる距離感だそうですよ。
シンプルな空間に、DIYでひと癖を加えた内装デザインも魅力的。次にこちらの住まいを選ぶ方にも、自分たちらしい暮らしがそっと馴染みますように。
writer:軽部 優海/editor:小田切 咲樹
この物件の建物情報
マンション不動前
複数路線が乗り入れる「目黒」(徒歩13分)や「五反田」(徒歩14分)、商店街が楽しい「武蔵小山」(徒歩17分)も徒歩圏内です。また、山手通り沿いのバス停から渋谷駅方面行きのバスが頻繁に発着していて、とにかくどこへ行くにも便利ですよ。