国分寺市泉町(西国分寺駅)
にしこく家族日和
西国分寺史跡通り2号棟
ようこそ “にしこく” へ。新耐震基準のビッグコミュニティに、グリーンを望む約82㎡の3LDK。身の丈に合った、やさしい家族時間が始まります。
現在ご紹介可能な物件は、中古・リノベーション住宅のオンラインマーケット「cowcamo(カウカモ) 」よりご覧いただけます。
中央線多摩
現在販売中のおすすめ中古マンション
cowcamo
徒歩圏内の オアシス

上・外観がスタイリッシュな「都立多摩図書館」。子ども向けスペースに加えカフェスペースもあるので、お出かけの定番スポットになりそうですね!(徒歩8分)/左下・図書館の並びにある「国分寺市役所」。何かと便利ですね。(徒歩6分)/右下・自然に触れたくなったら図書館と市役所の裏手に広がる「武蔵国分寺公園」へ。一周500mの円形芝生広場を中心に、水と緑が楽しめるゆったりした公園です。(徒歩7分)
cowcamo
子連れでも1日楽しめそうな図書館+広大な公園! これは住みやすそう〜!!
新耐震基準の どっしり系マンション

1983年竣工、全10棟総戸数299戸のビッグコミュニティ。今回ご紹介する棟は1982年11月に建築確認を取得しているため、新耐震基準に適合しています◎
cowcamo
総戸数が多いため、共益費の徴収額が抑えられているのがうれしいポイント。A地区、B地区合わせた修繕積立金の総額は8.4億円超あります。今後の管理にも安心感を持てそうです。
お邪魔しまーす!

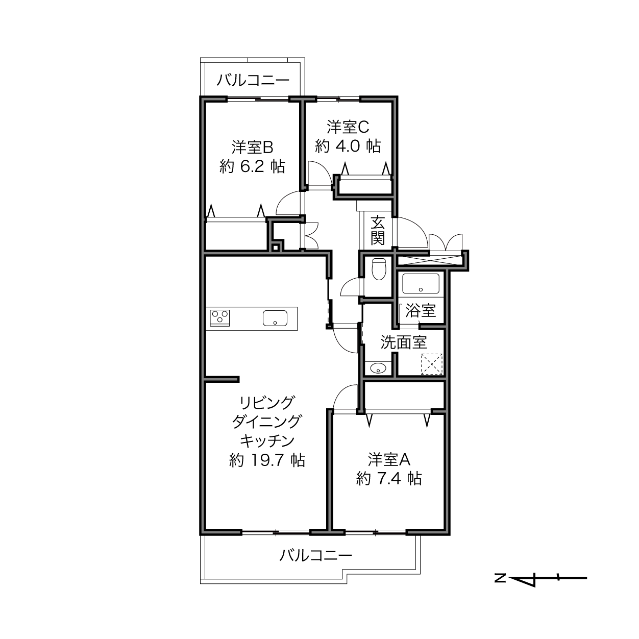
西向きのLDKは19.7帖。
cowcamo
地震に強いと一般的に言われている壁式構造のマンションのため、部分的に躯体壁がありますよ。

振り返ってもう1枚。ややくすんだ木目調のフローリングとホワイトで統一され、どんなインテリアも馴染みやすそうな内装です。
対面キッチンを チェック

左・腰壁はキッチン本体より少し立ち上がっているため、散らかりやすい手元が見えづらくGOOD。/右・食洗機と3口コンロが備わったキッチン。

キッチン前からLDを見た様子。窓から見えるグリーンが目に優しい。左手の扉から洋室Aにアクセスします。
グリーンなバルコニー

1階に所在する住戸ですが、敷地内にグリーンがしっかりと植えられており、外からの視線を優しく遮ってくれます。

バルコニーは西向き。リビングと洋室Aに面した、ワイドサイズです!
リビングのお隣の 洋室A

7.4帖と最も広いサイズの洋室A。窓からは敷地内の植栽が見えます。
洋室Bと洋室C

上・約6.2帖の洋室B。奥行きのしっかりとある収納とコンパクトなバルコニーが付いています。/下・約4帖の洋室C。こちらにも収納が備わっていますよ。
cowcamo
それぞれ窓は東向き。朝日と共に気持ちよく目覚めることができそうですね◎

洋室Bのバルコニーからの眺望。敷地内の駐車場に面しますが、1.5階くらいの高さのため、視線はそこまで気になることはなさそうです。

コンパクトなバルコニー。敷地内の植栽が豊かですね。
水まわりと玄関

左・3面鏡が備わった洗面台。/中央・1014サイズとコンパクトなユニットバス。/右・シンプルなトイレ。

左・廊下の建具はホワイトで統一されています。/右・玄関の正面にある収納扉を開けると、しっかりしたサイズの収納が。
cowcamo
収納の上部にはハンガーパイプも備わっています! 冬場は帰宅後すぐにコートかけられて便利そう。

玄関にはトールサイズの下足入れがありますよ。お邪魔しました〜!
共用部のご紹介

左上・エントランスから住戸までには数段の階段があります。階段を登って右側に……。/左下・玄関扉があります。踊り場の左右に2住戸あるタイプですよ。/右・敷地内にはグリーンがたくさん。お散歩ができそうな小道が素敵です。
住みよい “にしこく”

左上・最寄りのJR中央線・武蔵野線が通る「西国分寺」駅。(徒歩5分)/右上・駅の改札前には地元野菜直売所「にしこくマルシェ しゅんかしゅんか」が!(徒歩5分)/左下・マンションが建つ南口には複合商業施設「西国分寺LEGA」。スーパー、書店、クリニック、ジムなどが入っています。(徒歩5分)/右下・マンションのすぐ近くにある「ぼんまり」。ランチには定食がいただけます。(徒歩3分)
cowcamo
「西国分寺」駅から「新宿」までの電車の乗車時間は快速で約35分。乗ってしまえばあっという間に都心まで行けますね!
カウカモ編集部より
和やかな街 “にしこく” 。駅からマンションまではフラットな道を徒歩5分ほど歩きます。マンションはビッグコミュニティで新耐震基準に適合。広さ約82㎡・3LDKの住戸は、1階所在ですが、グリーンを感じられる眺望です。
事前にお伝えしたい事項はふたつ。エントランスから住戸までは数段の階段があることと、浴室のサイズが1014とファミリーサイズの物件としてはコンパクトなこと。
多少確認していただきたい事項はありつつも、バランサー物件とはまさにこういった物件のこと。のびのびと和やかな生活が送れるイメージがしっかりと浮かびます!さらに、平置きの駐車場は月額10,000円で利用可能!
身の丈にあった穏やかな生活をここから始めてみませんか。
まだ出会えていないだけで、もっといい出会いがあるカモ?
記事の物件も素敵ですが、実はカウカモでは、未掲載物件を含む約1万件*の中から物件のご紹介が可能です。「もっと自分好みにリノベーションしたい」というご相談も、もちろん大歓迎。一歩踏み込んで、私たちと一緒に住まい探しを始めてみませんか?
*2024年における、東京都23区、首都圏都市部における、35平米・2500万円以上の物件のご紹介可能な平均総数
writer/editor:小田切 咲樹
この物件の建物情報
西国分寺史跡通り2号棟
今回ご紹介するマンションは、平置き駐車場が月額10,000円で利用できる(12月26日時点で6台空き)、ファミリーフレンドリーな物件ですよ!