杉並区天沼(荻窪駅)
荻窪家族日和
荻窪ハイツ
荻窪駅から徒歩5分。窓の向こうに空が広がる、日当たりと風通しに恵まれた4LDK。それぞれの時間を過ごしながら、気付けばみんながリビングに集まっている。そんな家族の穏やかな日々を、ゆとりある間取りが包み込みます。
現在ご紹介可能な物件は、中古・リノベーション住宅のオンラインマーケット「cowcamo(カウカモ) 」よりご覧いただけます。
中央線
現在販売中のおすすめ中古マンション
cowcamo
中央線の人気駅 「荻窪」が暮らしの舞台

今回ご紹介する物件の最寄り駅は「荻窪」(左上・徒歩5分)。駅前にはファミリーで楽しめるスーパー銭湯「東京荻窪天然温泉 なごみの湯」(右上・徒歩4分)や、「荻窪駅前商店街」(左下・徒歩4分)をはじめとする複数の商店街があり、暮らしを送りやすい街として人気です。「天沼弁天池公園」(右下・徒歩5分)には、緑と池が美しい日本庭園と遊具を備えた広場があり、お子さま連れで賑わっていますよ。
お邪魔します

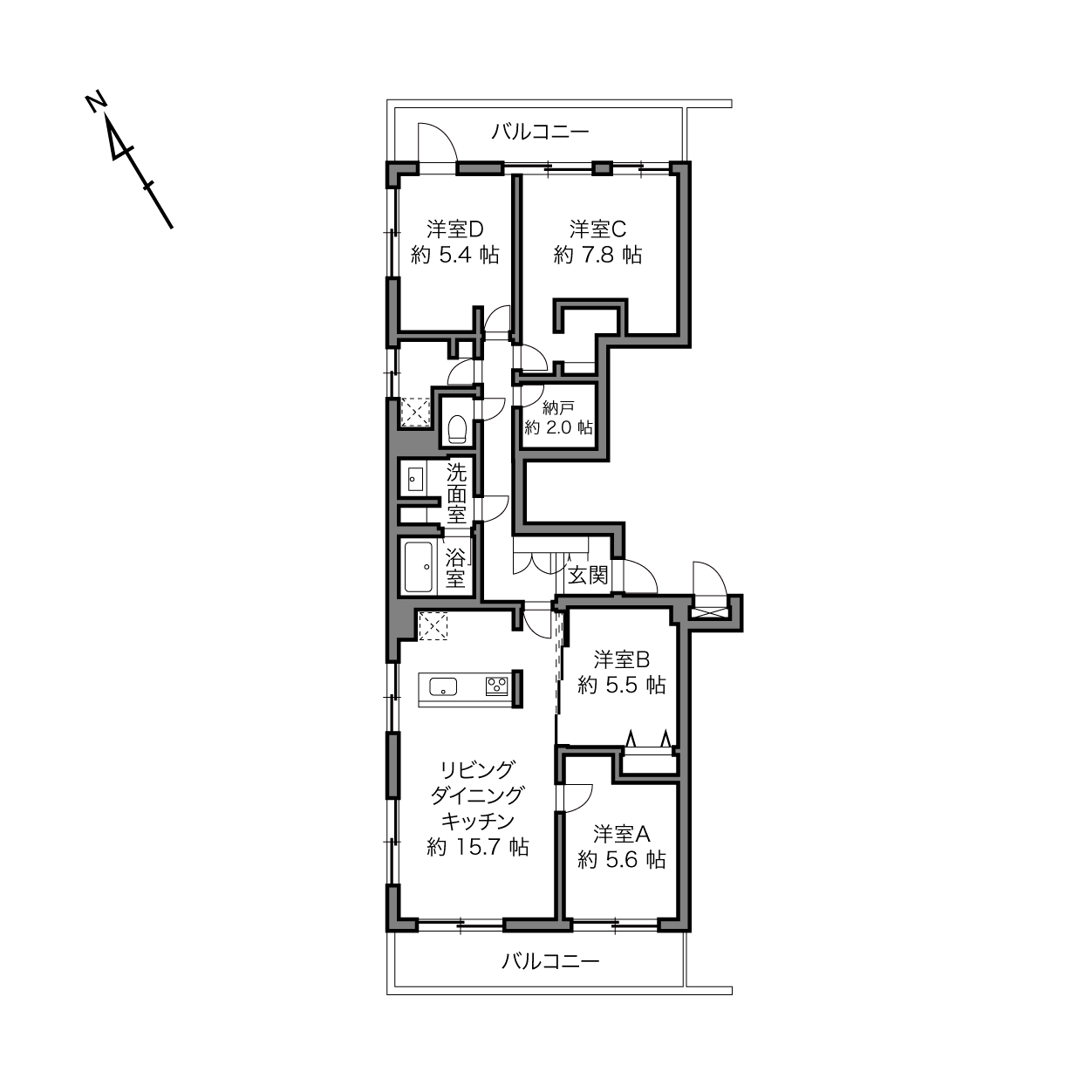
まずは玄関まわりから。上がって左手にLDKが位置し、右手に廊下が続く間取りです。
LDKへ

LDKは南西と北西の二面採光。窓面が大きく、窓を塞ぐような建物もないので開放的です!

バルコニーの窓を背にしたカット。LDKには、後ほどご紹介する洋室A・洋室Bが隣接します。
ぐるりと回遊できる アイランドキッチン

キッチンは3口コンロタイプで食洗機付き。背面には、冷蔵庫と並べて食器棚を置ける余白を確保しています。
cowcamo
調理中も窓の外が見えて、気分が明るくなりそうですね〜!
バルコニーへ

吊り金具が備わったバルコニー。

正面の眺望。建物が密集するエリアですが、向き合う窓はなくプライバシーを守りやすそうです。
室内に戻って 洋室A・洋室B

上・約5.6帖の洋室A。オープンタイプの収納付きです。/下・約5.5帖の洋室B。こちらにはコンパクトな収納が設置されています。
cowcamo
各洋室の特徴や暮らし方にあわせて、使い方をアレンジしてみてくださいね!
廊下へ

左・廊下には、残りの洋室や水まわりの扉が並びます。/右・そして納戸にもご注目! 約2帖もの広さがあり、季節家電やアウトドアのギアなど大型アイテムも余裕を持って収納できます。
cowcamo
内部には電源も備わっているので、掃除機のステーションとしても便利に使えそう。
約7.8帖の洋室C

左・4つの洋室のうち、最も広い洋室C。北東向きのバルコニーに面しています。枕棚とハンガーパイプのほかにも……?/右・入り口付近に、セミクローズドなウォークインクローゼット(WIC)が。
約5.4帖の洋室D

洋室Dは北東と北西南西の二面採光。

収納はオープンタイプです。
北西側のバルコニー

北西側は、左右に抜けのある眺望。椅子などを置いてリラックススペースにしても◎
水まわりを拝見

左・洗面台の横には、タオルなどを収納しやすそうな可動棚(6段分)を設置済み。/右・浴室乾燥機・追焚き機能付きのユニットバス。

左・トイレには廊下からアクセスする間取りです。/右・洗濯機置き場は、約2帖のサニタリールーム内に。開閉可能な窓付きで、家事室のように使えます。
レトロな味わいの ブルータイル・マンション

1971年に竣工した、地上7階建てのマンション。ご紹介した住戸は4階に所在します。
cowcamo
こちらのマンションは、区分所有者が属する管理組合によって建物管理が行われる「自主管理」方式が採用されています。直近の大規模修繕工事は2019年に実施済みですよ。
売主さま
2025年3月末時点で、敷地内の駐車場(月額20,000円〜)と自転車置き場(無償/1世帯あたり2台まで)にはいずれも空きがあります。最新状況はお問い合わせくださいね。
カウカモ編集部より
最寄りは「荻窪」駅。JR中央・総武線の快速の停車駅で、東京メトロ丸の内線も乗り入れる、どこへ行くにも便利な駅です。さらに、駅直結の商業施設には24時間営業のスーパーのほか、レストランや食品販売店も数多く入っていて、駅前には飲食店も充実。お出かけ好きにも、近所ですべてを完結させたい派にもうれしいエリアですよ!
ご紹介した物件は、数少ない「4LDK」の間取り。それでも細切れの空間づくりではなく、LDKを含めて各居室にちょうどいい広さが割り振られていて、さらには大きな納戸やサニタリースペースまであります。
リビングダイニングの窓から空が大きく見えるのは、想像以上の心地よさ。日当たりと風通しがいいこちらの住まい、部屋数をしっかり確保してゆったり暮らしを送りたいファミリーにおすすめです!
writer:軽部 優海/editor:秋月 胤斗
こちらの物件は、住戸の両面にバルコニーが備わった三方角住戸。専有面積約88㎡を4LDKにした、ファミリーサイズの間取りです。収納豊富で、持ち物が多いご家族でもきっと満足していただけると思いますよ!