杉並区西荻南(西荻窪駅)
西荻、好きが滲む部屋
西荻ニュースカイマンション
本屋、喫茶店、古道具、映画。日々の気分で選ぶ寄り道が、暮らしをそっと彩る。おうち時間に “好き” が静かに積もっていく西荻の住まい。南西向き、専有面積約48㎡の広さがちょうどよく暮らしにフィットしてくれるはず。
現在ご紹介可能な物件は、中古・リノベーション住宅のオンラインマーケット「cowcamo(カウカモ) 」よりご覧いただけます。
中央線
現在販売中のおすすめ中古マンション
売主さまのご紹介
Aさま
2023年にカウカモがプロデュースした物件を購入されたAさま。
この度、より広いお部屋へ住み替えされるため、ご売却を決められました。
西荻ラバーには堪らない♡

上・駅南口でレトロな雰囲気を放っているのが「西荻南口仲通街」。アーケードの下に飲食店や雑貨店など個性的なお店がぎゅっと集まっています。(徒歩5分)/左下・最寄りは「西荻窪」駅。(徒歩6分)JR中央・総武線が利用でき、平日のみ運行の快速電車に乗れば「新宿」駅までは約14分です。/右下・24時間営業の駅直結のスーパー「西友 西荻窪店」。お仕事帰りのお買い物はここで決まりですね。(徒歩7分)
売主さま
お邪魔します!

左・玄関に入ると広めの土間と可動式のオープン収納がお出迎え。/右・廊下沿いの壁一面は有孔ボードが貼られており、フックをつけることで壁面収納として活用可能◎
おお!明るい!

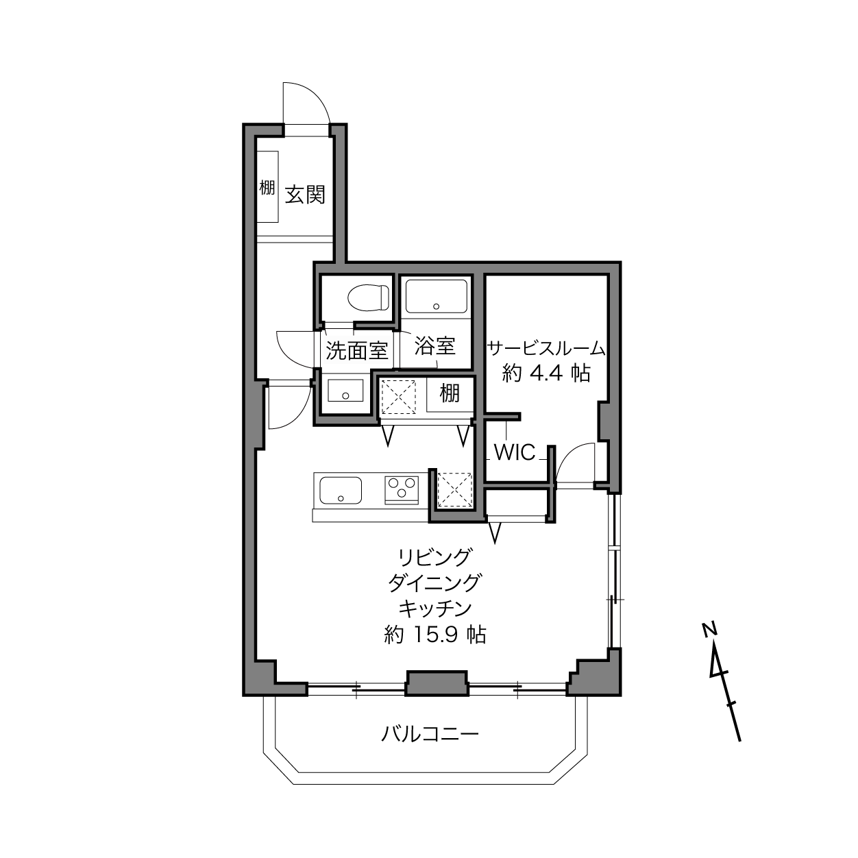
約15.9帖のLDK。南西と南東に窓があり、日差しがたっぷり届きます。

奥の壁は玄関の廊下と同じ有孔ボードが貼られた壁。売主さまのように、アートやお気に入りのアイテムを飾るとよさそう…!

リビング収納も備わっていて、書類やお掃除道具など生活感が出やすいものの収納に便利そう! キッチンはラワン材の木製パネルが貼られています。
売主さま
木製の有孔ボードの壁やキッチンの面材など、木の温もりが感じられ、インテリアとの相性がよいところがお気に入りのポイントです。
今日は何を作ろうか

左・キッチン背面にある収納の中の左側は洗濯機置き場、右側は可動式の棚になっています。/右・3口コンロ付きのキッチン。コンロの左手には冷蔵庫が収まるスペースが。
ワイドなLDK

L字型のLDKは、キッチン・ダイニング・リビングのゾーニングがしやすく、インテリアの配置もしやすそう♪
南西向きバルコニー

視界が開けた眺望。取材日はあいにく曇り空でしたが、晴れた日は気持ちがよさそう!

少し広めのバルコニー。物干し金具が備わっています。
約4.4帖のサービスルーム

扉の横にはウォークインクローゼット(WIC)が備わっていますよ。
水まわりを確認

左・円形の鏡が可愛い洗面台。/中央・浴室乾燥機付きの浴室。/右・シンプルなトイレ。
レトロ可愛いマンション

左上・1970年竣工、総戸数26戸のマンション。/右上・エントランスの入口はリニューアルされ清潔な印象。/左下・床のタイルやアールの梁がレトロ可愛いエントランス。/右下・モスグリーンの扉がアクセントのエレベーター付きです。
cowcamo
2023年に1階部分の耐震改修の工事が実施されています◎ 将来的に追加の耐震工事も検討されていますよ。
西荻っ子になりませんか

左上・売主さまもオススメという、「CAFEオーケストラ」。こだわりのスパイスカレーがいただけます。(徒歩3分)/右上・木~日曜日しか開店しないパンと焼き菓子のお店「ぐーちょきパン屋」。天然酵母から作られたシンプルなパンは朝食の定番になりそう。(徒歩3分)/左下・感動を覚えるビール体験ができるという「PERFECT BEER KITCHEN 西荻窪」。インスタグラムを眺めているだけで、ビールが飲みたくなりました。(徒歩5分)/右下・お部屋のインテリアは、カフェや店舗でも使われる古い家具と雑貨が並ぶ「ひぐらし古具店」で少しずつ揃えてみてはいかがでしょうか。(徒歩3分)
売主さま
ごはんのおかわりが無料の定食屋さん「西荻もがめ食堂」(徒歩6分)、古民家をリノベーションした隠れ家的なフレンチレストラン「レストランドゥイエ」(徒歩3分)もオススメです!
カウカモ編集部より
玄関とLDKの有孔ボードがアクセント。お気に入りのアイテムを飾ってスペースを “有効” 活用するのにぴったり。少しずつインテリアやアートを買い足して、自分だけの空間をつくりあげていきたいですね。
住戸は南東の角部屋で、明るい広めのLDKが魅力。“西荻” の街自体をサードプレイスにしながら、おうちではほっと落ち着ける空間へとなりそうですね。
街歩きついでに、内見にお越しくださいね。
writer/editor:小田切 咲樹
この物件の建物情報
西荻ニュースカイマンション
日常の買い物には困らない立地です。隣駅の「吉祥寺」まで気軽に通えることも良かったです!