港区三田(白金高輪駅)
くるり、くるり
シャンボール三田
キッチンとオープンシェルフを中心に、約22帖のLDKをくるり、くるりと回遊する住まい。大規模なヴィンテージマンションに身を委ね、ペットと共に街へ繰り出せば、行く先々によって楽しさがグラデーション状に広がります。“豊かな都心暮らし” って、きっとこういうことなんだろう。
現在ご紹介可能な物件は、中古・リノベーション住宅のオンラインマーケット「cowcamo(カウカモ) 」よりご覧いただけます。
麻布・広尾
現在販売中のおすすめ中古マンション
売主さまのご紹介
Tさま
フルリノベーション済みだったこちらの物件に一目惚れし、2017年にご購入。8年間楽しく暮らされてきましたが、ライフスタイルの変化によりご売却されることに。
カラーが異なる 都心の街に囲まれて

左上・最寄りは東京メトロ南北線・都営三田線「白金高輪」駅(徒歩9分)。駅直結の複合施設「白金アエルシティ」が洗練された街の顔を醸成しています。/右上・「三田」駅までは徒歩10分。ビジネス街と学生街が入り混じり、品がありつつ活気もあるエリアです。/左下・「赤羽橋」駅は徒歩18分。「芝公園」で東京タワーを眺めながらぼんやりするのもいいですね。/右下・「麻布十番」駅にも徒歩13分。老舗店が多く、スーパーも充実しています。
売主さま
cowcamo
歩く方面によって異なる街の魅力が享受できるので、暮らしていて飽きることがなさそうですね!
ご紹介するマンションでは犬猫2匹まで飼育できるので(細則あり)、同伴可能な飲食店を開拓する楽しさもありそうです。
大規模ヴィンテージ

大手ゼネコン・清水建設により施工された、1978年築、総戸数327戸のビッグコミュニティ。門扉をくぐると立派な植栽に囲まれた外観が見えてきます。エントランス横には羽ばたく鳥のウォールアート。
売主さま
マンションに息づくコミュニティが素晴らしく、居住者の方は気持ちのいい方ばかりです。季節によって、納涼祭やクリスマスイベントなどの催し物も行われていますよ。

共用ロビーは吹き抜けになっており、中庭の緑を望めます。3基あるエレベーターに乗り込み、住戸のある6階へ。
cowcamo
過去の大規模修繕工事は、2000年、2012年と適切な頻度で実施されていますよ。直近の修繕履歴が気になる方は、エージェントまでお問い合わせください。
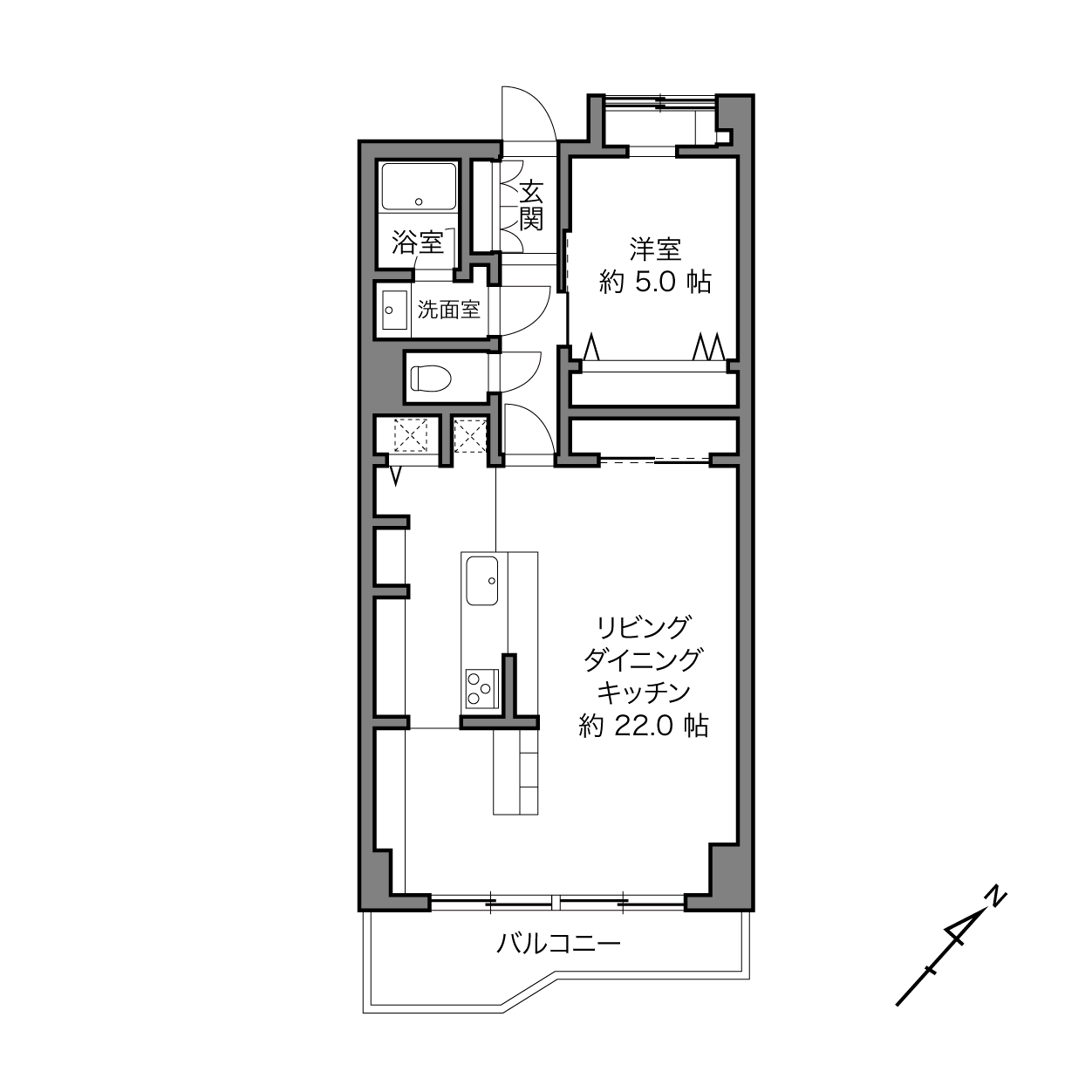
60㎡弱の1LDK お邪魔します!

左・共用廊下前の吹き抜けに面した玄関。玄関ドアとサッシは2018年に更新済みです。/右・奥行きのある土間に、扉8枚分の下足入れ。まずは正面のガラス戸を開け、LDKを拝見いたしましょう。
約22帖 南東向きのLDK

ひ、広い! 内装は木・モルタル色・白の組み合わせで、さまざまなインテリアとも相性がよさそう。
売主さま
ユニセックスな内装が気に入っています。生活動線が考えられていて、デザインと機能性のバランスのよさに心を鷲掴みにされました。
フォトジェニック!

アイキャッチにもなっているキッチンカウンターとオープンシェルフ。さながらお店のような雰囲気です。

左・対面式キッチンは油ハネが気になるコンロ前に壁を設けています。/右・背面にはタイル貼りの長いカウンター。売主さまのようにバスケットやキャスター付きキャビネットを活用するのがオススメ。

コンロ横のオープンシェルフ沿いにデスクを置けば、窓辺の明るいワークスペースの完成です◎
cowcamo
上の写真左手に見える白い折れ戸の中に洗濯機置き場があります。バルコニーまで一直線なので、洗う→干すの動線がスムーズ! 壁沿いのカウンターはアイロン台として使うのもよさそうです。

左・オープンシェルフの一部は引き出しになっていて機能的。/右・デスクの背面にも一枚板のカウンター。おふたりで暮らされる場合、背中合わせでお仕事することもできそうです。
cowcamo
オープンシェルフの横からリビングダイニング(LD)へ抜けられるようになっています。くるくる回遊できてとっても暮らしやすそう!
バルコニーへ

正面には別のマンションが建っていますが、共用廊下と向き合う形なので常時人目が気になることはなさそう。現在は鳥よけのネットがかけられています。

LDには引き戸2枚分の収納を完備。生活雑貨をしまえば、すっきりと過ごせますね。

この角度から見ると、LDがどれだけ広いか実感できますね……! 空いているスペースに大きなダイニングテーブルを置くこともできそうです。
cowcamo
おひとりやおふたりであればキッチンカウンターでささっと食事を済ませ、ご友人を招く時はダイニングテーブルでゆっくりなど、シーンに応じてスペースを使い分けられそう!
約5帖の洋室へ

玄関のお隣に位置し、共用廊下に面した二重サッシが付いています。クローゼットは、折れ戸3枚分と大容量。
cowcamo
グレーの壁の中が気になります! 上部が収納になっている点も見逃せません。
おこもり空間

コンセントや収納ニッチが設けられた掘りごたつ式の作業スペースが出現! 寝る前にここで映画を一本、ちょろっと読書、なんてのも素敵です。
cowcamo
おふたり暮らしでオンライン会議が重なった場合、ひとりはこちらに逃げることも可能。わずかな空間ではありますが、ここがあることによって暮らしの充実度がぐっと増しそうです!
最後に水まわりを拝見

左・カウンター+置き型ボウルの洗面化粧台。こちらもワゴン式収納を活用すると便利かもしれません。/右・スクエアの浴槽が設置されたシンプルなバスルーム。

左・トイレは廊下沿いに独立しています。/右・廊下まで木・モルタル色・白の組み合わせで統一。お邪魔しました!
充実の生活環境

左上・売主さまオススメの「beltz(ベルツ)」。ペットの同伴が可能で、ナチュールワインとイタリアンがいただけます。名物はチキンオーバーライス!(徒歩2分)/右上・こちらも売主さまオススメの「ZERO ONE CURRY(ゼロワンカレー) A.o.D」。南インドカレーの名店で、副菜や汁物を混ぜながら食す定食スタイルの “ミールス” が人気です。(徒歩7分)/左下・天然酵母のパンが購入できる「L’atelier cocco(ラトリエ コッコ)三田店」。朝8時から営業しています。(徒歩4分)/右下・なんとマンションのワンブロック先にスーパー「サミットストア 三田店」があってとっても便利(徒歩3分)。ちなみにホームセンター「DCM 三田店」も桜田通りを渡ったところにありますよ!(徒歩1分)
売主さま
周辺環境、マンション、住戸と、『もうちょっとこうだったらな……』と思うポイントが無いんです(笑)。総じて本当に暮らしやすいですよ!
カウカモ編集部より
まず周辺環境。行き先によって駅や路線を使い分けられるのはもちろん、目の前にはメジャー駅へ向かうバス停まで。自転車があれば更にフットワークが軽くなりそうです。また場所柄飲食店が充実しているのは想像に易いですが、スーパーやホームセンターまで近くにあるのが驚き!
カウカモでも度々取り上げてきた信頼感のあるマンションで、きちんとメンテナンスが繰り返されているのはもちろん、気持ちのいい住民の方ばかりというコミュニティも安心感がありますね。
住戸はまさに “デザイン×機能” のハイブリッド。インテリアによって大きく表情が変わりそうですし、生活動線を含め、使い勝手のいい間取りにアレンジされています。
都心暮らしをゆったりと楽しみたい方へ。どうぞご検討ください!
writer:伊勢谷 亜耶子/editor:秋月 胤斗
この物件の建物情報
シャンボール三田
マンション目の前に「三田五丁目」バス停があり、電車も含めれば渋谷・恵比寿・目黒・東京までいずれも一本。羽田空港や新幹線も近く、『ここより便利なところは無いのでは?』と思うほどに便利です。