港区麻布十番(麻布十番駅)
控えめで上質で
ウィン麻布十番ハラビル
賑わいのすぐそばで、あえて静かに暮らすという選択。「麻布十番」駅から徒歩3分、都心を感じながらも自分たちのリズムを保てる場所。大きな土間、抜け感を生むガラス建具、しっとりとした色調のLDK。美しいものを自然に選び取るふたりにこそ似合う、丁寧に整えられた2LDK。
現在ご紹介可能な物件は、中古・リノベーション住宅のオンラインマーケット「cowcamo(カウカモ) 」よりご覧いただけます。
麻布・広尾
現在販売中のおすすめ中古マンション
舞台は「麻布十番」 洗練された大人のふたり暮らし

ご紹介する物件は、最寄り駅の都営大江戸線「麻布十番」から徒歩4分。「六本木ヒルズ」(徒歩6分)や「東京ミッドタウン」(徒歩15分)などの大型商業施設が充実した、便利で楽しい周辺環境です。
cowcamo
新耐震基準に適合した 平成築のマンション

1995年に竣工した、総戸数45戸の建物。オートロック・宅配ボックス付きです。
カウカモがプロデュースした 一室をご紹介します

左・玄関扉を開けると、広々とした土間が。トールタイプの大きなシューズボックス付きです。/右・LDKは突き当たりに。建具は抜け感を生み出す、ガラス張り。
cowcamo
玄関まわりには、ベンチや姿見などを置ける余白があります。スーツケースなど、家の中に持ち込みたくないアイテムも置いておける広さですよ。
企画担当
さらに、廊下には扉付きの可動棚(4段分)を設置しています。
LDKへ

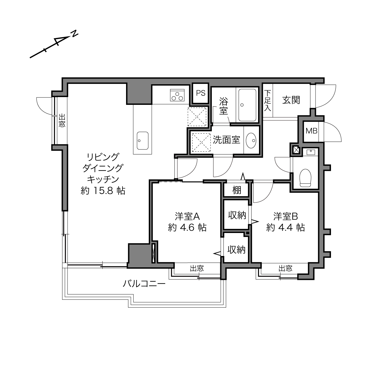
LDKの広さは約15.8帖。南西向きの出窓、コーナーサッシと、窓が多くあります。

キッチンに対して横長で、リビングとダイニングのスペースを設けやすい形。折り上げ天井には間接照明が仕込むほか、ダウンライト4灯を設けています。生活シーンに合わせて照明を使い分けることで、お好みの雰囲気に演出可能です。
企画担当
採光面が建物に囲まれているので、暗さを感じさせない内装を意識しました。天井とクロスにはグレージュカラーを採用し、キッチンまわりに部分的にライトグレーのタイルをあしらうことで、高級感と落ち着きを演出しています。
大型のキッチン

3口コンロ、食洗機付きのカウカモオリジナルキッチン。天板には天然水晶が主成分のフィオレストーンを採用しています。見た目が美しいだけでなく、傷も付きづらいというのが特徴です。
cowcamo
リビングダイニング全体に目が届き、家族との会話が弾みそうですね。
企画担当
ベースは明るいトーンの内装ですが、ポイントで黒を使うことによってメリハリを意識しています。
バルコニーへ

南東側の眺望。まわりには建物がありますが、距離が取れている印象です。
cowcamo
眺望に抜けはないものの、囲われていることで視線が届きづらい安心感があります。
ふたつの洋室をチェック

約4.6帖の洋室A。南東向きの出窓と収納付きです。

約4.5帖の洋室B。こちらも同様に南東向きの出窓と収納が付いています。
企画担当
いずれか一方をワークスペースとして使うなど、暮らし方にあわせて自由度高くアレンジできる間取りです。
水まわりへ

左・マットなブラックがカッコいい洗面台。キッチンと同じくカウカモオリジナル仕様です。/中央・浴室乾燥機を完備した、1317サイズのバスルーム。/右・トイレは廊下からアクセスする間取り。シンプルなタンクレスタイプで、手洗いカウンターを設けています。
カウカモ編集部より
“麻布十番アドレス” 、最寄り駅から徒歩4分。六本木ヒルズやミッドタウンといったランドマークに囲まれながら、落ち着いた空気を醸すエリアに佇むマンション。その一室を、「洗練された大人のふたり暮らし」をテーマにカウカモがプロデュースしました。
住戸は専有面積約60㎡を2LDKにした間取り。グレージュを基調としたやわらかな色調で統一し、居心地のいい空間に仕上げています。特筆すべきは、LDKのしっとりとした雰囲気と、空間全体に漂う静かな高級感。ガラス建具が生み出す抜け感も、どこかホテルライクな美しさです。
過剰に主張することなく、上質さをたたえる住まい。洗練されたエリアの雰囲気も纏いながら、心安らぐ日々をご堪能ください。
まだ出会えていないだけで、もっといい出会いがあるカモ?
記事の物件も素敵ですが、実はカウカモでは、未掲載物件を含む約1万件*の中から物件のご紹介が可能です。「もっと自分好みにリノベーションしたい」というご相談も、もちろん大歓迎。一歩踏み込んで、私たちと一緒に住まい探しを始めてみませんか?
*2024年における、東京都23区、首都圏都市部における、35平米・2500万円以上の物件のご紹介可能な平均総数
writer/ editor:秋月 胤斗
この物件の建物情報
ウィン麻布十番ハラビル
駅チカということもあり、マンションのまわりはダイニングバーやレストランがひしめくエリアです。ぜひ、お気に入りの一軒を見つけてみてくださいね。