クールな街で 暮らそう

暮らしの舞台は、「学芸大学」(駅徒歩11分)。2024年には某グローバルメディアにて、 “世界で最もクールな街” のひとつに選ばれています。東西に延びた商店街には、個性的なお店がずらり。楽しそうな暮らしのイメージが浮かんできます。

暮らしの舞台は、「学芸大学」(駅徒歩11分)。2024年には某グローバルメディアにて、 “世界で最もクールな街” のひとつに選ばれています。東西に延びた商店街には、個性的なお店がずらり。楽しそうな暮らしのイメージが浮かんできます。

総戸数150戸の 大規模マンション

目黒通り沿いに佇む、1970年竣工のマンション。エントランスは裏通りに面しているため、交通量は比較的落ち着いています。オートロック付きで、エレベータは3基配備。住戸は5階所在です。

目黒通り沿いに佇む、1970年竣工のマンション。エントランスは裏通りに面しているため、交通量は比較的落ち着いています。オートロック付きで、エレベータは3基配備。住戸は5階所在です。

cowcamo

こちらのマンションでは、犬猫の飼育が可能です(細則あり)。目黒通りに面した1階部分にはペット用品の専門店が入っており、トリミングサービスまで受けられますよ。

お邪魔します!

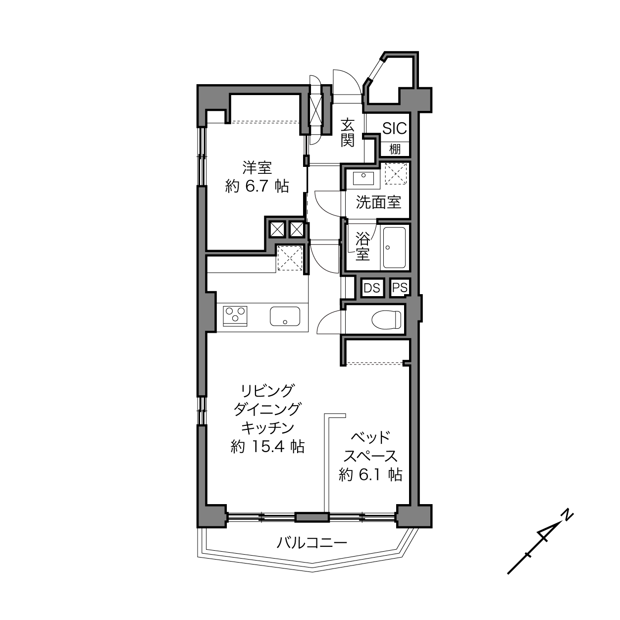
こちらは、約15.4帖のLDK。南東と南西向きの二面採光のため、自然光がたっぷりと入ってきます。もう少し奥に進んでみましょう。

こちらは、約15.4帖のLDK。南東と南西向きの二面採光のため、自然光がたっぷりと入ってきます。もう少し奥に進んでみましょう。

約6.1帖のベッドスペースが隣接していますが、腰壁で仕切られているため、空間には圧迫感がありません。むしろ天井が高く取られているおかげで、開放感があります。

約6.1帖のベッドスペースが隣接していますが、腰壁で仕切られているため、空間には圧迫感がありません。むしろ天井が高く取られているおかげで、開放感があります。

ベッドスペースからLDKを向いて一枚。うんうん、窓からの光を余すことなく感じられて気持ちいいですね。

ベッドスペースからLDKを向いて一枚。うんうん、窓からの光を余すことなく感じられて気持ちいいですね。

cowcamo

ベッドスペースは、現在ワークスペースとして利用されているよう。LDKで過ごすパートナーと、すぐにコミュニケーションを取れるのもいいですね。

別角度からのカット。右手のカーテンで隠れている箇所は、収納スペースです。

別角度からのカット。右手のカーテンで隠れている箇所は、収納スペースです。

床材は、温もりのある無垢フローリング。足触りがいいのはもちろん、経年変化による味わいも楽しめます。

床材は、温もりのある無垢フローリング。足触りがいいのはもちろん、経年変化による味わいも楽しめます。

バルコニーへ

おお、抜け感のある気持ちいい眺望! 目黒通りと田向通り、ふたつの道路に挟まれた立地ですが、二重サッシが採用されているため、車の走行音は軽減されていそうです。現地でもお確かめくださいね。

おお、抜け感のある気持ちいい眺望! 目黒通りと田向通り、ふたつの道路に挟まれた立地ですが、二重サッシが採用されているため、車の走行音は軽減されていそうです。現地でもお確かめくださいね。

バルコニーは奥行きがゆったりと確保されています。

バルコニーは奥行きがゆったりと確保されています。

室内に戻って

それでは正面のキッチンを見たあと、水まわりを拝見しましょう!

それでは正面のキッチンを見たあと、水まわりを拝見しましょう!

シンプルな システムキッチン

キッチンは、ウッディなデザイン。剥き出しのダクトがほんのりと無骨な印象をプラスしてくれます。

キッチンは、ウッディなデザイン。剥き出しのダクトがほんのりと無骨な印象をプラスしてくれます。

床はタイル貼りで清掃性に優れています。背面には豊富な収納スペースが用意されており、調理家電の置き場所にも困らなそう。

床はタイル貼りで清掃性に優れています。背面には豊富な収納スペースが用意されており、調理家電の置き場所にも困らなそう。

水まわりはこちら

<b>左・</b>キッチンのちょうど真隣に位置するトイレ。/<b>右上・</b>洗面台にあしらわれた青色のモザイクタイルが可愛らしい。木調の面材にはダークトーンが採用され、落ち着いた印象です。/<b>右下・</b>バスルームは白基調で清潔感のある雰囲気。浴室乾燥機が備わっています。

左・キッチンのちょうど真隣に位置するトイレ。/右上・洗面台にあしらわれた青色のモザイクタイルが可愛らしい。木調の面材にはダークトーンが採用され、落ち着いた印象です。/右下・バスルームは白基調で清潔感のある雰囲気。浴室乾燥機が備わっています。

お邪魔しました!

玄関はモルタル仕上げで、無機質なデザインに。可動棚のほか、正面に見える段差の奥にシューズインクローゼット(SIC)も用意されています。

玄関はモルタル仕上げで、無機質なデザインに。可動棚のほか、正面に見える段差の奥にシューズインクローゼット(SIC)も用意されています。

cowcamo

洗面室の向かいには、約6.7帖の洋室が。廊下からアクセスするためオンオフを切り替く、寝室にするのがよさそうです。

利便性もあって 公園もあって

<b>左上・</b>マンションのお隣にはある「イオンスタイル 碑文谷店」は、日常のお買い物の心強い味方。生鮮食料品はもちろん、ワインやお惣菜なども充実しています。(徒歩2分)/<b>右上・</b>そのケーキの美味しさに、遠方からも通うファンがいるという「Patisserie JUN UJITA(パティスリー ジュンウジタ)」。来客を迎える日、家族の記念日など特別な日にご購入ください!(徒歩6分)/<b>左下・</b>ヴィンテージからリプロダクションまで、幅広いラインナップが魅力の家具屋「Lloyd’s Antiques Egoist(ロイズ アンティークス エゴイスト)」。(徒歩6分)/<b>右下・</b>大きな池を緑が囲む「碑文谷公園」。ペットの散歩はもちろん、お子さまとの遊び場所にもぴったりです。(徒歩7分)

左上・マンションのお隣にはある「イオンスタイル 碑文谷店」は、日常のお買い物の心強い味方。生鮮食料品はもちろん、ワインやお惣菜なども充実しています。(徒歩2分)/右上・そのケーキの美味しさに、遠方からも通うファンがいるという「Patisserie JUN UJITA(パティスリー ジュンウジタ)」。来客を迎える日、家族の記念日など特別な日にご購入ください!(徒歩6分)/左下・ヴィンテージからリプロダクションまで、幅広いラインナップが魅力の家具屋「Lloyd’s Antiques Egoist(ロイズ アンティークス エゴイスト)」。(徒歩6分)/右下・大きな池を緑が囲む「碑文谷公園」。ペットの散歩はもちろん、お子さまとの遊び場所にもぴったりです。(徒歩7分)

cowcamo

カウカモ編集部より

LDKの開放感が損われない間取りに、リノベーションならではの強みが感じられます。ベッドスペースを腰壁でゆるく仕切ることによって、採光を余すことなく確保しているうえに、個室らしい使い勝手のよさも両立しているところがGOOD! 高い天井や無垢フローリングなど、ディテールのこだわりにも目が離せない住戸です。

そして、 “学大エリア” の賑わいが日常になりながら、隣に大型スーパーがある利便性まで併せ持っているのがニクい……! マンションは、2016年の玄関ドア交換工事や2021年の給排水管改修工事など、細やかなメンテナンスが重ねられており、大規模で安定感のある管理体制。楽しくて、暮らしやすい。そんな言葉がしっくりくる住まいです。

writer/ editor:秋月 胤斗