鎌倉市岩瀬(大船駅)
空と同化する
アスティオス鎌倉岩瀬
窓に広がる清々しい空、その開放感をシームレスに家とつなげる。LDKと洋室を隔てる扉を開け放ち、20帖超えの大空間をつくりだしたら、あとはソファに腰掛けて全力で脱力するだけ。目を閉じ、おおらかな空気に身を任せる。そうすればきっと空と同化することだってできる。
現在ご紹介可能な物件は、中古・リノベーション住宅のオンラインマーケット「cowcamo(カウカモ) 」よりご覧いただけます。
「鎌倉」の2駅となり

上・暮らしの舞台は「大船」(駅徒歩9分)。駅にはJR東海道線をはじめとする4路線が通っているほか、成田エクスプレスや踊り子といった特急電車や湘南モノレールも利用可能。「新宿」「東京」「品川」「横浜」などの主要駅まで1本でアクセスでき、交通利便性は良好です!/左下・駅前のショッピングモール「グランシップ」(徒歩8分)/右下・規模の大きなスーパー「イトーヨーカドー 大船店」(徒歩3分)
cowcamo
それでは住戸へ
cowcamo
今回の物件は、カウカモプロデュース! 外へとつながるような空間の広がりを意識し、境界線を感じさせないシームレスな住まいを目指しました。

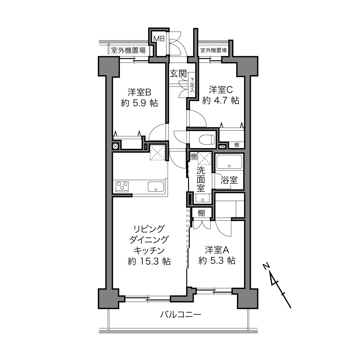
まずは約15.3帖のLDKから。隣接する洋室Aの引き戸を開け放つことで、空間を一体化させられ、より広々とお過ごしいただけます。
企画担当
この住戸の強みは、南西の窓から望める「広い空」です。その開放感を室内からでも堪能できるよう、洋室Aの開口は最大限確保し、それに合わせて引き戸のサイズもオーダーしました。
cowcamo
なるほど。では、さっそくその「広い空」を見てみましょうか!
おお!

スコンと抜けた爽快なビュー。うんうん、これは気持ちがいいですね。

左手に見えるのは「鎌倉女子大学」。グリーンが目に優しい!
ルームツアー再開

LDKの別カットをもう一枚。内装は、白や木目を基調としたナチュラルモダンなテイストです。
企画担当
家族が自然とくつろげるよう、無機質な「白」の中に「木目」を添え、リラクシーな雰囲気を演出しています。
エッジを抑えた タイル貼りキッチン

キッチンは丸みを帯びたタイルを採用し、柔らかい印象に。腰壁のおかげでキッチンの内部は見えづらく、生活感を抑えられます。

デザインは清潔感のある白がベース。キッチンの床は、清掃性のよいフロアタイルを採用しています。

それでは、洋室をチェックしていきましょう!
約5.3帖の洋室A

リビングからでも様子がうかがえるこちらは、お子さまのプレイルームにぴったり。LDKとの間の引き戸を開け放つことで一続きの空間として利用できます。(右下・CGイメージ)
企画担当
将来、お子さま用の個室が必要になった場合でも、引き戸を閉じるだけでプライバシーの守られた一室が作れますよ。

開き戸収納のほか、ウォークインクローゼット(WIC)も備わっています。
約5.9帖の洋室B

共用廊下に面した窓があり、折れ戸2枚分の収納付き。ダブルベッドとサイドテーブルを置けるスペースがあります。(右下・CGイメージ)
約4.7帖の洋室C

こちらも共用廊下に面した北東向きの窓があります。

クローゼットの中に可動式の棚があり、収納力はばっちり! 左下のCGイメージではダブルベッドを配置しています。
cowcamo
こちらの住戸は専用のトランクルームも付いてくるので、オフシーズンアイテムの収納場所などにご活用くださいね!
水まわりへ

左・洗面化粧台の壁面にはタイルをあしらい、さりげないアクセントに。右上部分のタイルが貼られていない箇所は是正工事中です。/右・洗面台の正面には洗濯機置き場が。可動式の収納も備わっています。

左・バスルームは、1317サイズ。浴室乾燥機を備えています。/右・トイレは廊下からアクセス。キッチンや洗面室同様、フロアタイル敷きです。(CGイメージ)
玄関

玄関にはトールタイプのシューズボックスを用意。上がり框は低めに設定し、お子さまでもスムーズに室内へ上がれるよう配慮します。
マンションのご紹介

竣工は1996年、総戸数は57戸。通りから駐車場側にぐるっとまわり、エントランスにアクセスします。オートロックと宅配ボックス付き。直近の大規模修繕工事は2021年に実施され、その後の2025年2月末時点では修繕積立金が9,700万円ほど貯まっています。

4月の取材時には、マンションの目の前に桜が咲いていたので、思わずパシャリ。駅までの間に少しだけ延びているプロムナードで、気持ちよく歩けますよ。
カウカモ編集部より
そして、住戸から望めるのは、スッと視線が伸びる開放的なビュー。都心から距離を置いたこの街だからこそ味わえる、このおおらかな空気感がなんとも贅沢。ぜひソファーにどっしりと腰をかけながら、その余韻に浸っていただきたいです。
改めてお伝えすると、こちらは「鎌倉」までたったの2駅。休日となれば、お出かけスポットは目白押しです。家でくつろぐ時間も、外で楽しむ時間も、どちらも充実した日々をこの住まいでお過ごしください。
writer/ editor:秋月 胤斗
この物件の建物情報
アスティオス鎌倉岩瀬
駅の周辺には複数の大型商業施設のほか、商店街もあるという買い物環境の充実ぶり。「イトーヨーカドー 大船店」はマンションの目の前にあり、日々の暮らしをしっかりと支えてくれてくれそうです!