fav-boldsearch-boldmenu-boldaccountregisteraccount-bold

お風呂に窓を

探してみると意外とない、お風呂に窓が付いている物件をセレクト。風呂は心の洗濯、もっとバスタイムが恋しくなる。

バスタブが箱舟だとしたら、
この窓は極楽への道しるべ。

火照った体を撫でる、風。
42°の湯に反射する、光。
ガラスをなぞる指を伝う、雫。

お風呂に窓があるだけで、こんなにも気持ちがいい。
お風呂に窓があるだけで、もっと家が好きになる。

さぁ欲望を、いや、"浴望" を開放しよう。

※このジャケットはイメージです。

    新着
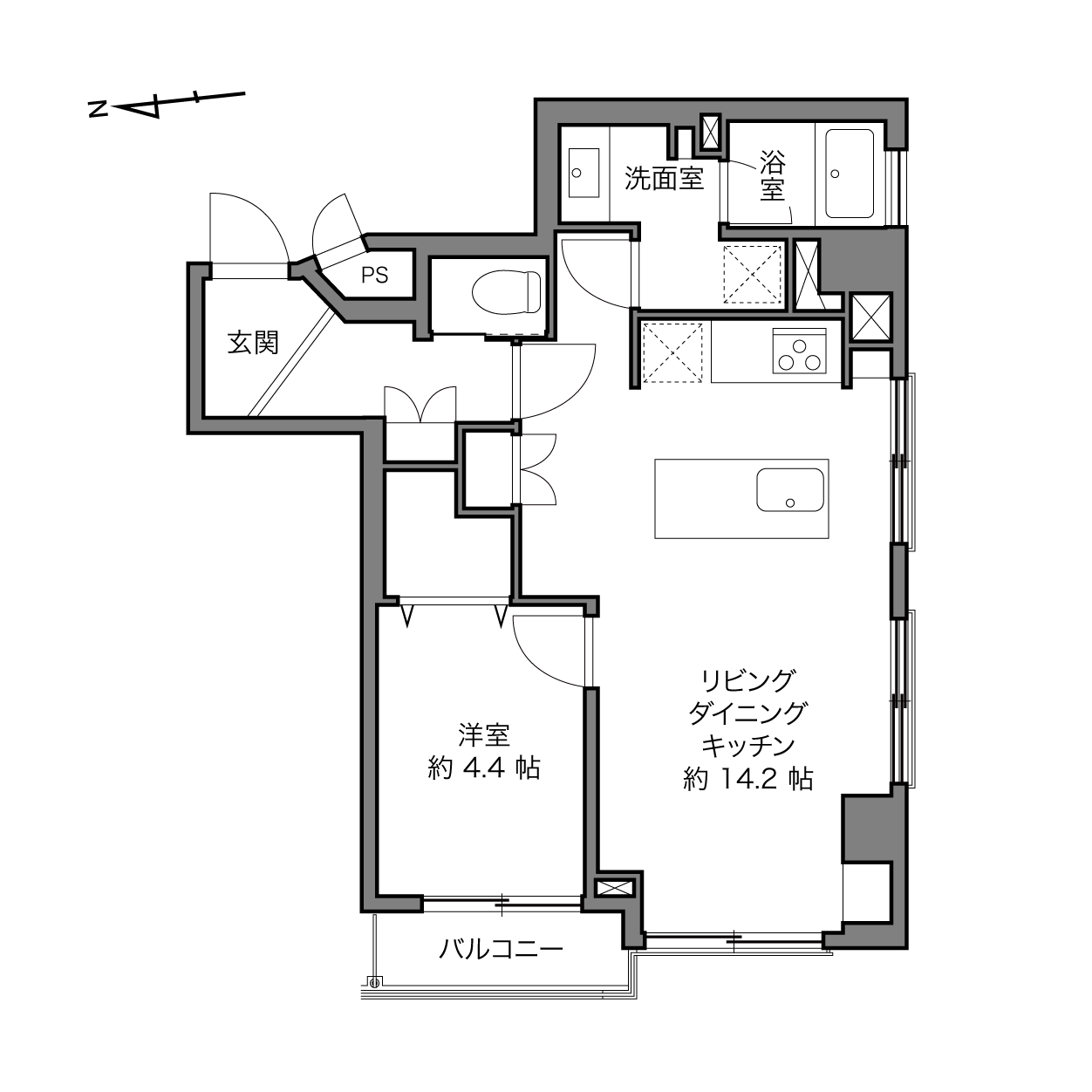
    48.60㎡ 2DK
    3,480万円
    下井草駅徒歩2分 杉並区井草
    「空」が付帯します。 pt.2
      新着
      105.11㎡ 4LDK
      3,280万円
      保土ヶ谷駅バス13分徒歩3分 横浜市保土ケ谷区法泉 不可
      空まで徒歩0分
        新着
        79.99㎡ 2LDK
        8,600万円
        上町駅徒歩13分 世田谷区桜
        宛名のあるラブレター
          価格変更
          55.54㎡ 2LDK
          3,899万円
          蓮根駅徒歩13分 板橋区蓮根 不可
          今日からアウトドア派
            83.67㎡ 2LDK
            15,980万円
            駒沢大学駅徒歩6分 目黒区東が丘
            Smart & Chill
              価格変更
              133.75㎡ 3LDK
              11,980万円
              大倉山駅徒歩17分 横浜市港北区師岡町
              自然と溶け合う
                価格変更
                88.46㎡ 1LDK
                12,980万円
                浜田山駅徒歩5分 杉並区浜田山
                白の静域
                  OPEN ROOM カウカモプロデュース
                  62.20㎡ 3LDK
                  9,290万円
                  錦糸町駅徒歩7分 江東区亀戸
                  あそびの交差
                    96.30㎡ 3SLDK+2WIC
                    9,200万円
                    中野富士見町駅徒歩7分 杉並区和田
                    天空で踊ろう
                      132.07㎡ 3LDK+ルーフバルコニー
                      13,900万円 (改装前価格)
                      十条駅徒歩12分 板橋区加賀
                      未改装販売 in 十条
                        価格変更
                        70.10㎡ 2LDK
                        19,800万円
                        麻布十番駅徒歩9分 港区南麻布
                        人を呼ぶ家
                          57.16㎡ 1SLDK
                          4,280万円
                          青砥駅徒歩10分 葛飾区青戸 不可
                          曲線の律動
                            76.74㎡ 1LDK
                            10,480万円
                            両国駅徒歩10分 墨田区石原
                            陽だまりの大空間
                              59.41㎡ 1LDK
                              8,180万円
                              恵比寿駅徒歩7分 目黒区中目黒 不可
                              3つの街の、その上で
                                117.60㎡ 3LDK+2WIC+マルチクローク
                                13,990万円
                                梅ヶ丘駅徒歩13分 世田谷区若林
                                空の近さとゆとりで選ぶ
                                  106.51㎡ 3LDK
                                  18,490万円
                                  祐天寺駅徒歩2分 目黒区祐天寺 不可
                                  祐天寺を掌に
                                    45.10㎡ 1R
                                    5,980万円
                                    浜町駅徒歩4分 中央区日本橋浜町 不可
                                    旅の終着点
                                      価格変更
                                      65.65㎡ 1SLDK
                                      6,980万円
                                      豪徳寺駅徒歩7分 世田谷区赤堤 不可
                                      世田谷にHUG!
                                        62.63㎡ 2LDK
                                        4,980万円
                                        中井駅徒歩10分 新宿区中井
                                        円盤が根ざす場所
                                          85.19㎡ 3LDK+専用屋上
                                          13,450万円
                                          下高井戸駅徒歩5分 世田谷区松原
                                          光と暮らす

                                          1 / 2

                                          無料会員登録してMIXのフォロー機能を利用しましょう

                                          このブラウザではGoogleログインが使えない可能性があります。お手数ですが別のログイン方法をお試しください。

                                          利用規約プライバシーポリシーに同意の上、
                                          会員登録を行ってください。

                                          または
                                          無料会員登録して物件保存機能を利用しましょう

                                          このブラウザではGoogleログインが使えない可能性があります。お手数ですが別のログイン方法をお試しください。

                                          利用規約プライバシーポリシーに同意の上、
                                          会員登録を行ってください。

                                          または
                                          無料会員登録してマイページを利用しましょう

                                          このブラウザではGoogleログインが使えない可能性があります。お手数ですが別のログイン方法をお試しください。

                                          利用規約プライバシーポリシーに同意の上、
                                          会員登録を行ってください。

                                          または
                                          無料会員登録してメールマガジンを受け取りましょう

                                          このブラウザではGoogleログインが使えない可能性があります。お手数ですが別のログイン方法をお試しください。

                                          利用規約プライバシーポリシーに同意の上、
                                          会員登録を行ってください。

                                          または
                                          無料会員登録して最近見た物件ページを利用しましょう

                                          このブラウザではGoogleログインが使えない可能性があります。お手数ですが別のログイン方法をお試しください。

                                          利用規約プライバシーポリシーに同意の上、
                                          会員登録を行ってください。

                                          または

                                          notification